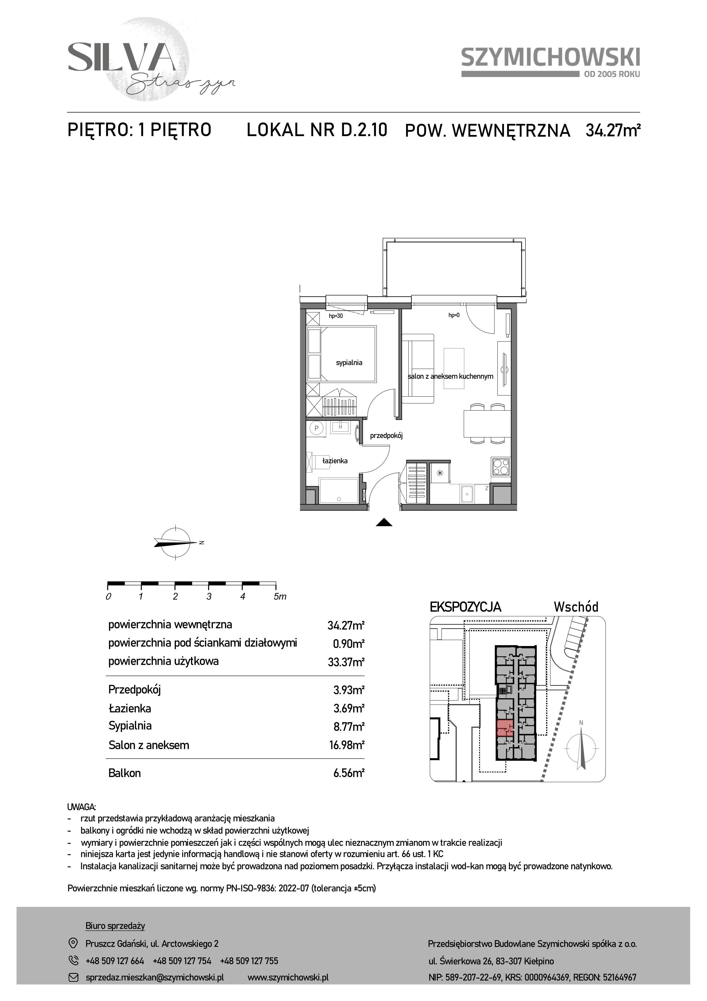
Nowe mieszkanie, 34,27 m², 2 pokoje, 1 piętro, oferta nr D.2.10
351 610,20 zł
10 260,00 zł/m²
Monitoring cen
Inwestycja Silva Straszyn
Straszyn, ul. Boczna/Starogardzka






Liczba pokoi:
2 pokoje
Powierzchnia:
34,27 m²
Piętro:
1 piętro
Liczba poziomów:
1
Wys. mieszkania:
2,78 m
Strony świata:
wschód (E)
Garaż:
hala garażowa, parking naziemny
Termin oddania:
Budynek C,D - 30.10.2027