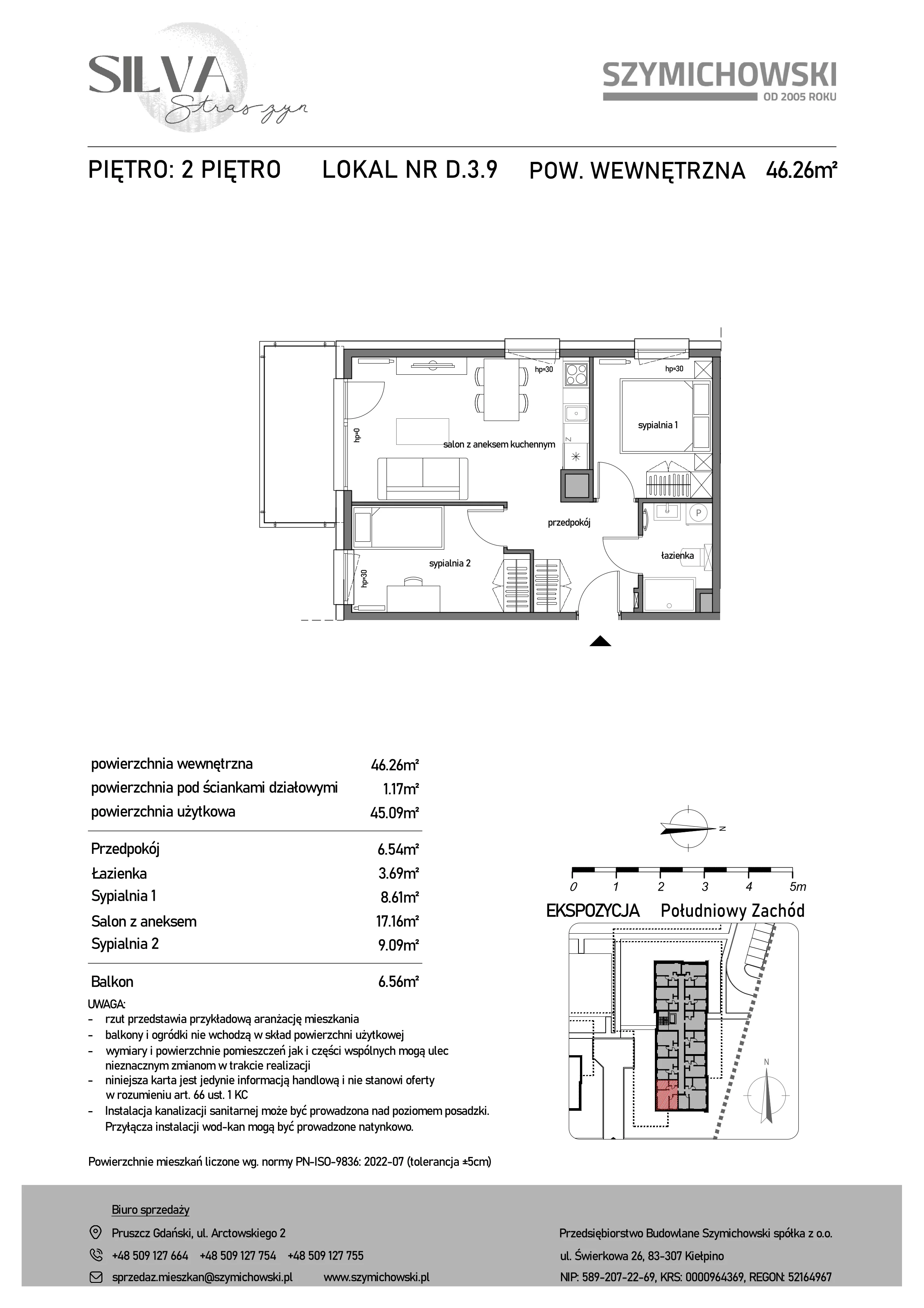
Nowe mieszkanie, 46,26 m², 3 pokoje, 2 piętro, oferta nr D.3.9
479 623,68 zł
10 368,00 zł/m²
Monitoring cen
Inwestycja Silva Straszyn
Straszyn, ul. Boczna/Starogardzka






Liczba pokoi:
3 pokoje
Powierzchnia:
46,26 m²
Piętro:
2 piętro
Liczba poziomów:
1
Wys. mieszkania:
2,78 m
Strony świata:
południe (S), zachód (W)
Garaż:
hala garażowa, parking naziemny
Termin oddania:
Budynek C,D - 30.10.2027