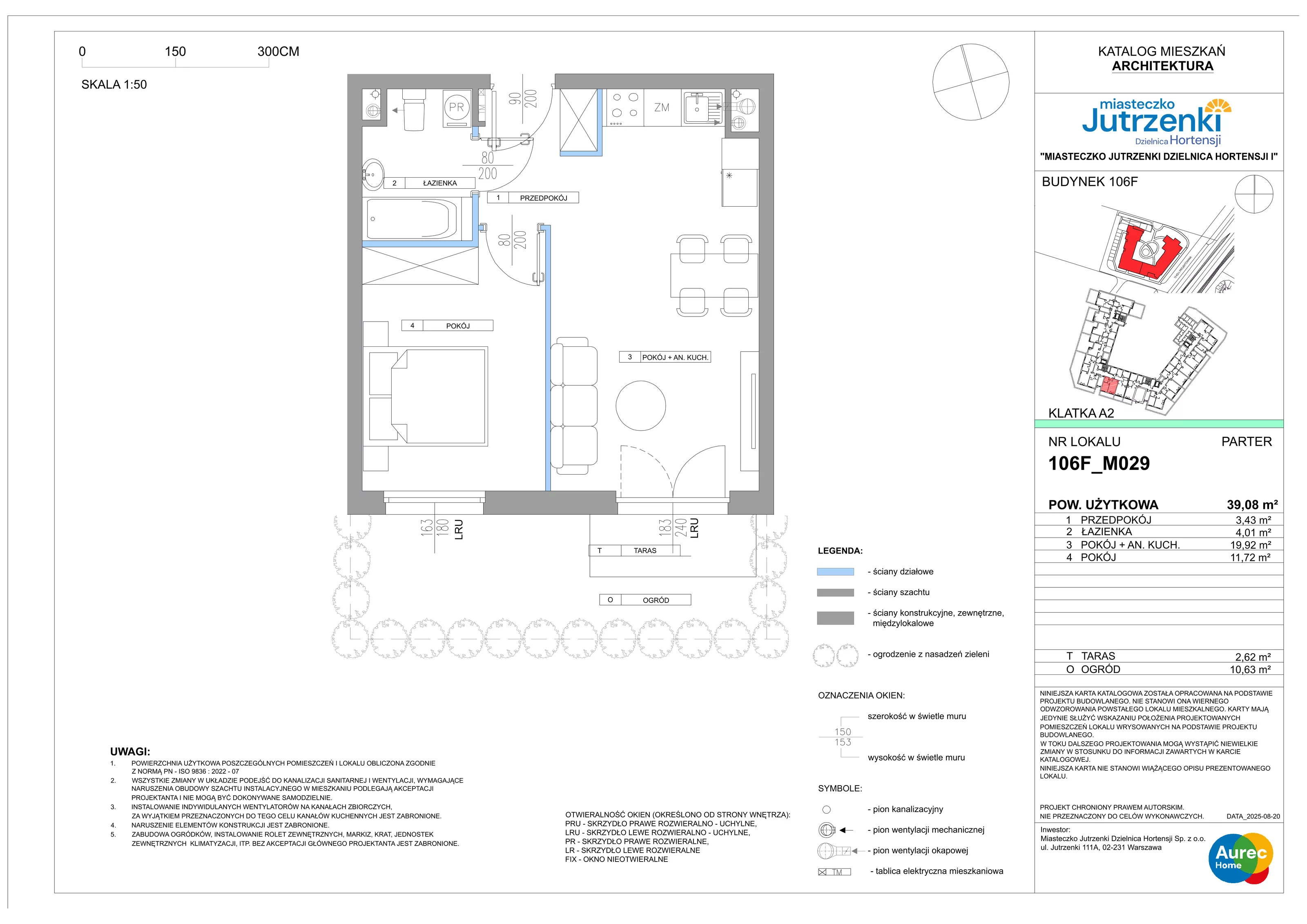
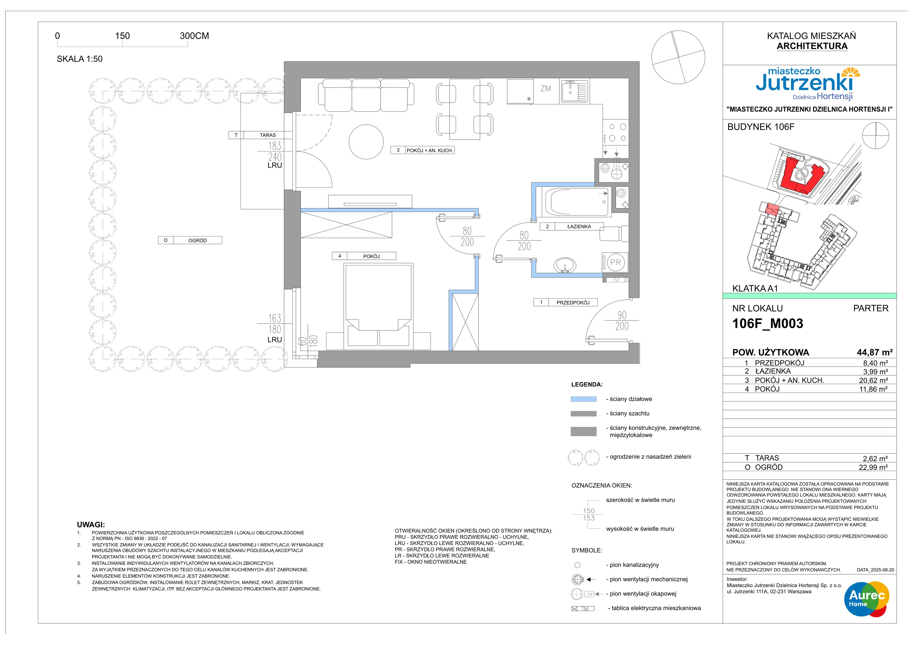
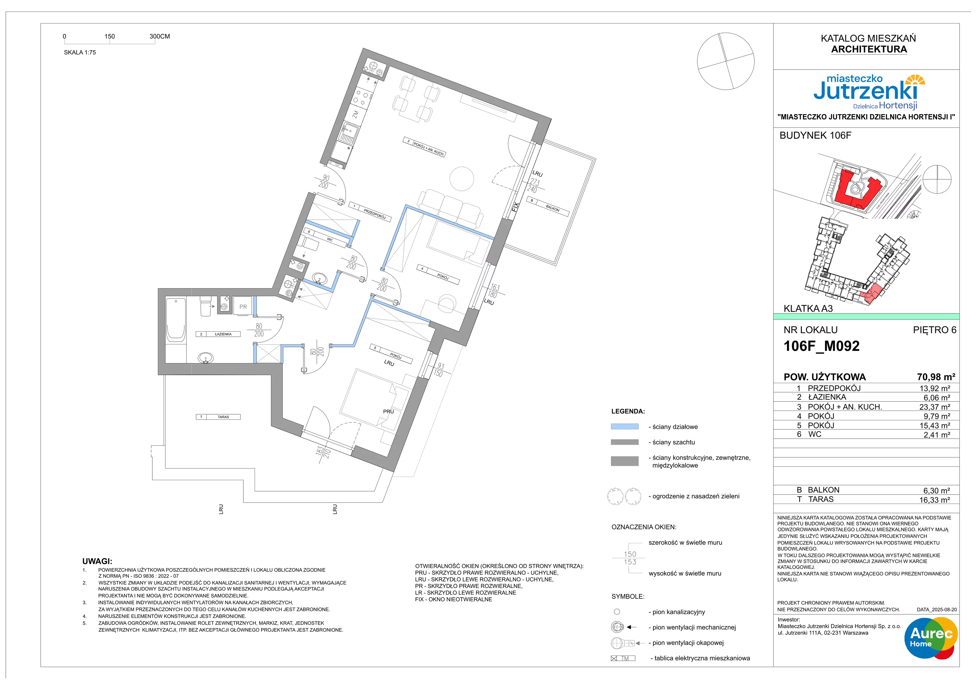
Nowe mieszkanie, 28,28 m², 1 pokój, parter, oferta nr 106F/M002NOWOŚĆ
Inwestycja Miasteczko Jutrzenki Dzielnica Hortensji
Zapytaj o cenę >
Warszawa, Włochy, ul. Jutrzenki 106F






5

Mapa
Liczba pokoi:
1 pokój
Powierzchnia:
28,28 m²
Liczba poziomów:
1
Garaż:
hala garażowa
Powierzchnie dodatkowe:
komórka lokatorska
Powierzchnie zewnętrzne:
taras (2,62 m²), ogródek (18,22 m²)
Termin oddania:
II kwartał 2027