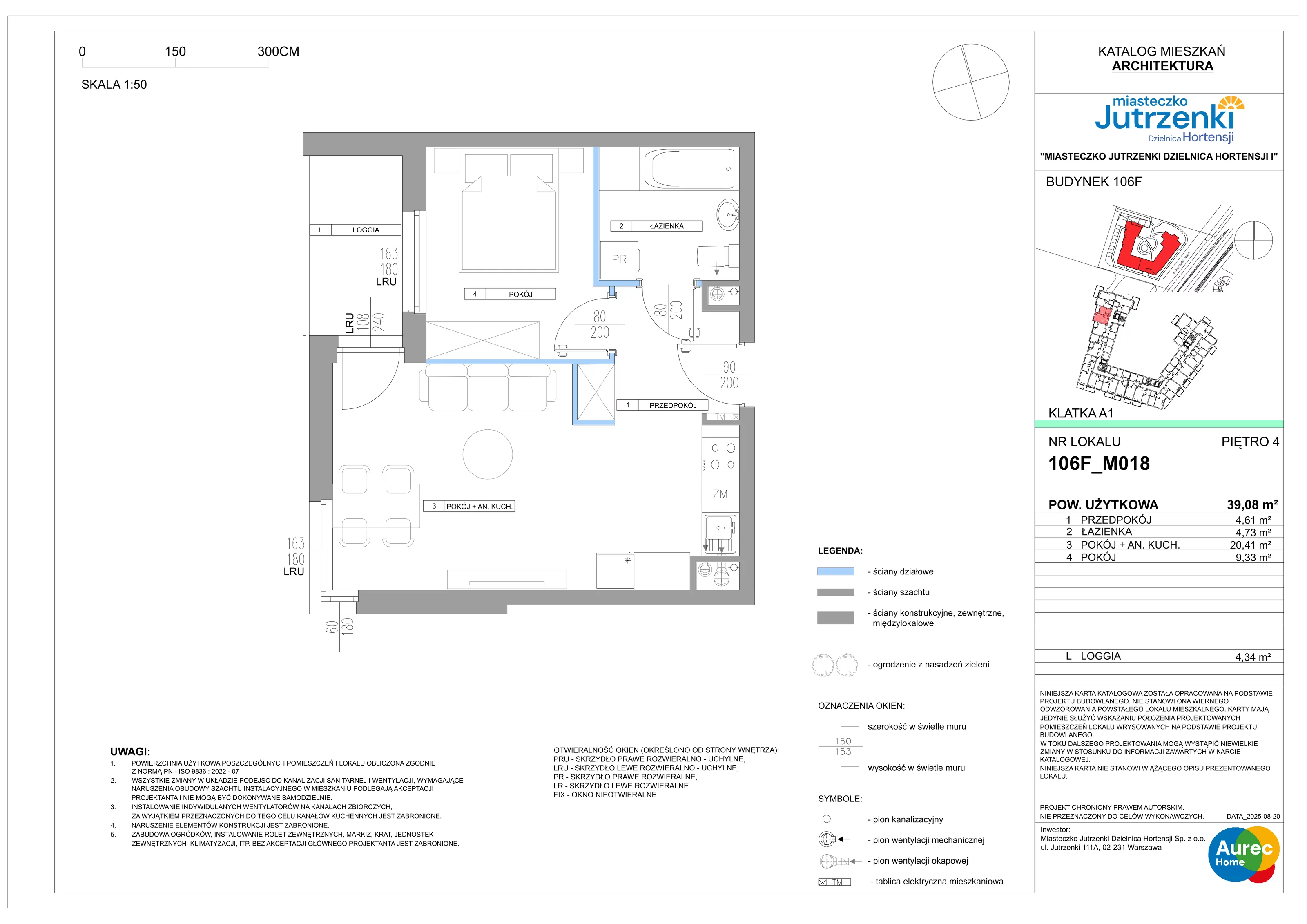
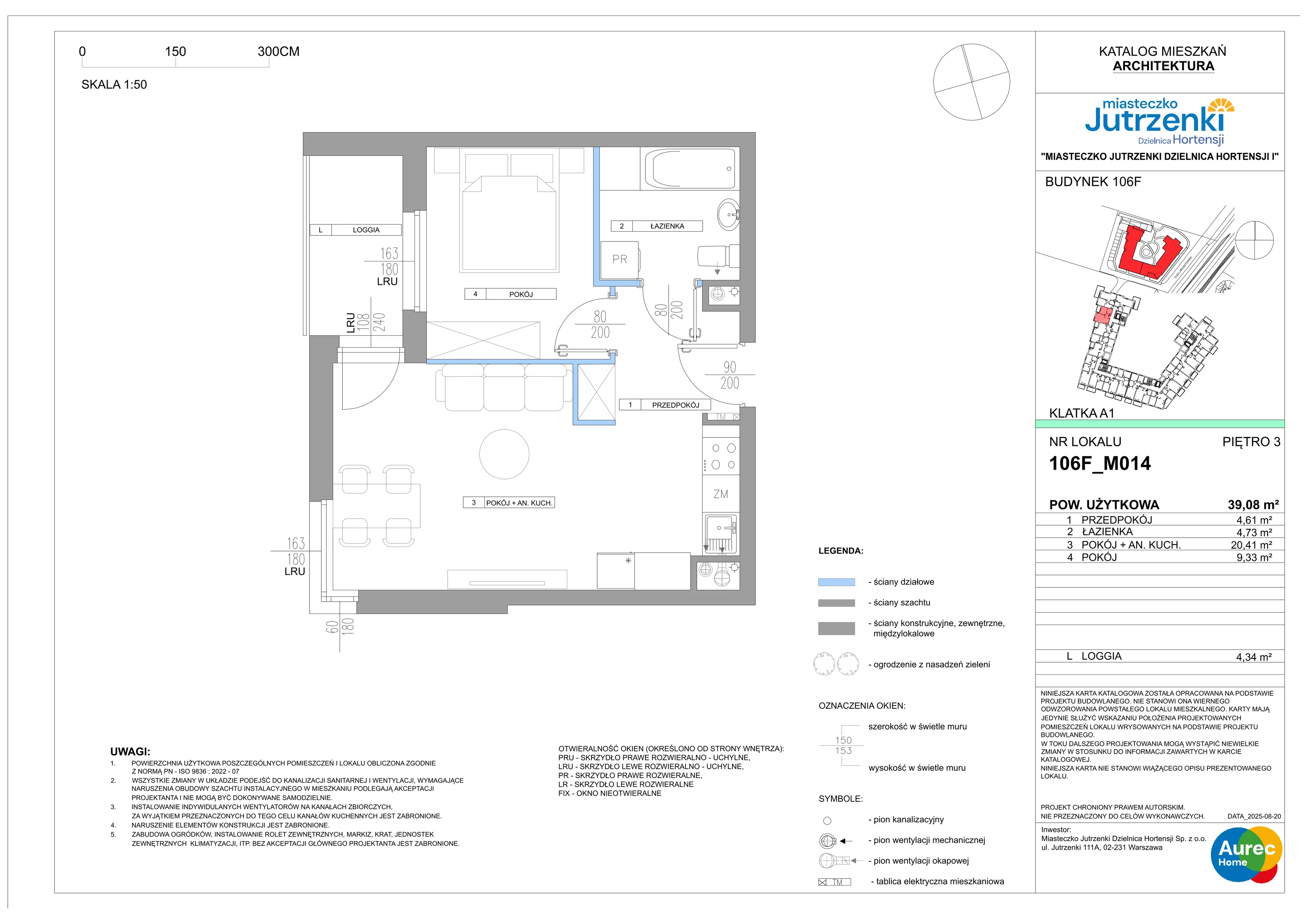
Nowe mieszkanie, 38,66 m², 2 pokoje, parter, oferta nr 106F/M095NOWOŚĆ
Inwestycja Miasteczko Jutrzenki Dzielnica Hortensji
Zapytaj o cenę >
Warszawa, Włochy, ul. Jutrzenki 106F






5

Mapa
Liczba pokoi:
2 pokoje
Powierzchnia:
38,66 m²
Liczba poziomów:
1
Garaż:
hala garażowa
Powierzchnie dodatkowe:
komórka lokatorska
Powierzchnie zewnętrzne:
ogródek (15,00 m²), taras (2,62 m²)
Termin oddania:
II kwartał 2027