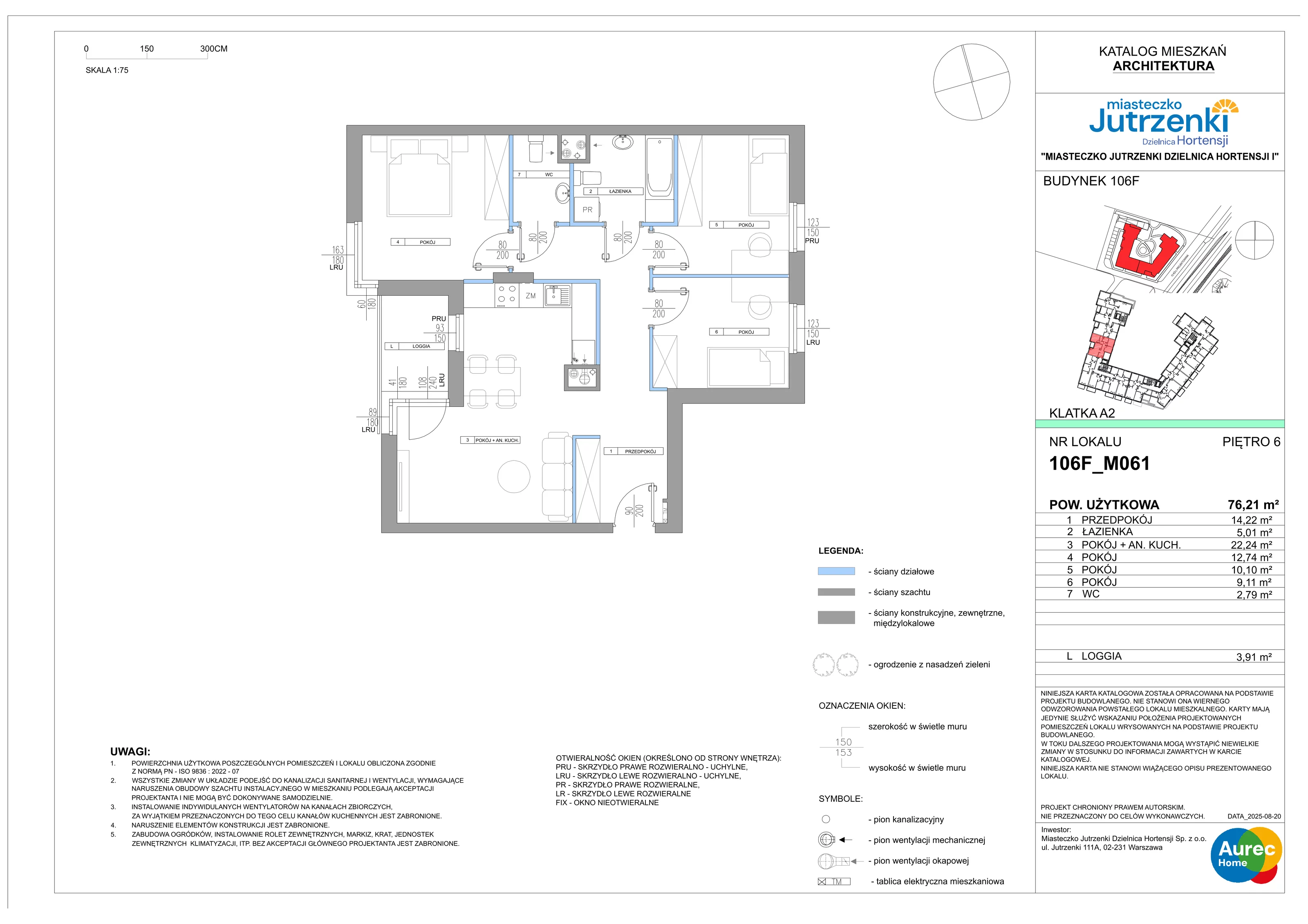
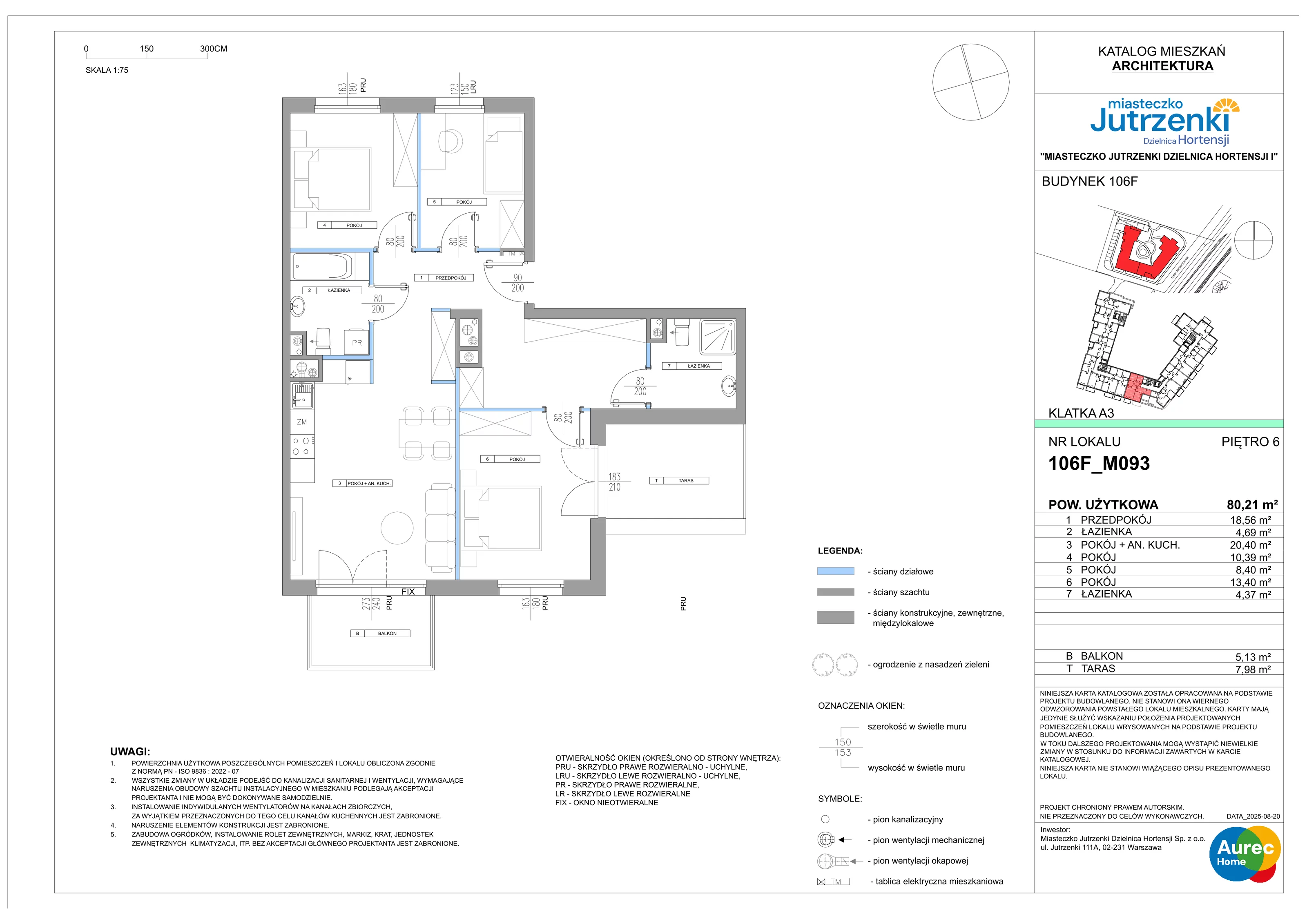
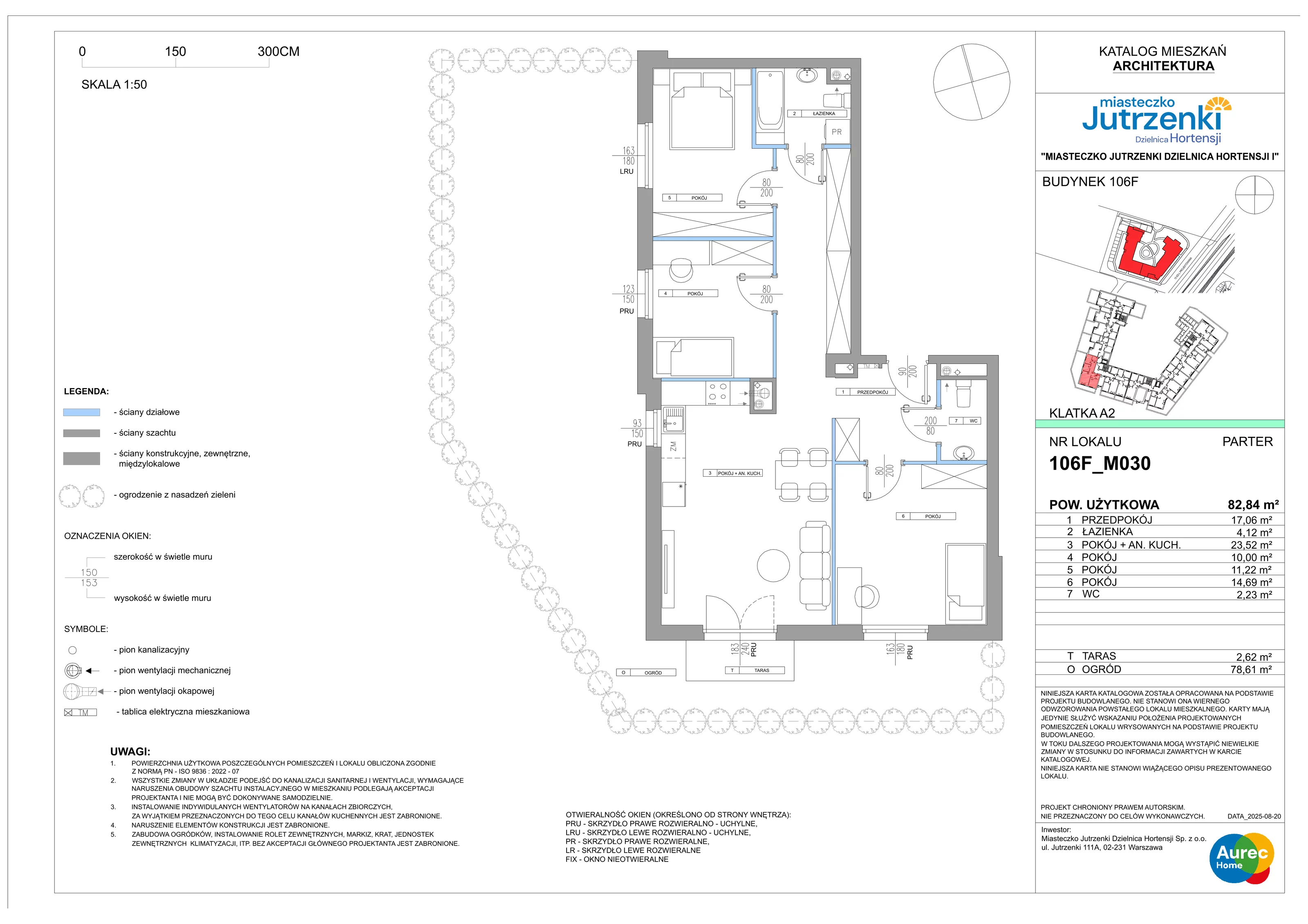
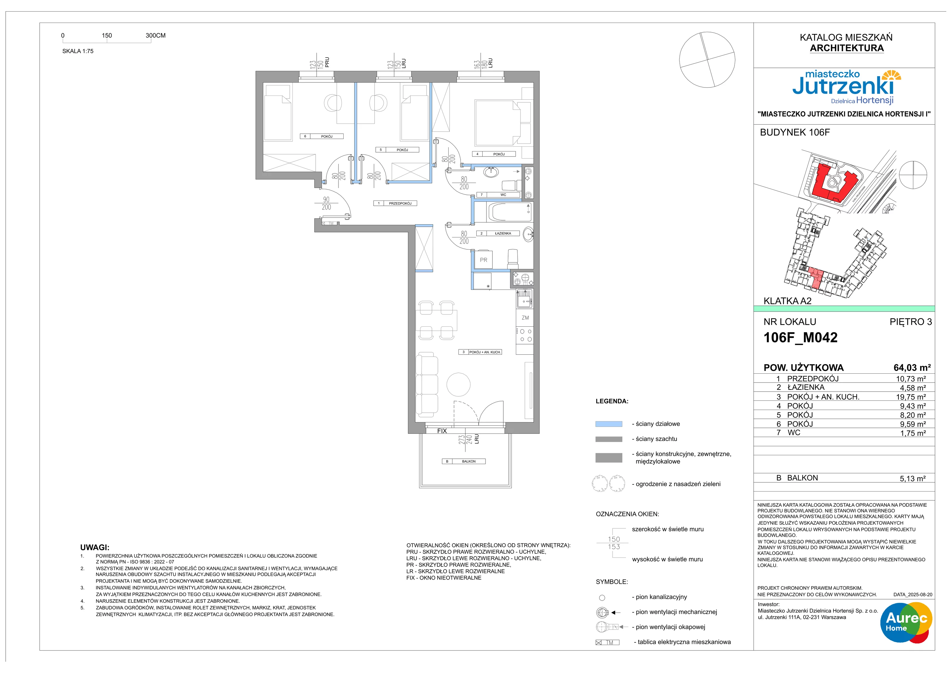
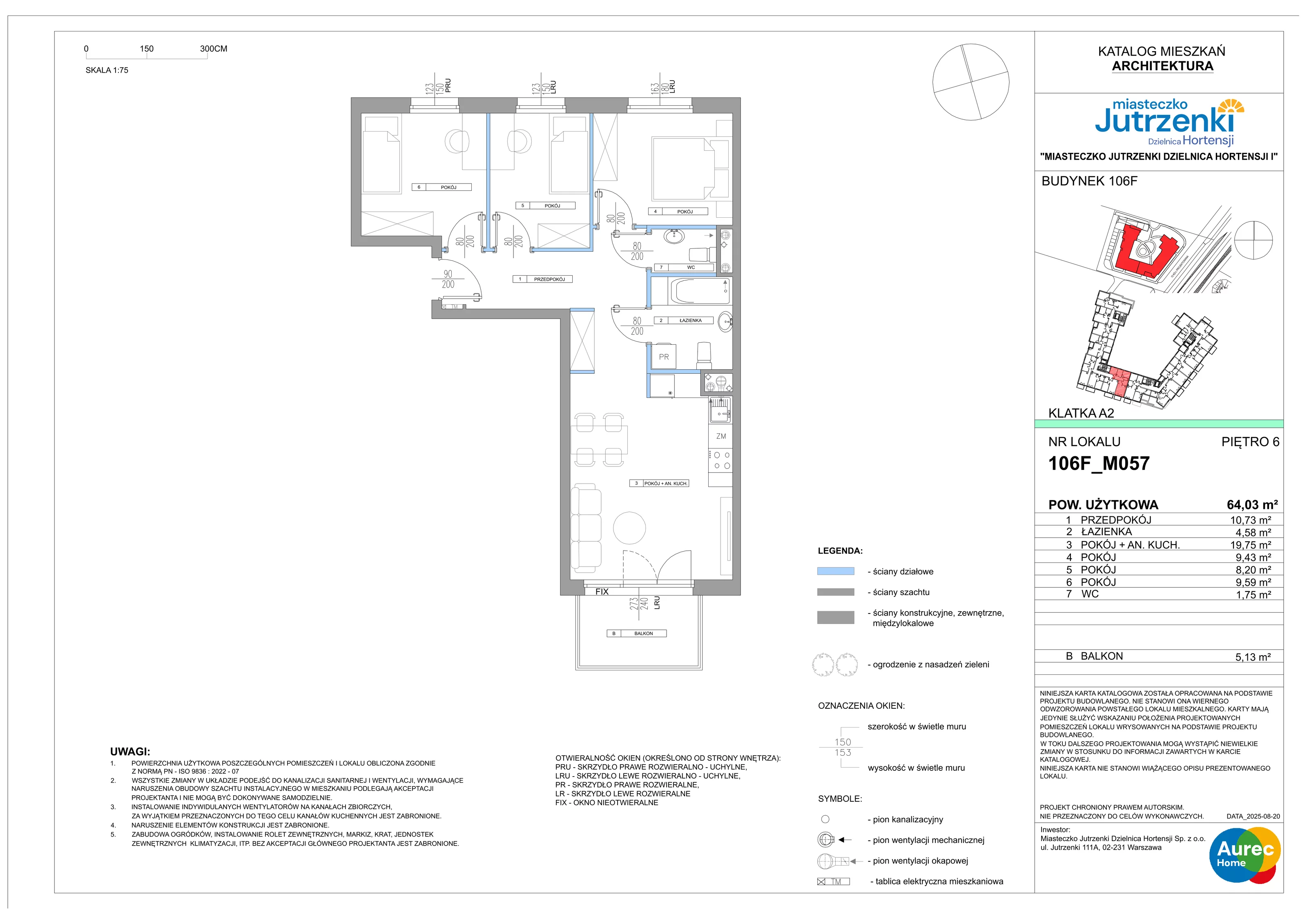
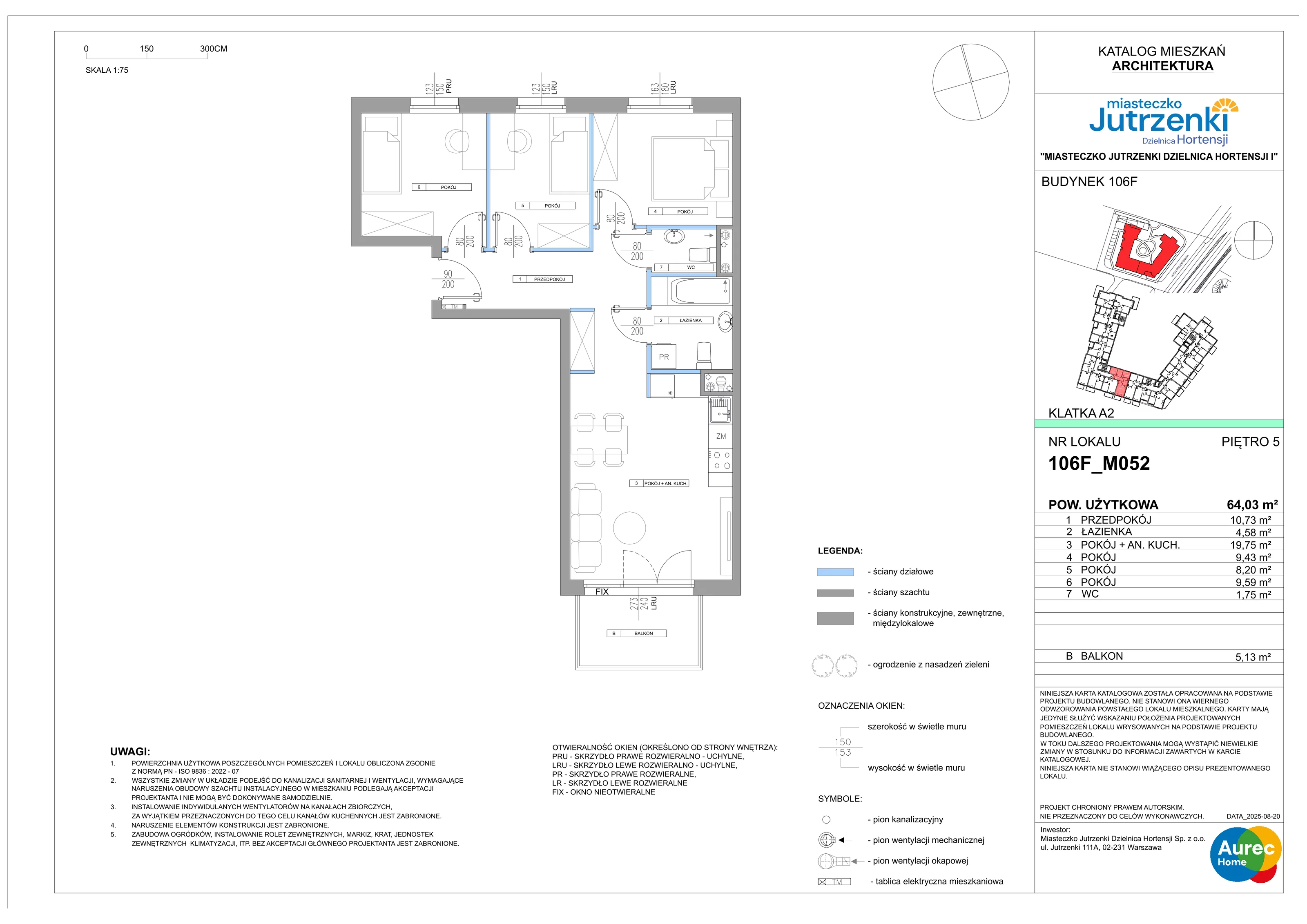
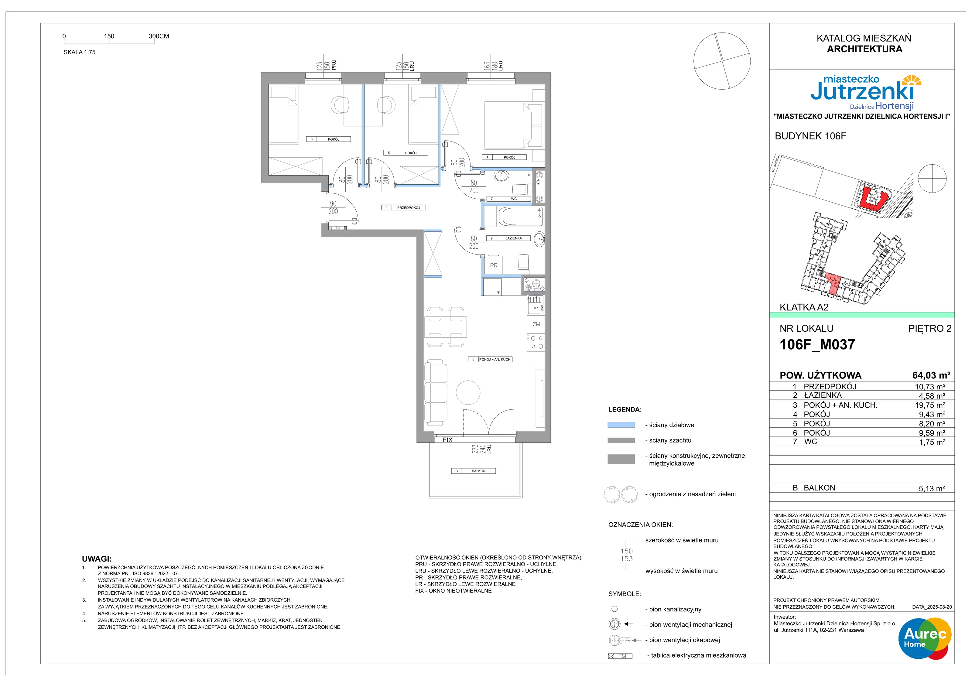
Nowe mieszkanie, 64,03 m², 4 pokoje, 4 piętro, oferta nr 106F/M047NOWOŚĆ
Inwestycja Miasteczko Jutrzenki Dzielnica Hortensji
Zapytaj o cenę >
Warszawa, Włochy, ul. Jutrzenki 106F






5

Mapa
Liczba pokoi:
4 pokoje
Powierzchnia:
64,03 m²
Piętro:
4 piętro
Liczba poziomów:
1
Garaż:
hala garażowa
Powierzchnie dodatkowe:
komórka lokatorska
Powierzchnie zewnętrzne:
balkon (5,13 m²)
Termin oddania:
II kwartał 2027