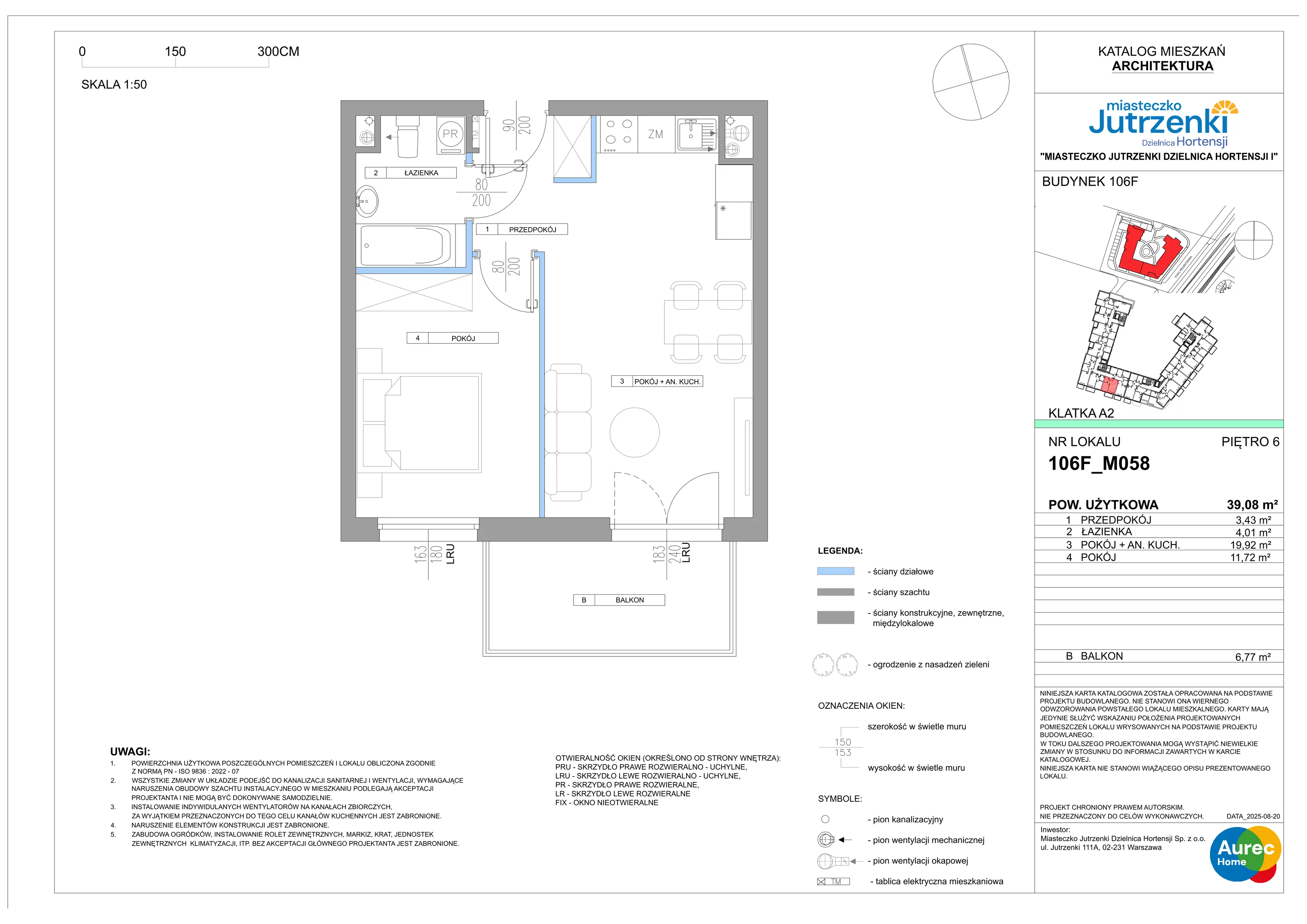
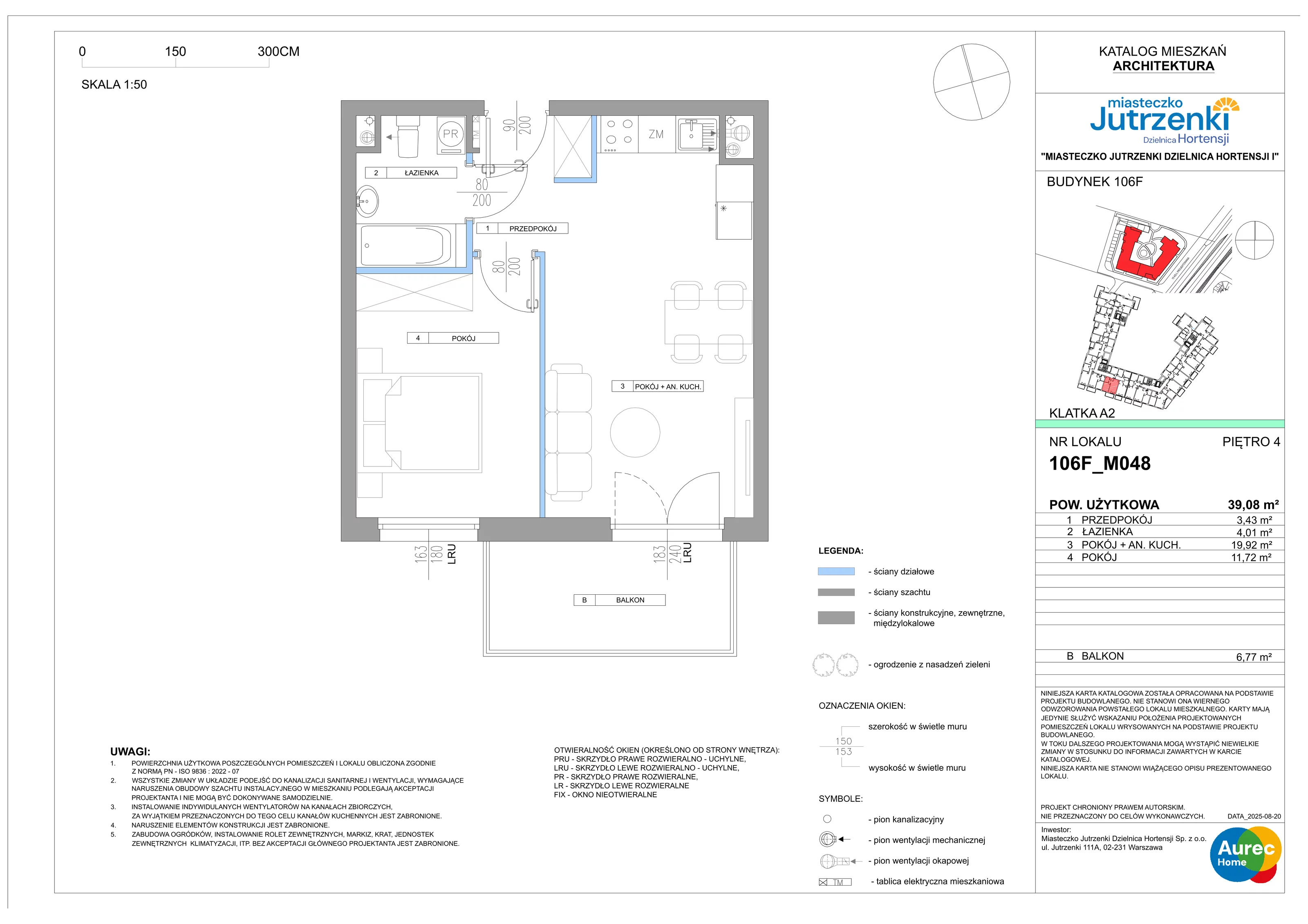
Nowe mieszkanie, 39,08 m², 2 pokoje, 6 piętro, oferta nr 106F/M058NOWOŚĆ
Inwestycja Miasteczko Jutrzenki Dzielnica Hortensji
Zapytaj o cenę >
Warszawa, Włochy, ul. Jutrzenki 106F






5

Mapa
Liczba pokoi:
2 pokoje
Powierzchnia:
39,08 m²
Piętro:
6 piętro
Liczba poziomów:
1
Garaż:
hala garażowa
Powierzchnie dodatkowe:
komórka lokatorska
Powierzchnie zewnętrzne:
balkon (6,77 m²)
Termin oddania:
II kwartał 2027