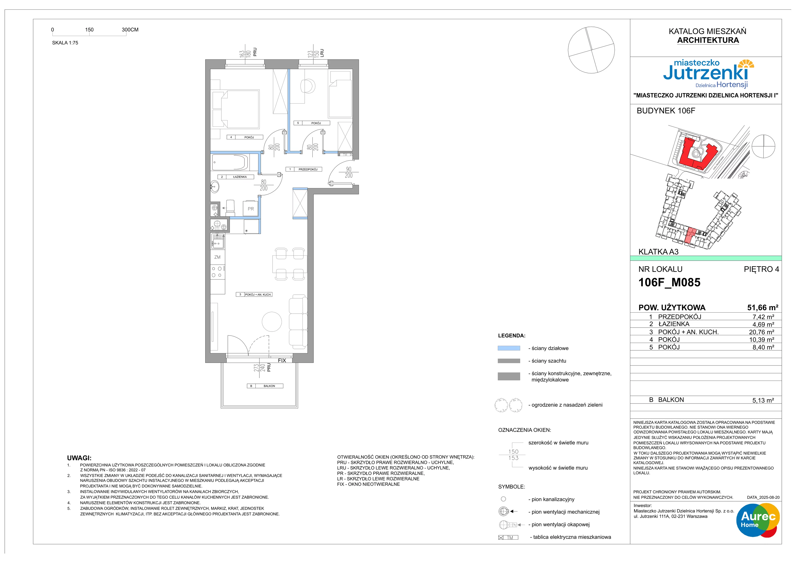
Nowe mieszkanie, 51,66 m², 3 pokoje, 4 piętro, oferta nr 106F/M085NOWOŚĆ
Inwestycja Miasteczko Jutrzenki Dzielnica Hortensji
Zapytaj o cenę >
Warszawa, Włochy, ul. Jutrzenki 106F






5

Mapa
Liczba pokoi:
3 pokoje
Powierzchnia:
51,66 m²
Piętro:
4 piętro
Liczba poziomów:
1
Garaż:
hala garażowa
Powierzchnie dodatkowe:
komórka lokatorska
Powierzchnie zewnętrzne:
balkon (5,13 m²)
Termin oddania:
II kwartał 2027