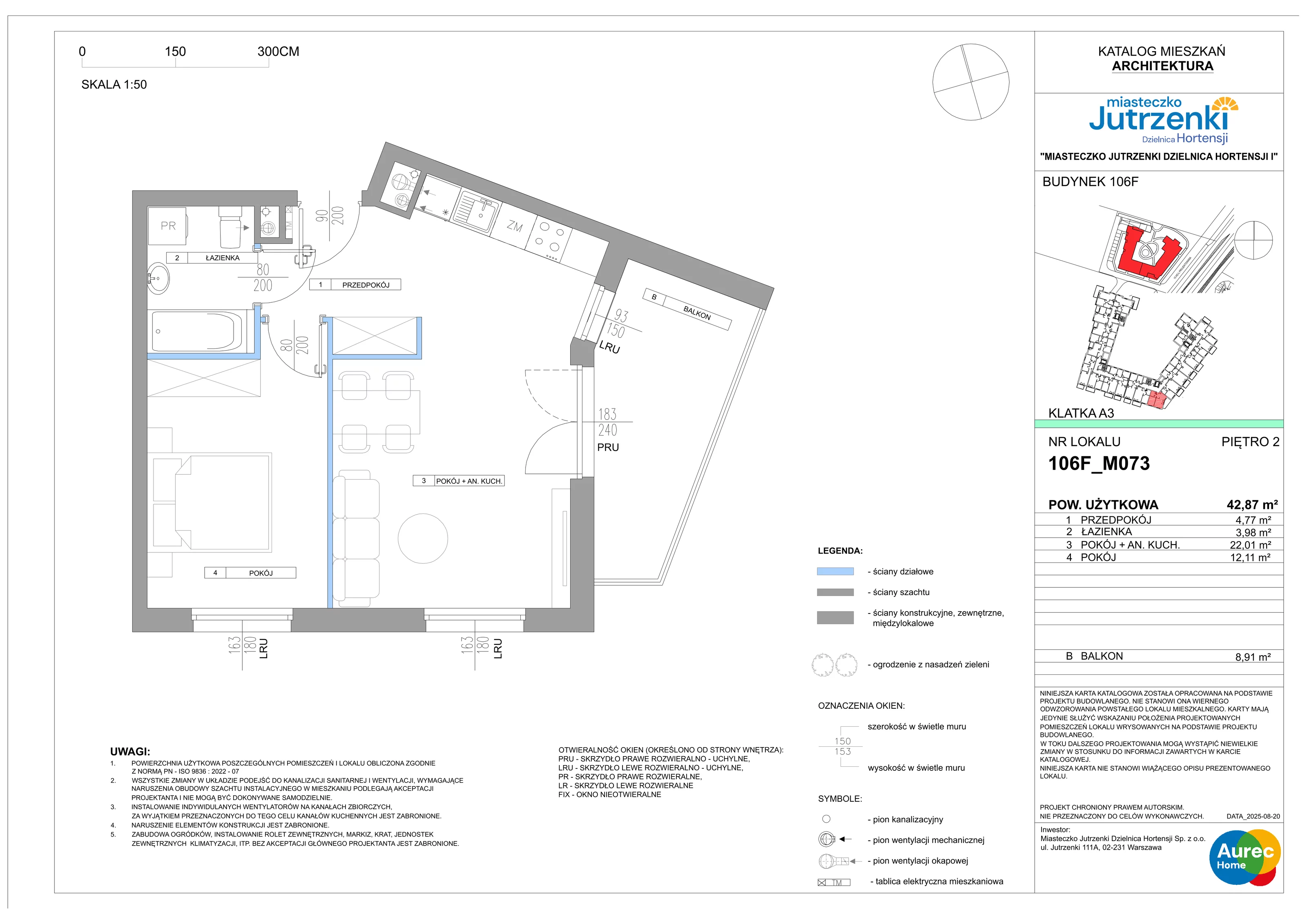
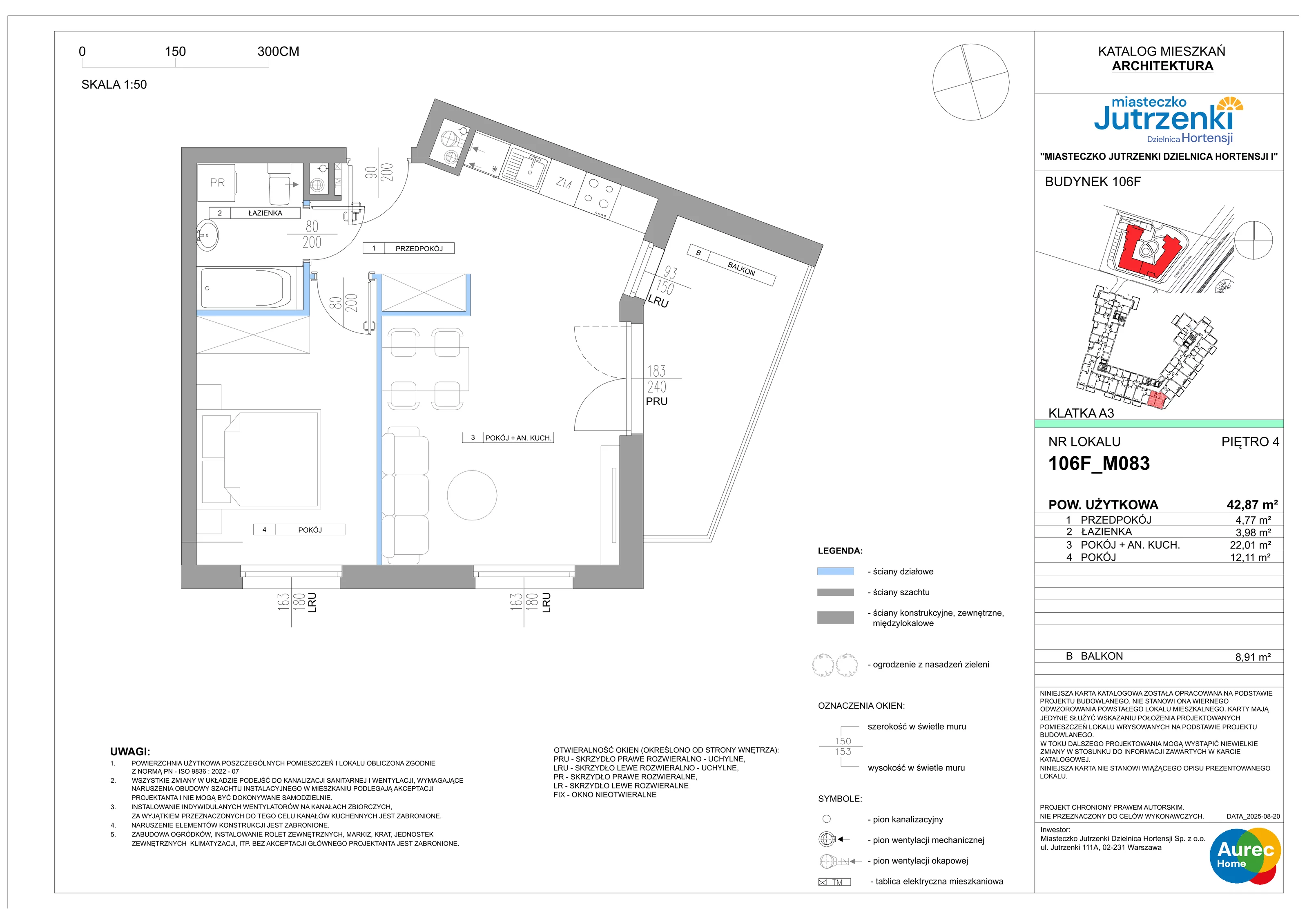
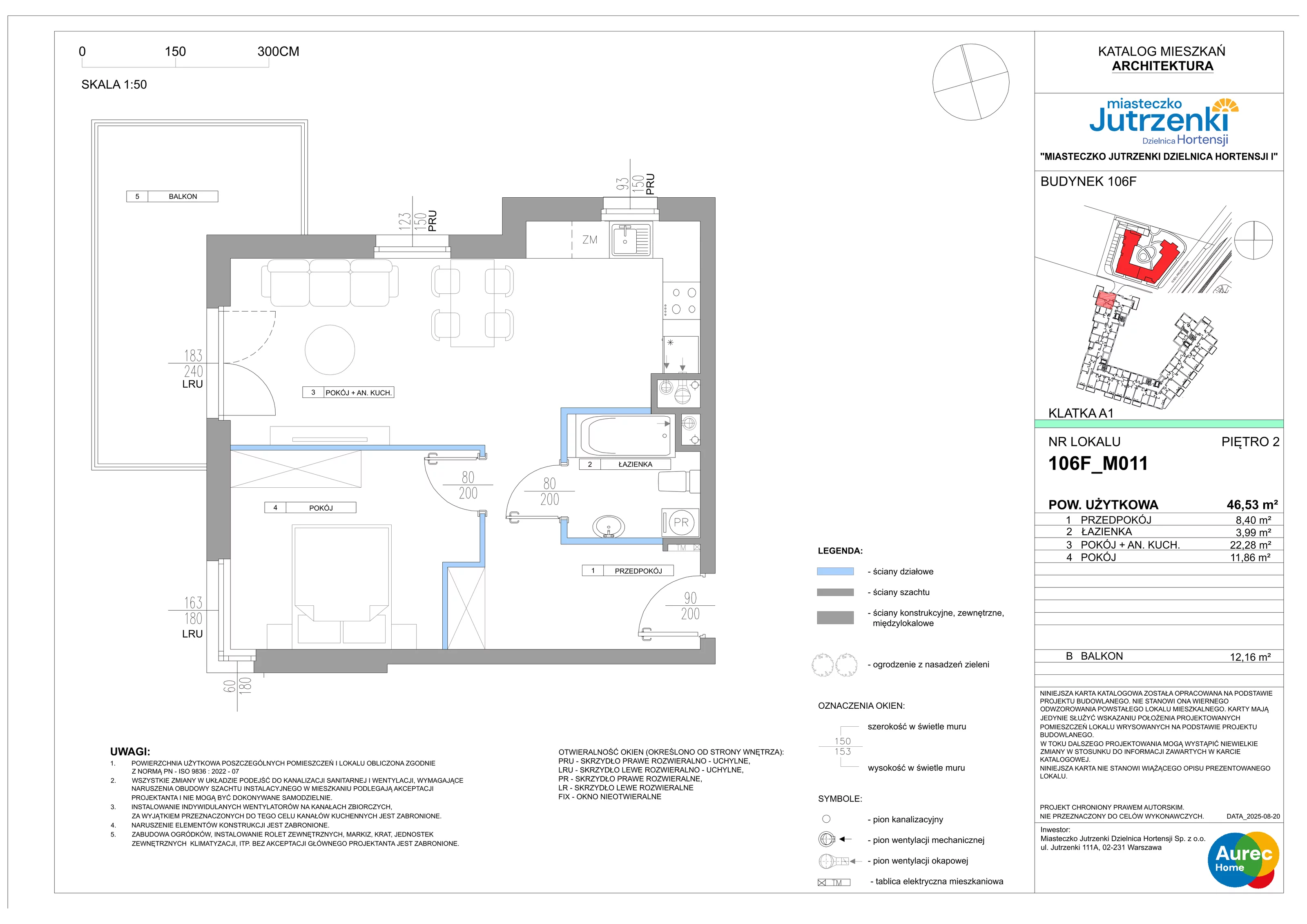
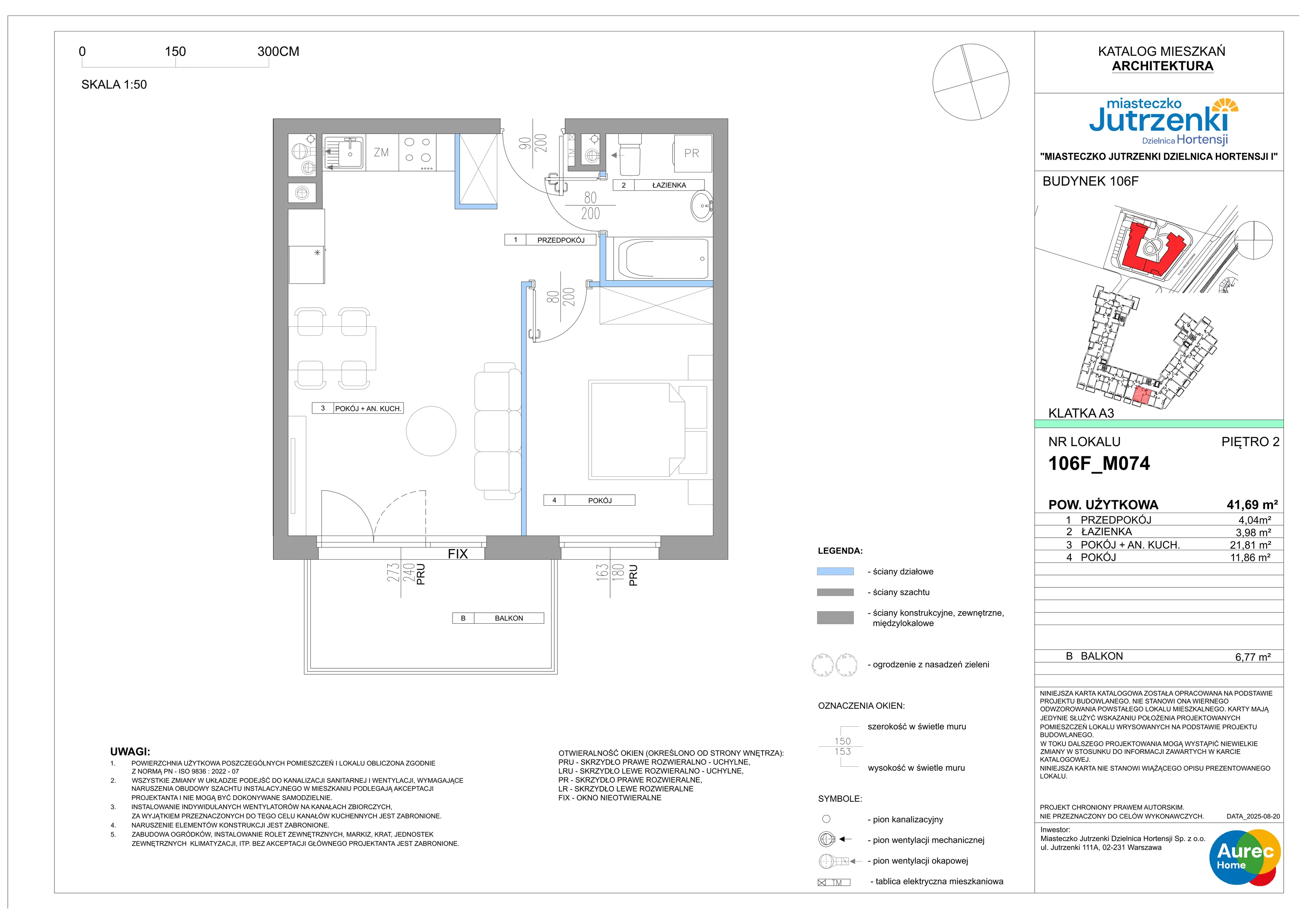
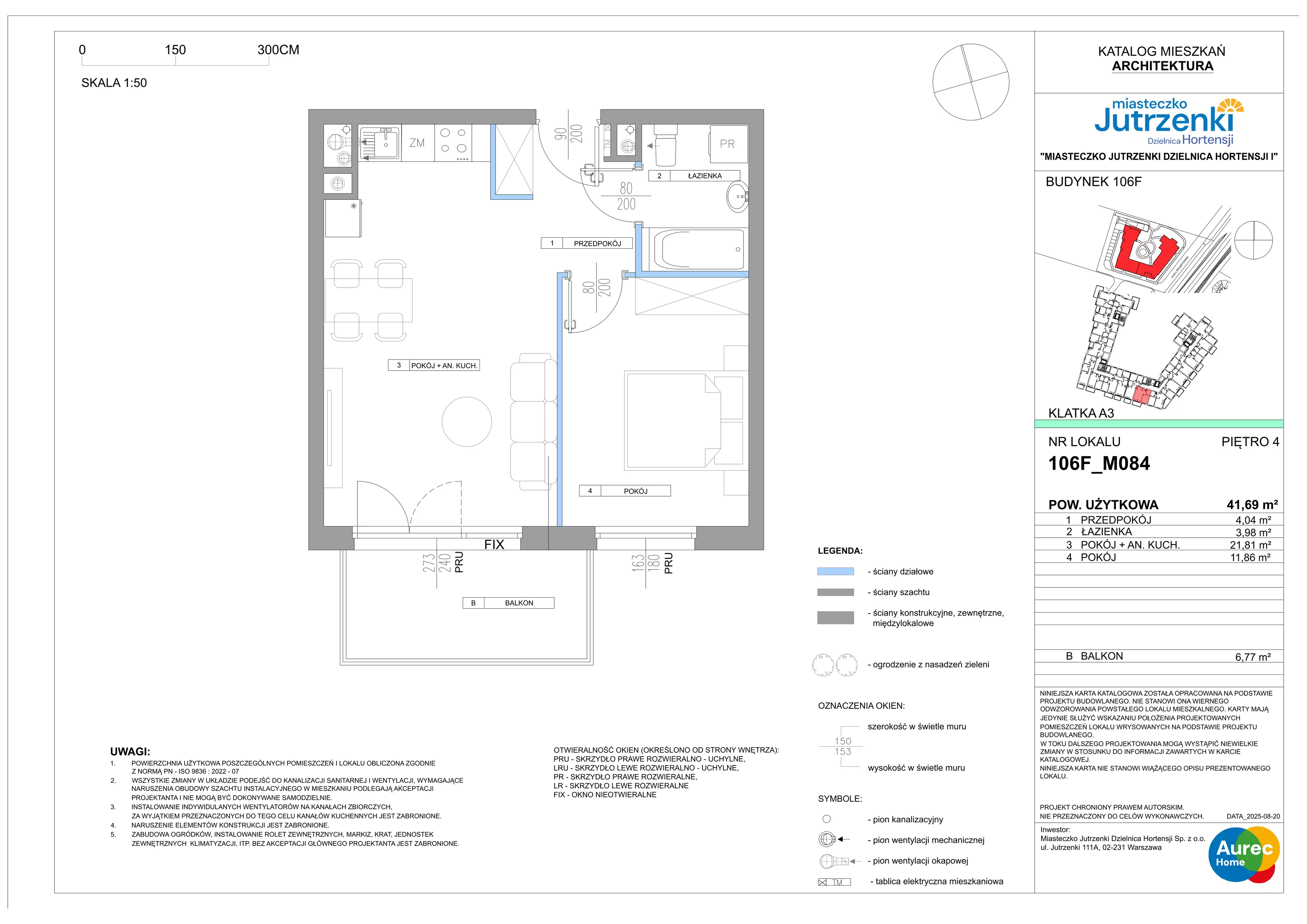
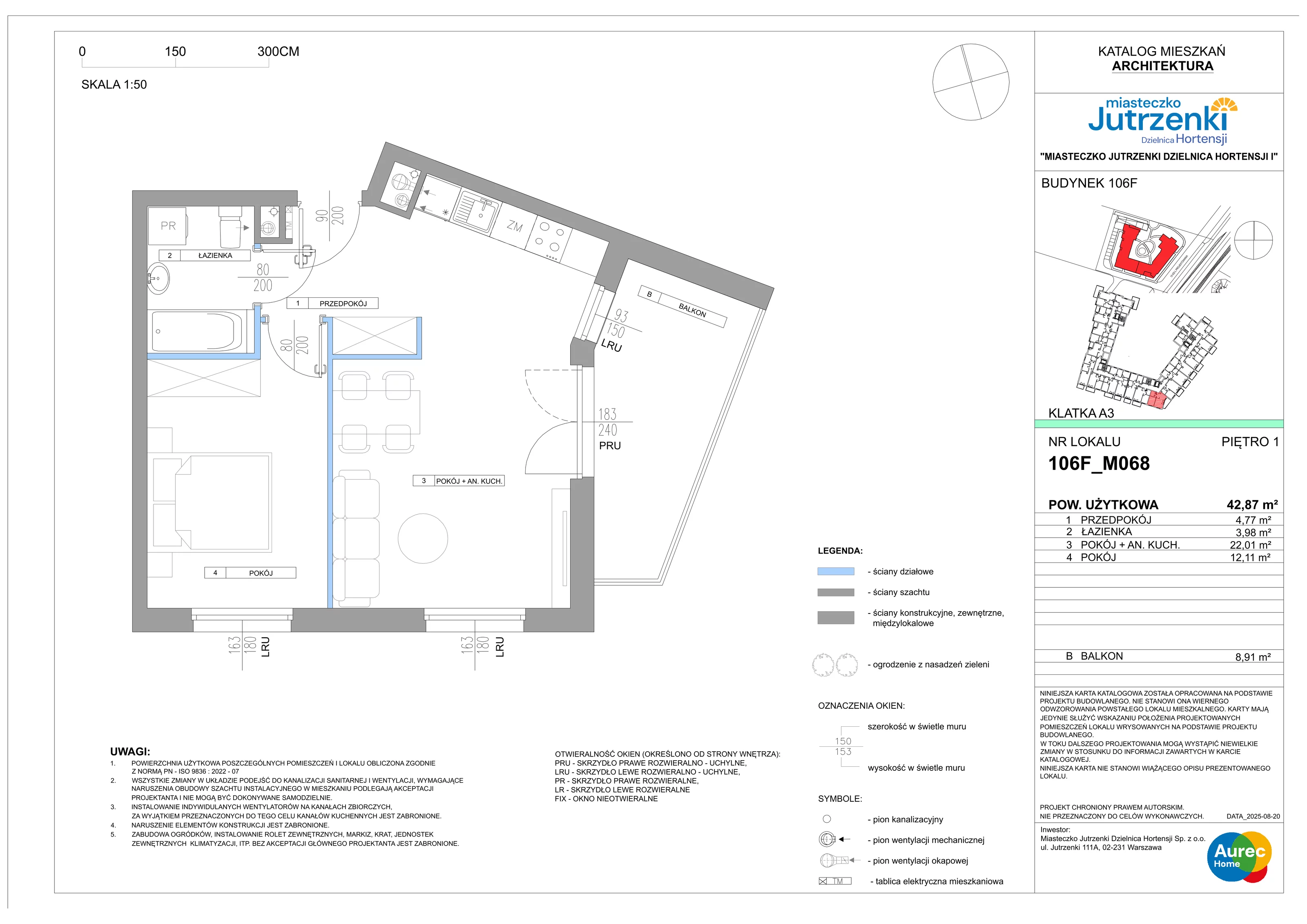
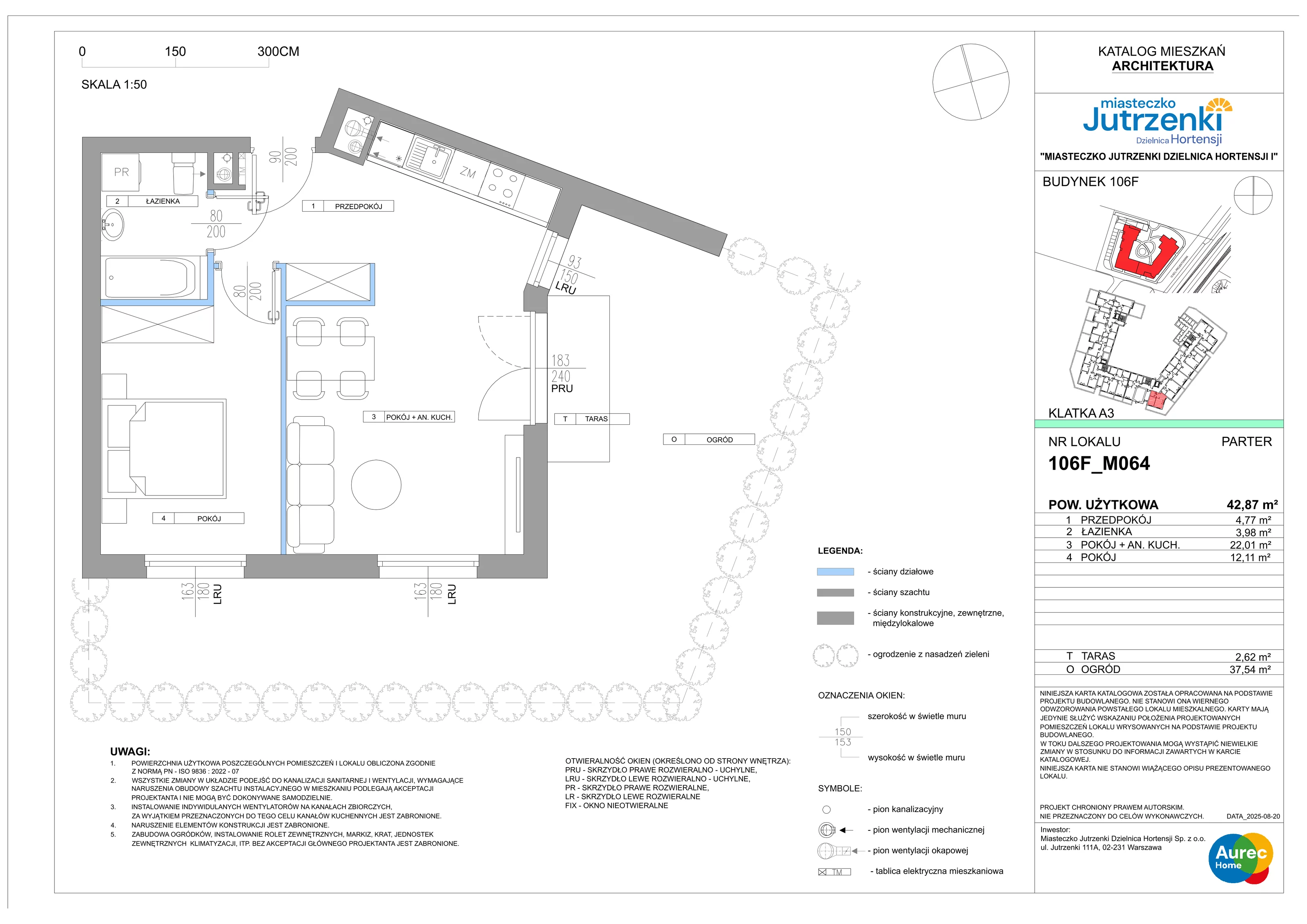
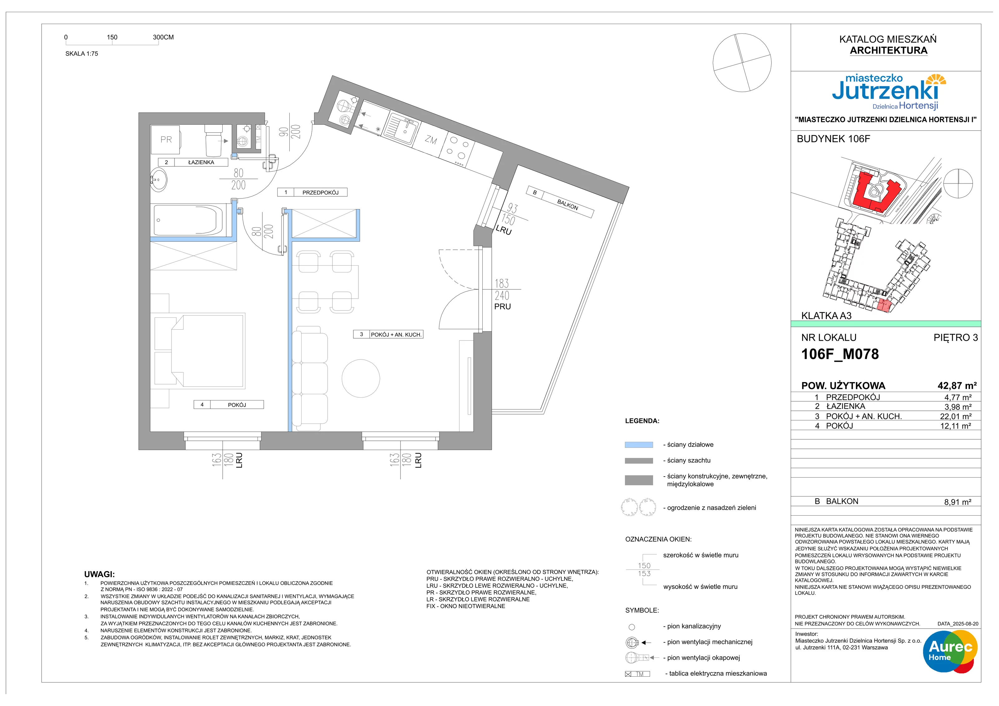
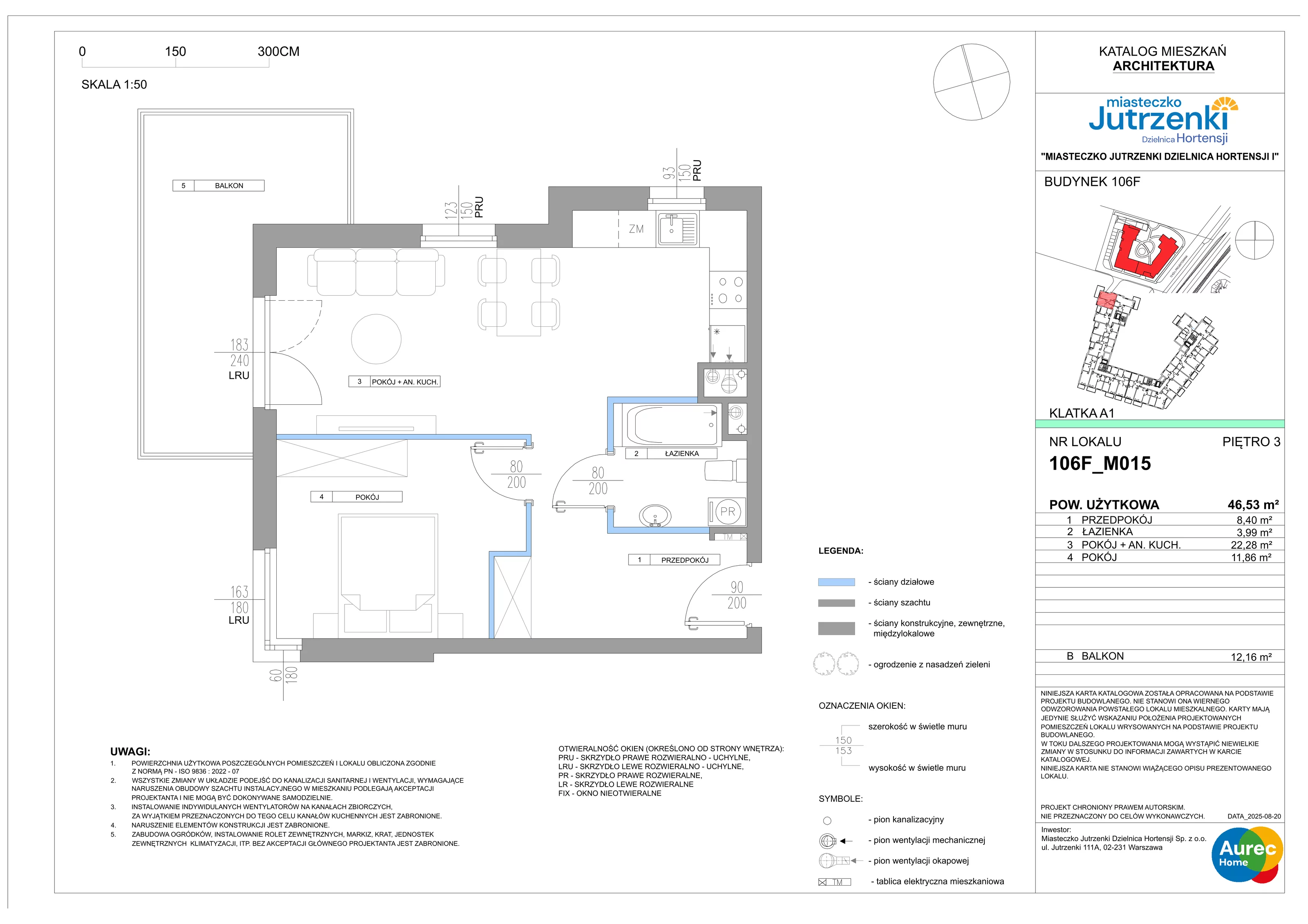
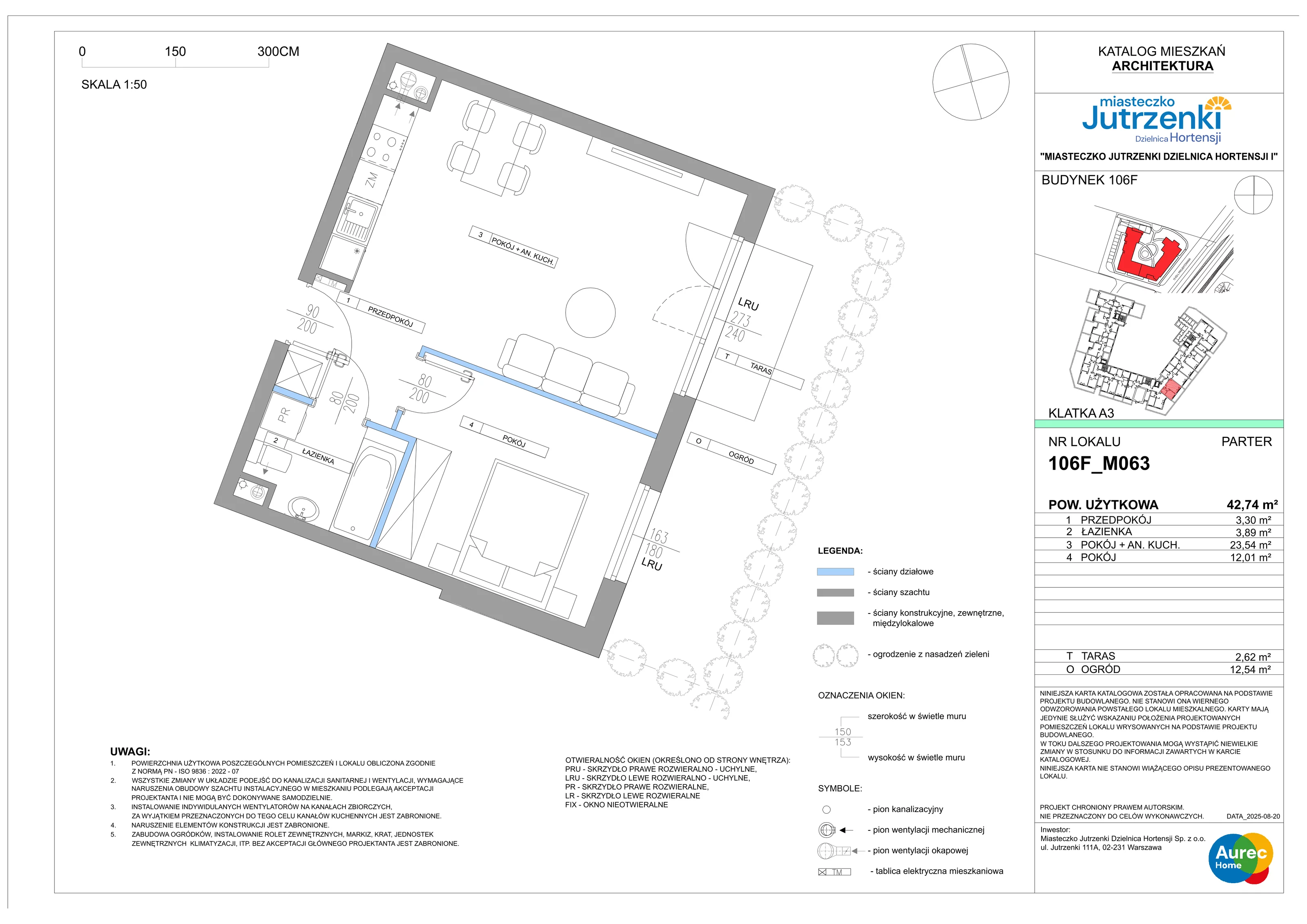
Nowe mieszkanie, 42,87 m², 2 pokoje, 2 piętro, oferta nr 106F/M073NOWOŚĆ
Inwestycja Miasteczko Jutrzenki Dzielnica Hortensji
Zapytaj o cenę >
Warszawa, Włochy, ul. Jutrzenki 106F






5

Mapa
Liczba pokoi:
2 pokoje
Powierzchnia:
42,87 m²
Piętro:
2 piętro
Liczba poziomów:
1
Garaż:
hala garażowa
Powierzchnie dodatkowe:
komórka lokatorska
Powierzchnie zewnętrzne:
balkon (8,91 m²)
Termin oddania:
II kwartał 2027