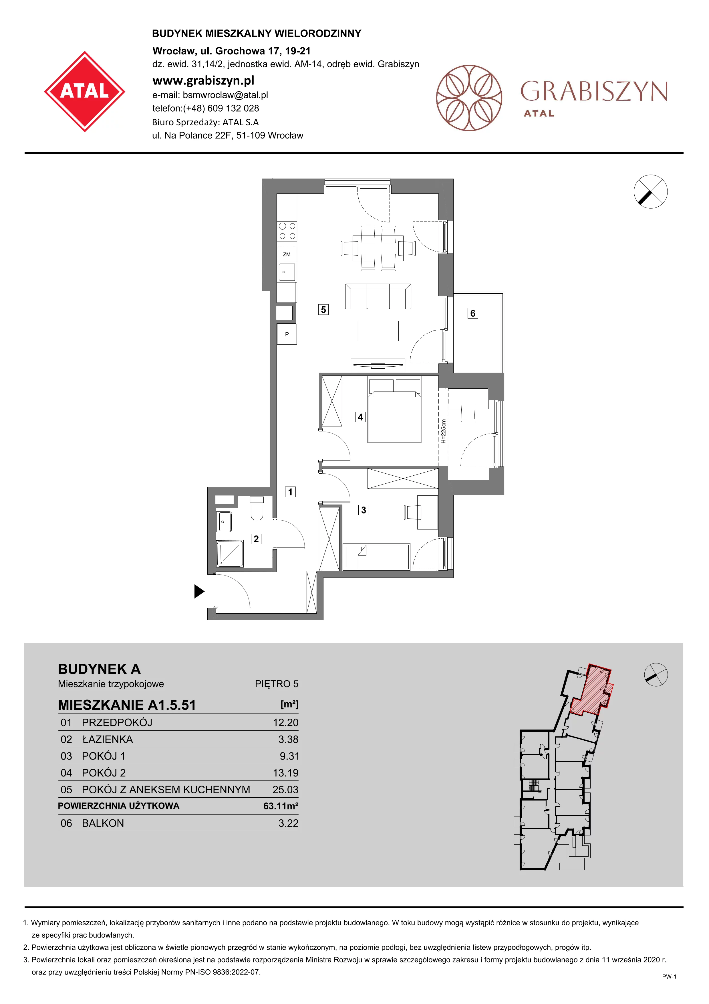
3-pokojowe nowe mieszkanie numer A1.5.51, Wrocław – Gajowice, ul. Grochowa, 5. piętro, 63,11 m²: dwustronne, z balkonem i dużym korytarzem.
To trzypokojowe mieszkanie obejmuje: salon z aneksem kuchennym i jadalnią, sypialnię małżeńską, sypialnię dla dziecka, łazienkę, korytarz wejściowy oraz balkon.
Najważniejsze atuty układu.
-
Zintegrowana strefa dzienna: salon z aneksem kuchennym i jadalnią 25,03 m² scala wypoczynek, gotowanie i jedzenie, co daje lepszy kontakt domowników i gości niż w trzech osobnych pokojach. Trzyosobowa sofa ze stolikiem kawowym, stół dla sześciu osób oraz kuchnia z płytą czteropalnikową, lodówką, zmywarką i długim blatem tworzą wygodny rytm dnia. Dwustronna ekspozycja półudniowy‑wschód i półudniowy‑zachód wzmacnia doświetlenie i pozwala korzystać ze słońca od przedpołudnia po popołudnie.
-
Komfortowa skala nocnej części: sypialnia małżeńska 13,19 m² bez trudu mieści łóżko 160×200, szafę i toaletkę, a mimo to zachowuje swobodę ruchu oraz miejsce na dodatkowe oświetlenie czy ławkę przy łóżku. Półudniowo‑zachodnia ekspozycja sprzyja relaksowi po pracy i przyjemnym, ciepłym zachodom słońca. Wielkość pokoju ułatwia ergonomiczne ustawienie mebli i zapewnia wygodę dwojgu użytkownikom na co dzień.
-
Wyjście z dziennej strefy na powietrze: z salonu z aneksem i jadalnią jest bezpośrednie wyjście na balkon 3,22 m², jedyne wejście prowadzi właśnie stąd, dzięki czemu najjaśniejsza część mieszkania zyskuje dodatkową funkcję. To idealne miejsce na poranną kawę, zioła w donicach czy wieczorny odpoczynek; łatwo też przewietrzyć kuchnię po gotowaniu, a latem przenieść część posiłków na zewnątrz.
-
Sąsiedztwo sprzyjające rodzicom: sypialnia małżeńska położona tuż obok sypialni dla dziecka pozwala szybko zareagować w nocy, ułatwia usypianie oraz codzienną logistykę poranków. Skupienie obu pokoi w jednej części mieszkania ogranicza przemieszczanie się przez strefę dzienną, co podnosi komfort osób odpoczywających w salonie lub pracujących przy stole. Taki układ zmniejsza odczuwalność dźwięków między dzienną a nocną częścią.
-
Bliskość wspierająca najmłodszych i elastyczność funkcji: sypialnia dla dziecka 9,31 m², sąsiadująca z sypialnią małżeńską, daje poczucie bezpieczeństwa i łatwy dostęp do opieki, a jednocześnie jest wystarczająca na łóżko, dużą szafę i biurko. W razie zmiany potrzeb ten pokój sprawdzi się jako cichy gabinet, pokój gościnny lub miejsce hobby, bo znajduje się w strefie nocnej, z dala od kuchennego gwaru, i ma przyjemną półudniowo‑zachodnią ekspozycję.
-
Szerokie przejście 1,25 m między salonem z aneksem i jadalnią a korytarzem wejściowym usprawnia komunikację, doświetla przedpokój światłem z dwóch ekspozycji i ułatwia wnoszenie większych przedmiotów. Wejście do mieszkania prowadzi bezpośrednio do korytarza wejściowego 12,20 m², z którego są drzwi do wszystkich pomieszczeń oraz blisko położonej łazienki 3,38 m² – po powrocie z zewnątrz szybko umyjesz ręce, a goście nie muszą przechodzić przez część prywatną.
To mieszkanie jest idealne dla pary lub rodziny z dzieckiem, która ceni jasną, dwustronną strefę dzienną i wygodny układ nocny obok siebie. Spodoba się też osobom pracującym z domu, potrzebującym elastycznego pokoju na gabinet oraz tym, którzy lubią korzystać z balkonu i mieć wygodny, duży korytarz na start dnia.