-
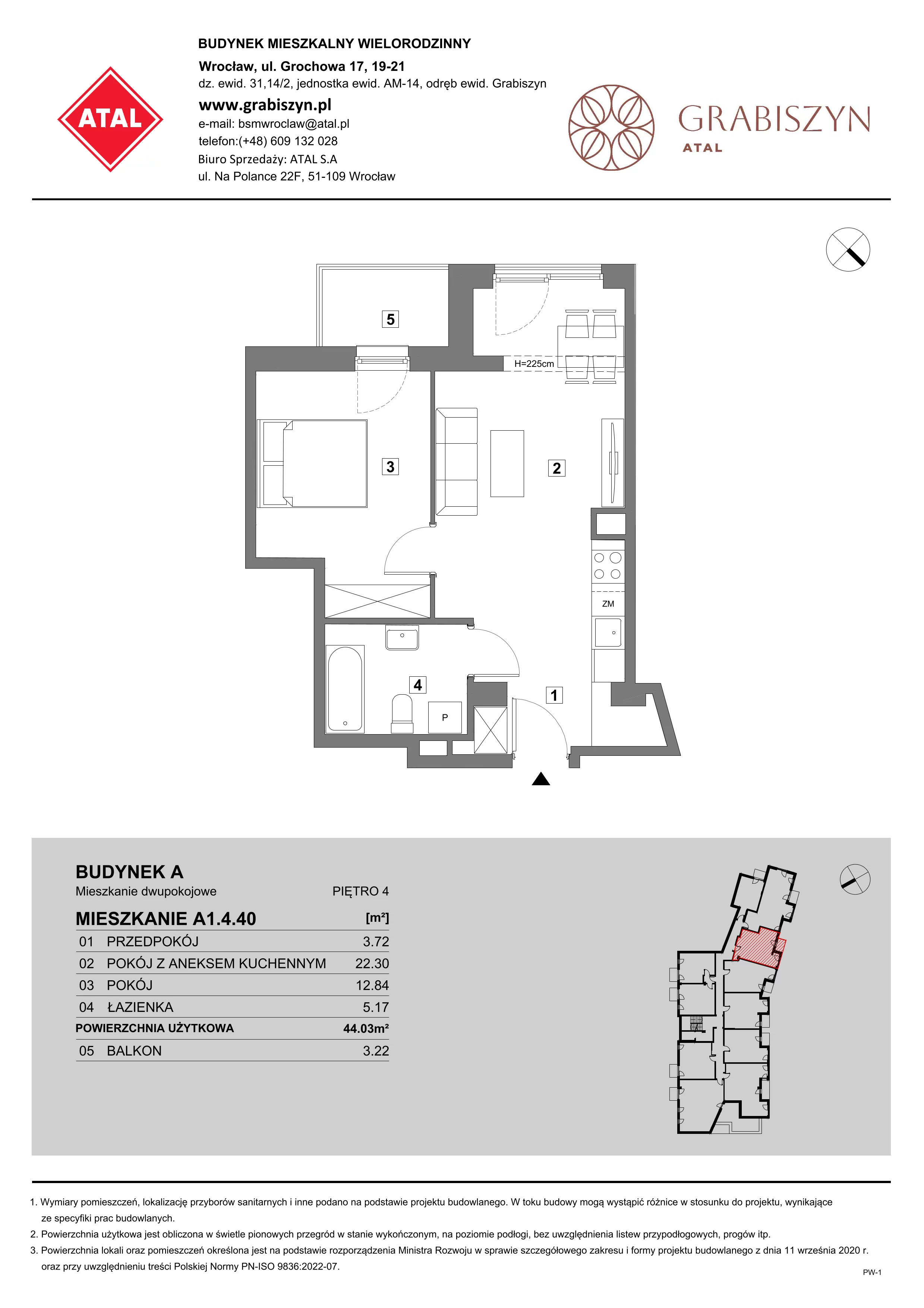
Salon z aneksem kuchennym i jadalnią skupia trzy funkcje w jednym miejscu, co ułatwia codzienność: relaks na sofie trzyosobowej 235x100 cm ze stolikiem 120x60 cm, gotowanie przy zestawie z płytą 60x60, lodówką 60x60, zmywarką 60x44, zlewem 45x45 i blatem 95x60 oraz wygodne posiłki przy stole 120x85 cm dla czterech osób. Zgrupowanie funkcji oszczędza metry kwadratowe względem rozbicia na osobne pokoje, dzięki czemu zyskujesz większą strefę dzienną, lepszą komunikację i wspólne życie towarzyskie. Okna na półudniowy-zachód doświetlają całodzienną aktywność i zapewniają ciepłe popołudniowe światło.
-
Sypialnia małżeńska 12,84 m² daje komfort pełnowymiarowego odpoczynku: mieści łóżko 200x160 cm, szafę 190x60 cm i wciąż pozostawia wygodne przejścia po obu stronach łóżka. Rozmiar umożliwia dodanie toaletki lub biurka bez uczucia ciasnoty, a ekspozycja półudniowo-zachodnia zapewnia przytulne popołudniowe światło sprzyjające relaksowi. Takie metry ułatwiają wydzielenie kącika do czytania lub pracy, a zarazem pozostawiają łóżko jako centralny punkt wieczornego wyciszenia.
-
Łazienka 5,17 m² jest bardzo duża jak na metraż mieszkania, więc wygodnie mieści wannę 160x70 cm, pralkę 60x60 cm, toaletę wiszącą 55x35 cm i umywalkę 60x45 cm z miejscem na dodatkową szafkę. Taki rozmiar to płynne poranne rytuały bez kolejek, swoboda manewru przy kąpieli dziecka lub pupila oraz możliwość dodania suszarki czy półek bez kompromisów. Większa kubatura lepiej radzi sobie z parą, co poprawia komfort i estetykę.
-
Wyjście z sypialni małżeńskiej na balkon 3,22 m² (jedno wejście: wyłącznie z sypialni) tworzy prywatny azyl – idealny na poranną kawę, szybkie wietrzenie lub miniogród w donicach, bez konieczności przechodzenia przez strefę dzienną. Prywatność sprzyja odpoczynkowi, a ekspozycja półudniowo-zachodnia gwarantuje miłe wieczorne światło. To także naturalne wsparcie w regulacji temperatury sypialni latem oraz ciche miejsce na chwilę oddechu po pracy.
-
Bliskie sąsiedztwo łazienki tuż obok sypialni małżeńskiej skraca nocne przejścia i podnosi wygodę porannego szykowania się dwojga domowników. Krótka droga ogranicza zbędny ruch w części dziennej, więc osoba pracująca lub odpoczywająca w salonie pozostaje mniej rozpraszana. Goście korzystają z łazienki bez wglądu w prywatną strefę sypialni, a domownicy śpiący dłużej budzą się rzadziej, co realnie poprawia komfort całego mieszkania.
-
Bezpośrednie wejście do sypialni małżeńskiej z salonu z aneksem kuchennym i jadalnią usprawnia codzienne funkcjonowanie: po filmie czy kolacji przechodzisz prosto do strefy snu, bez zbędnych korytarzy i tracenia metrów. To korzystne dla par i rodziców z maluchem, którzy chcą szybko reagować w nocy, a jednocześnie zamykane drzwi sypialni zapewniają ciszę podczas pracy lub drzemki. Mniejsza liczba przejść oznacza też mniej sprzątania i krótsze trasy komunikacyjne.
-
Bezpośrednie wejście do łazienki z salonu z aneksem kuchennym i jadalnią podnosi wygodę dla domowników i gości: szybkie umycie rąk po gotowaniu, dostęp bez błądzenia i brak kolejek w korytarzu. Taki układ sprzyja porządkowi po rodzinnych posiłkach i spotkaniach towarzyskich, bo sanitariat jest blisko strefy aktywności. Centralne usytuowanie łazienki ułatwia też codzienne rytuały, a sypialnia pozostaje miejscem niezakłóconego odpoczynku.
-
Szerokie, otwarte przejście 1,55 m między salonem z aneksem kuchennym i jadalnią a przedsionkiem 3,72 m² buduje efekt oddechu zaraz po wejściu do mieszkania i ułatwia komunikację. To świetne do wnoszenia zakupów czy większych mebli, a także pomaga w naturalnym doświetleniu strefy wejściowej światłem z salonu. Wejście do mieszkania prowadzi prosto do przedsionka, w którym mieszczą się dwie szafy (88x60 cm oraz 38x26 cm), co porządkuje strefę butów i okryć, a szerokie przejście sprawia, że nic tu nie krępuje ruchu.
To mieszkanie jest idealne dla pary lub singla ceniących jasną strefę dzienną, dużą łazienkę i prywatny balkon dostępny bezpośrednio z sypialni. Sprawdzi się także dla młodych rodziców i osób pracujących z domu, dzięki szybkim przejściom między strefami i wygodnej komunikacji bez marnowania metrów.