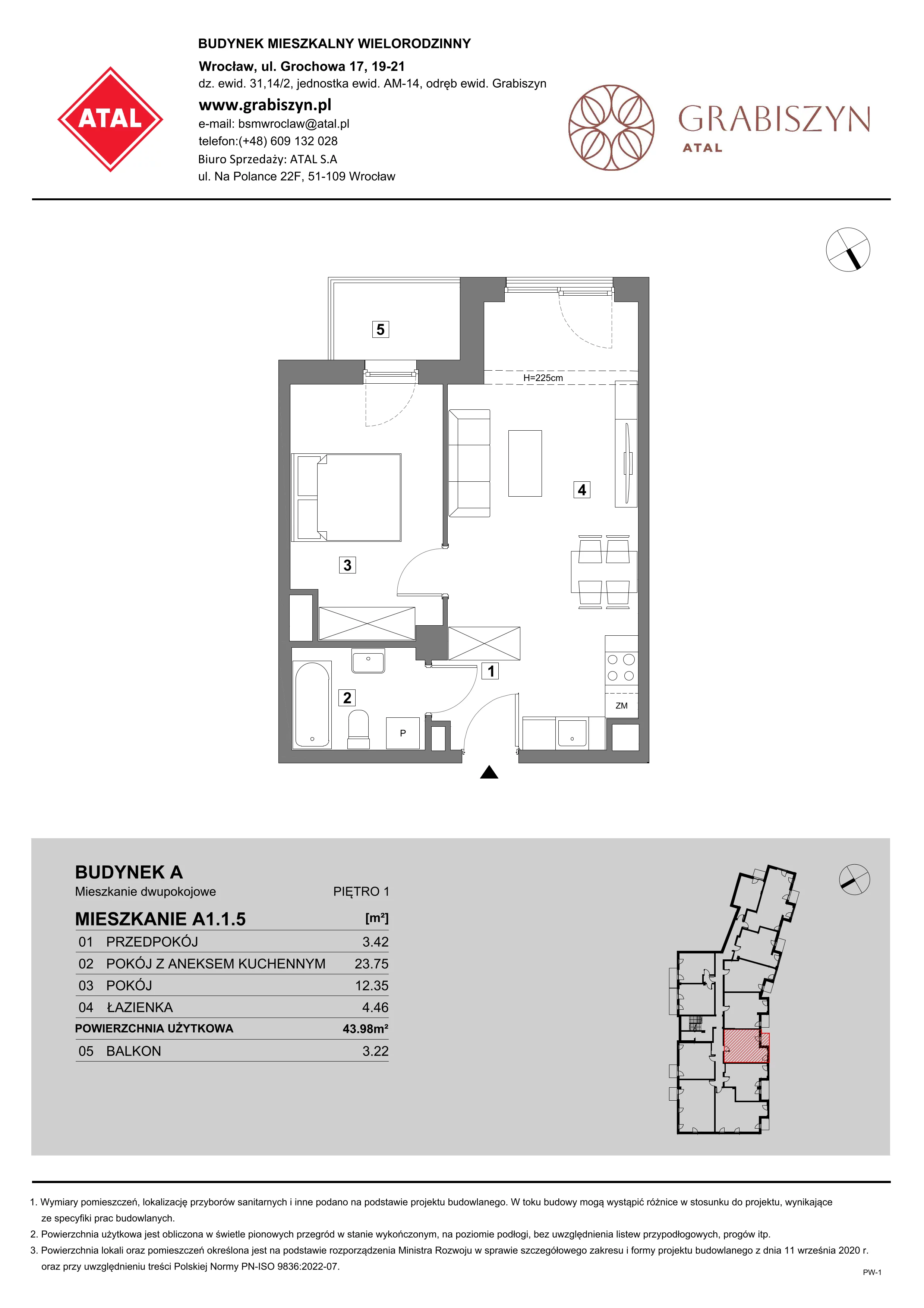
2-pokojowe, nowe mieszkanie numer A1.1.5 – Wrocław, Gajowice, ul. Grochowa, I piętro, 43,98 m² – duży salon z aneksem, sypialnia z balkonem, słoneczna ekspozycja.
Ono obejmuje: salon z aneksem kuchennym i jadalnią, sypialnię małżeńską, łazienkę, korytarz wejściowy oraz balkon.
Najważniejsze atuty układu i funkcji mieszkania.
-
Zintegrowanie funkcji w salonie z aneksem kuchennym i jadalnią (23,75 m²) sprzyja wspólnemu spędzaniu czasu i lepszemu doświetleniu stref dziennych, co w dwupokojowym mieszkaniu jest wyjątkowo korzystne względem wydzielania osobnych pokoi. Pełnowymiarowa kuchnia z płytą 60×60 cm, lodówką 60×60 cm, zmywarką 60×44 cm, zlewem 45×45 cm w blacie oraz blatami 95×60 i 40×60 cm współgra z częścią wypoczynkową (sofa 235 cm, stolik 120×60 cm) i jadalnią (stół 120×85 cm dla czterech osób), a okna na półudniowy‑zachód wzmacniają wrażenie jasności i komfortu codziennych czynności.
-
Metraż salonu z aneksem kuchennym i jadalnią pozwala swobodnie rozplanować strefę kanapową, pełnowymiarowy stół i ciąg roboczy kuchni bez kolizji komunikacyjnych, co podnosi wygodę codziennego życia. Mieści się tu zarówno trzyosobowa sofa, jak i wygodny stół dla gości, a szerokie przejścia między meblami ułatwiają poruszanie się. Duże przeszklenia z ekspozycją na półudniowy‑zachód zapewniają dłuższe nasłonecznienie po pracy, a układ sprzyja rodzinnym posiłkom, spotkaniom i pracy przy stole.
-
Sypialnia małżeńska (12,35 m²) komfortowo mieści łóżko 200×160 cm, szafę 176×60 cm oraz stoliki nocne, pozostawiając wygodny dostęp do każdej strony łóżka i możliwość dodania toaletki lub małego biurka. Okna na półudniowy‑zachód zapewniają ciepłe, popołudniowe światło, przyjemne do czytania i relaksu. Dzięki proporcjom pokój sprzyja wyciszeniu, a zaproponowana zabudowa nie dominuje wnętrza, co ułatwia utrzymanie harmonii i ładu.
-
Wyjście z sypialni małżeńskiej na balkon 3,22 m² to dyskretna, codzienna przyjemność: poranna kawa, szybkie wietrzenie i miejsce na zioła czy dwa krzesła ogrodowe. Wejście odbywa się wyłącznie z sypialni małżeńskiej, co gwarantuje prywatny charakter kącika na świeżym powietrzu i brak tranzytu przez strefę dzienną. Dodatkowe drzwi balkonowe wzmacniają doświetlenie i dają możliwość naturalnej wentylacji w upalne wieczory.
-
Bezpośrednie wejście do sypialni małżeńskiej z salonu z aneksem kuchennym i jadalnią podnosi wygodę wieczornego użytkowania – po kolacji wystarczy kilka kroków, by znaleźć się w strefie nocnej, bez błądzenia po korytarzach. To korzystne dla samej sypialni małżeńskiej, bo ułatwia codzienną rutynę i ogranicza niepotrzebne drzwi, a dla reszty dwupokojowego mieszkania oznacza czytelną komunikację: goście mają łazienkę dostępną z korytarza wejściowego, a prywatny pokój pozostaje spokojny i nienaruszony.
-
Otwarte przejście o szerokości 1,02 m między salonem z aneksem kuchennym i jadalnią a korytarzem wejściowym (3,42 m²) ułatwia wnoszenie zakupów, poprawia cyrkulację powietrza i doświetla korytarz wejściowy światłem dziennym. Szafa 134×60 cm w korytarzu wejściowym zmieści odzież wierzchnią bez zawężania przejścia, a brak dodatkowych drzwi redukuje zatory komunikacyjne. Taki układ sprzyja płynnemu witaniu gości i szybkiemu dostępowi do salonu z aneksem kuchennym i jadalnią tuż po przekroczeniu progu.
To dwupokojowe mieszkanie jest idealne dla pary, która ceni jasną strefę dzienną z pełną kuchnią, wygodną sypialnię z własnym balkonem i szybki dostęp do wszystkich funkcji od wejścia. Sprawdzi się także u singla pracującego hybrydowo, oczekującego dużego stołu do pracy, spokojnej sypialni i korzystnej ekspozycji okien na półudniowy‑zachód.