-
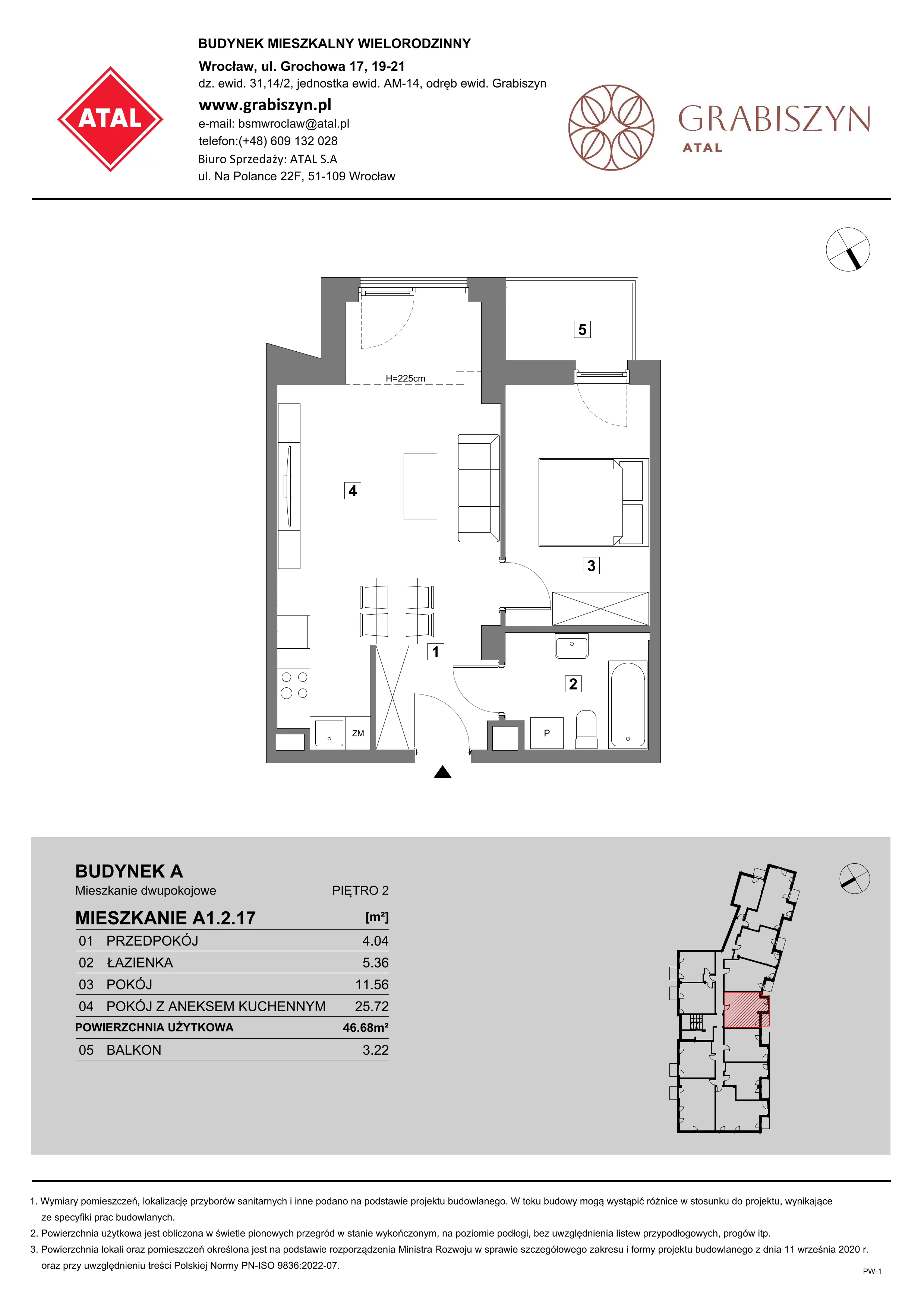
Łączenie stref w salonie z aneksem kuchennym i jadalnią 25,72 m² to wyjątkowy walor dla mieszkania dwupokojowego: w jednym, wygodnym wnętrzu masz odpoczynek z sofą i stolikiem kawowym, gotowanie na czteropalnikowej płycie z lodówką, zmywarką i zlewem zintegrowanym z blatem oraz rodzinne posiłki przy stole dla czterech osób. Zamiast trzech mniejszych, odseparowanych pomieszczeń zyskujesz większy komfort codziennych aktywności, krótsze dystanse i lepszą komunikację domowników oraz gości.
-
Bardzo duża, jak na ten metraż, skala salonu z aneksem i jadalnią 25,72 m² pozwala na swobodne ustawienie pełnowymiarowej trzyosobowej sofy, stołu dla czterech osób i pełnej zabudowy kuchennej z dwoma blatami roboczymi, bez wrażenia ścisku. Miejsce wystarczy również na dodatkowy fotel lub biurko do pracy, dzięki czemu wnętrze łatwo dopasujesz do zmieniających się potrzeb dnia codziennego i weekendowego relaksu.
-
Wyjątkowo obszerna łazienka 5,36 m² mieści komfortową wannę 160 cm, pralkę, wiszącą toaletę i szeroką umywalkę, pozostawiając wygodną strefę manewru bez konieczności kompromisów. Taki metraż ułatwia dwóm osobom równoległe korzystanie z pomieszczenia, zapewnia lepszą ergonomię ustawienia armatury oraz wygodne utrzymanie czystości i porządku akcesoriów łazienkowych.
-
Wyjście z sypialni małżeńskiej na balkon 3,22 m² to prywatna strefa oddechu dostępna bezpośrednio z miejsca nocnego wypoczynku; wejście na balkon odbywa się wyłącznie z tej sypialni, co wzmacnia poczucie intymności. To idealne miejsce na poranną kawę, szybkie wietrzenie pościeli czy zielnik w donicach, a półudniowo‑zachodnia ekspozycja zapewnia przyjemne popołudniowe światło i ciepłe zachody słońca.
-
Bezpośrednie wejście do sypialni małżeńskiej z salonu z aneksem i jadalnią usprawnia codzienną rutynę: łatwo przejdziesz do łóżka po wieczornej kolacji, a w nocy skorzystasz z kuchni, nie klucząc po mieszkaniu. Dla komfortu pozostałej części mieszkania oznacza to czytelny podział na część dzienną i prywatną oraz krótsze ścieżki komunikacji, co sprzyja ciszy w sypialni i wygodzie domowników oraz gości.
-
Szerokie, otwarte przejście 1,29 m między salonem z aneksem i jadalnią a korytarzem wejściowym dodaje swobody ruchu i poprawia doświetlenie holu światłem z dużych okien części dziennej. Łatwiej wnieść większe meble, nie ma kolizji skrzydeł drzwiowych, a wejście do mieszkania prowadzi wprost do korytarza z szybkim dostępem do łazienki po lewej, co jest bardzo wygodne po powrocie do domu.
-
Przemyślane wejście do mieszkania w korytarz wejściowy 4,04 m², tuż obok łazienki 5,36 m², zapewnia praktyczną obsługę dnia: po przyjściu z zewnątrz można od razu umyć ręce czy odświeżyć się, a pełnowymiarowa szafa w holu bez trudu mieści garderobę sezonową. Krótki, czytelny bieg komunikacji prowadzi następnie do części dziennej, dzięki czemu poranne wyjścia i wieczorne powroty przebiegają płynnie.
-
Okna zarówno salonu z aneksem i jadalnią, jak i sypialni małżeńskiej wychodzą na półudniowy‑zachód, co daje długie godziny naturalnego światła po pracy i przyjazny klimat do relaksu. Wieczorne słońce podkreśla atmosferę w części wypoczynkowej, a na balkonie tworzy idealne warunki na odpoczynek latem i uprawę roślin światłolubnych.
To mieszkanie będzie idealne dla pary lub singla pracującego z domu, ceniących wygodę dużej części dziennej i komfort ponadprzeciętnej łazienki. Sprawdzi się także u osób lubiących jasne, słoneczne wnętrza z kameralnym balkonem i szybkim dostępem do wszystkich funkcji na co dzień.