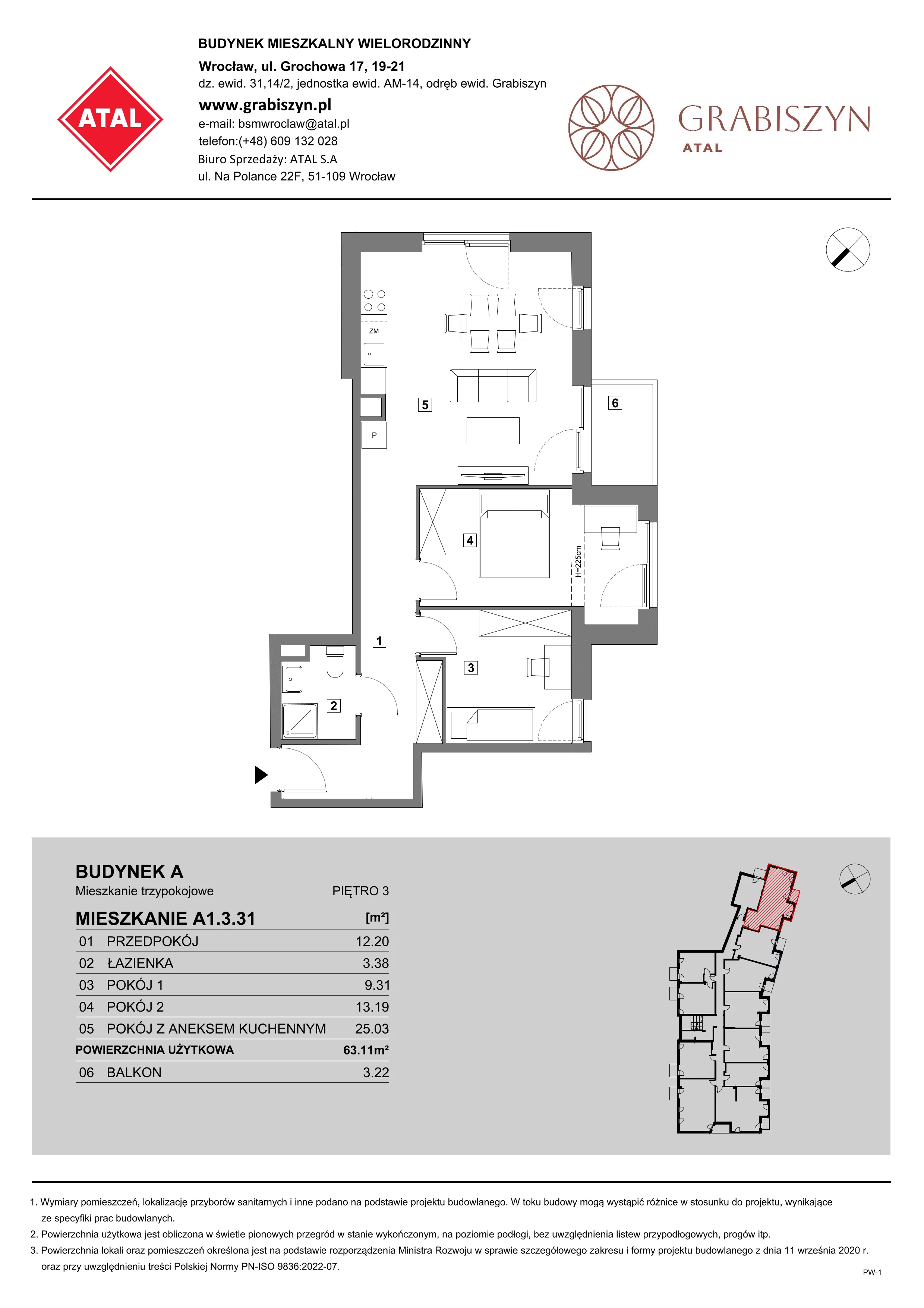
3‑pokojowy nowy lokal numer A1.3.31 – Wrocław, Gajowice, ul. Grochowa, 3. piętro, 63,11 m² – słoneczna strefa dzienna, balkon i rodzinny układ.
To trzypokojowe mieszkanie obejmuje: salon z aneksem kuchennym i jadalnią (25,03 m²) z wyjściem na balkon (3,22 m²), sypialnię małżeńską (13,19 m²), sypialnię dla dziecka (9,31 m²), łazienkę (3,38 m²) oraz korytarz wejściowy (12,20 m²).
Najważniejsze atuty układu pomieszczeń.
-
Salon z aneksem kuchennym i jadalnią (25,03 m²) łączy wypoczynek, gotowanie i jedzenie w jednej, świetnie doświetlonej strefie z oknami na półudniowy‑wschód i półudniowy‑zachód. Sofa trzyosobowa, stolik kawowy, zabudowa z płytą czteropalnikową, lodówką, zmywarką oraz zlewem zintegrowanym z blatem i stół dla sześciu osób sprzyjają wspólnemu spędzaniu czasu. W porównaniu z wydzielonymi pokojami daje krótsze dystanse, lepszy kontakt domowników i wygodniejszą organizację życia rodzinnego oraz przyjęć.
-
Sypialnia małżeńska o 13,19 m² zapewnia swobodę ustawienia łóżka dwuosobowego, szafy i toaletki, nadal pozostawiając komfortowe przejścia. Ekspozycja półudniowo‑zachodnia gwarantuje przyjemne światło po południu i wieczorem. Rozmiar umożliwia dodanie fotela do czytania lub małego biurka, dzięki czemu pokój służy nie tylko nocą, ale też do kameralnego relaksu lub pracy.
-
Wyjście z salonu z aneksem na balkon (3,22 m²) sprawia, że strefa dzienna naturalnie rozszerza się o miejsce na poranną kawę, zioła w donicach i dwa krzesła. Jedyny dostęp prowadzi bezpośrednio z salonu, więc serwowanie posiłków na zewnątrz i szybkie wietrzenie po gotowaniu są wyjątkowo wygodne, bez przemieszczania się przez inne pomieszczenia czy korytarz.
-
Bliskie sąsiedztwo: sypialnia małżeńska tuż obok sypialni dla dziecka sprzyja opiece nocnej i szybkiemu reagowaniu bez przecinania strefy dziennej. To ważne dla komfortu całego mieszkania: gdy dziecko śpi, ruch między sypialniami pozostaje cichy i krótki, a w salonie z aneksem można spokojnie dokończyć film lub kolację, nie chodząc daleko i nie otwierając dodatkowych drzwi.
-
Bliskie sąsiedztwo: sypialnia dla dziecka tuż obok sypialni małżeńskiej daje maluchowi poczucie bezpieczeństwa, a starszakowi – bliskość rodziców i jednocześnie łatwy dostęp do zacisznego miejsca nauki z biurkiem. Dzięki lokalizacji przy strefie nocnej, z dala od aneksu, pokój świetnie sprawdzi się także jako gabinet, pokój gościnny lub kącik hobby, nie zakłócając życia w salonie z aneksem.
-
Szerokie, otwarte przejście 1,25 m między salonem z aneksem i jadalnią a korytarzem wejściowym poprawia komunikację, doświetla długi korytarz światłem dziennym i ułatwia wnoszenie większych przedmiotów. Dzięki temu użyteczne 12,20 m² korytarza działa jak bufor akustyczny i wygodna strefa wejścia z miejscem na szafę oraz ławkę. Z korytarza wchodzi się do wszystkich pomieszczeń, a położona tuż przy drzwiach łazienka z prysznicem z odpływem liniowym ułatwia korzystanie gościom i po powrocie z treningu.
To mieszkanie idealne jest dla pary planującej dziecko lub rodziny z jednym dzieckiem, ceniących jasną strefę dzienną, wygodne sąsiedztwo sypialni i funkcjonalny korytarz. Sprawdzi się także u osób pracujących z domu, które potrzebują dodatkowego pokoju na gabinet i chcą korzystać z balkonu oraz świetnej komunikacji wewnętrznej.