-
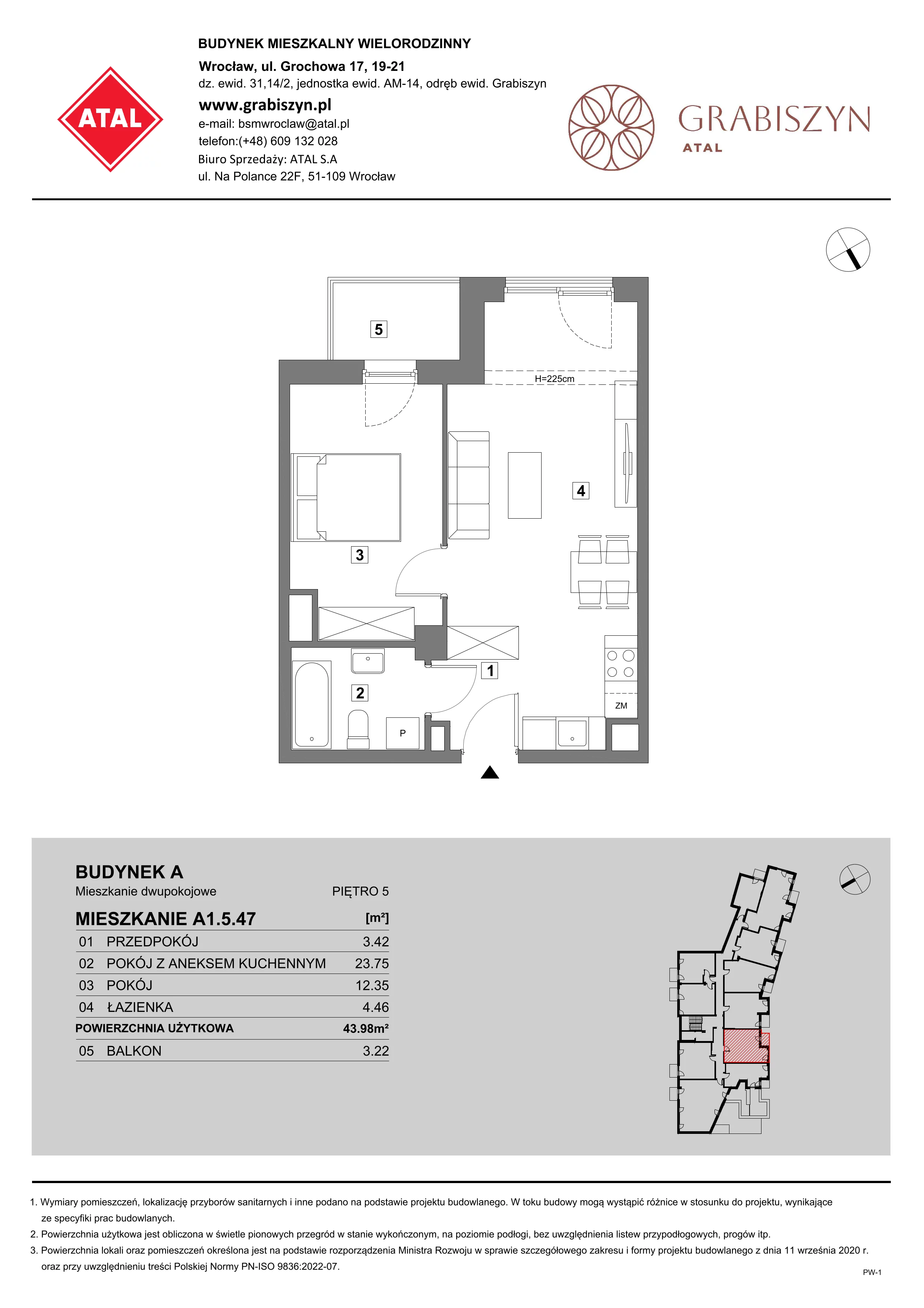
Zintegrowana strefa dzienna: salon z aneksem kuchennym i jadalnią 23,75 m² skupia wypoczynek, gotowanie i jedzenie w jednym miejscu, dzięki czemu domownicy i goście pozostają w kontakcie, a metraż nie jest konsumowany przez ścianki i dodatkowe drzwi. Stół dla czterech osób, sofa trzyosobowa, stolik kawowy oraz pełna zabudowa kuchenna z płytą czteropalnikową, lodówką, zmywarką i zlewem tworzą wygodny rytm dnia bez konieczności przemieszczania się między osobnymi pokojami.
-
Duża jak na ten metraż skala strefy dziennej: salon z aneksem kuchennym i jadalnią pozwala swobodnie rozmieścić trzy strefy, zachowując przejścia, ustawny układ mebli oraz komfort pracy na blatach. Mieści stół czteroosobowy, sofę z trzema siedziskami i długi blat roboczy, a równocześnie zapewnia miejsce na sprzęty kuchenne pełnej szerokości, co ułatwia gotowanie, spotkania i relaks bez ścisku.
-
Komfortowa sypialnia małżeńska 12,35 m² wspiera zdrowy sen i poranną rutynę: mieści łóżko 160×200 cm oraz szafę o szerokości blisko 176 cm na garderobę, pozostawiając wygodne dojścia z obu stron. Taki metraż ogranicza konieczność kompromisów aranżacyjnych, umożliwia dodanie szafek nocnych czy toaletki, a dzięki oknom na półudniowy‑zachód oferuje przytulne, popołudniowe światło.
-
Wyjście z sypialni małżeńskiej na balkon 3,22 m² to prywatna strefa wytchnienia tylko dla domowników; wejście na balkon prowadzi wyłącznie z sypialni, co zwiększa intymność porannej kawy lub wieczornego relaksu. Drzwi balkonowe doświetlają pokój, ułatwiają wietrzenie i wprowadzają zieleń na co dzień, a ekspozycja półudniowo‑zachodnia zapewnia ciepłe słońce po pracy.
-
Bezpośrednie wejście do sypialni małżeńskiej z salonu z aneksem kuchennym i jadalnią skraca codzienne trasy i ułatwia szybkie wycofanie się do ciszy bez krążenia po mieszkaniu. Jednocześnie goście korzystają głównie ze strefy dziennej i łazienki, więc prywatny pokój pozostaje poza głównym obiegiem, co podnosi komfort użytkowania całej przestrzeni.
-
Otwarte przejście o szerokości 1,02 m między korytarzem wejściowym 3,42 m² a salonem z aneksem kuchennym i jadalnią wita światłem dziennym już od progu, poprawia cyrkulację powietrza i ułatwia komunikację. Szersze światło przejścia pomaga przy wnoszeniu zakupów i większych przedmiotów, a także kieruje naturalny ruch domowników prosto do strefy dziennej, pozostawiając przedpokój uporządkowany i funkcjonalny.
-
Praktyczny korytarz wejściowy 3,42 m² z miejscem na szafę ok. 134 cm zapewnia wygodne odłożenie kurtek i butów zaraz po wejściu, bez zagracania pokoju dziennego. Z tego holu jest czytelny dostęp do łazienki oraz do salonu z aneksem, więc poranne przygotowania odbywają się płynnie, a goście odnajdują drogę intuicyjnie.
-
Wygodna łazienka 4,46 m² mieści wannę 160×70 cm, pralkę, umywalkę z blatem oraz toaletę wiszącą, oferując pełen komfort kąpieli i codziennych rytuałów. Rozmiar pozwala dodać półki i kosze na rzeczy, a układ urządzeń ułatwia utrzymanie czystości oraz bezkolizyjny ruch dwóch osób o różnych porach dnia.
-
Ekspozycja okien salonu z aneksem i sypialni na półudniowy‑zachód w połączeniu z 5. piętrem gwarantuje przyjemne, popołudniowe światło i ładny widok ponad niższą zabudowę. Takie nasłonecznienie sprzyja pracy z domu i relaksowi po południu, a zimą pomaga dogrzać wnętrza, ograniczając potrzebę sztucznego oświetlenia.
To mieszkanie jest idealne dla pary lub singla ceniących jasną strefę dzienną, wygodne gotowanie i prywatny balkon dostępny prosto z sypialni. Sprawdzi się także u osób pracujących z domu, które potrzebują dużego salonu do życia towarzyskiego i wyraźnie wydzielonego miejsca do odpoczynku.