-
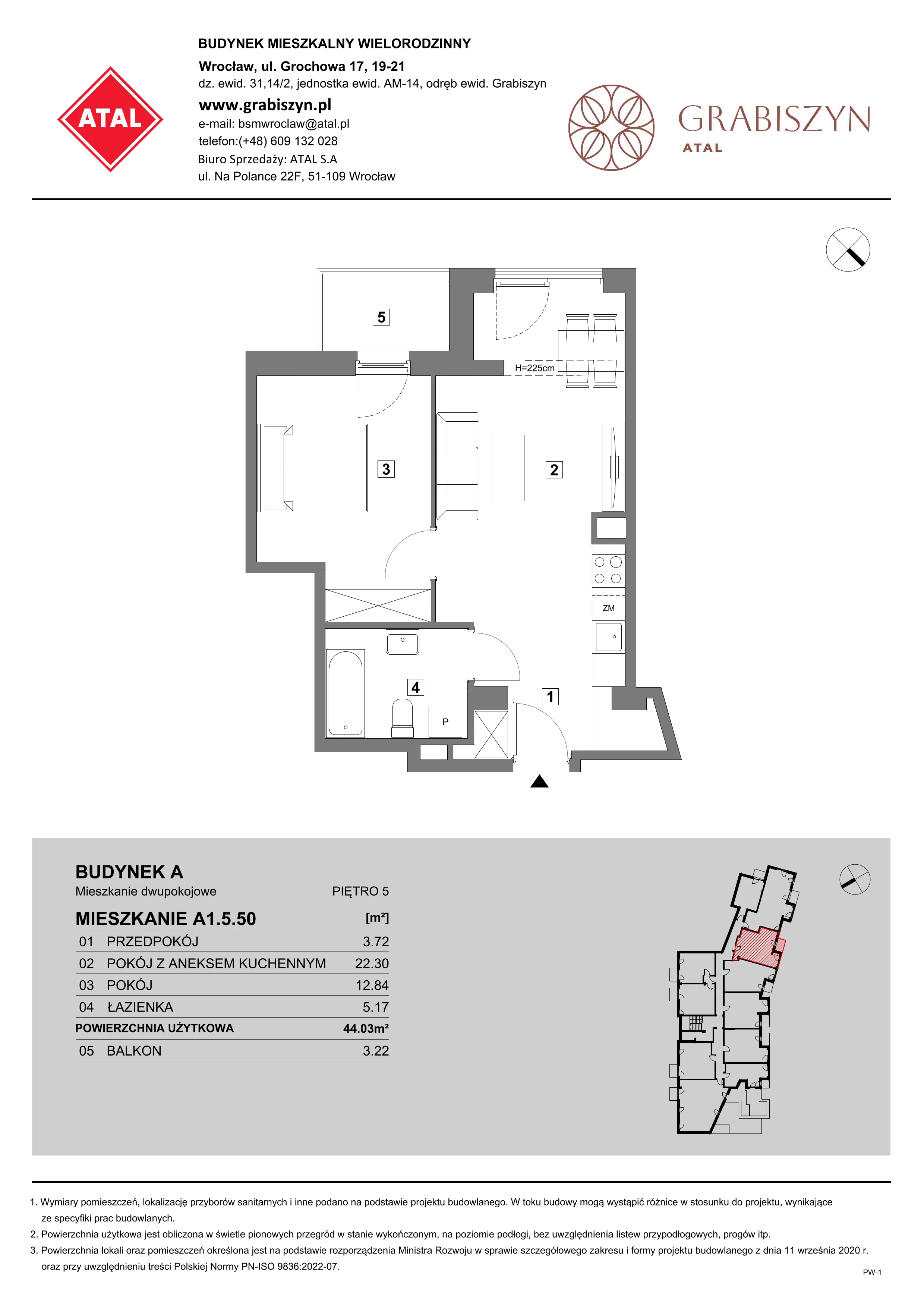
Zintegrowana strefa dzienna: salon z aneksem kuchennym i jadalnią łączy wypoczynek, gotowanie i jedzenie w jednym miejscu, co sprzyja wspólnemu spędzaniu czasu i lepszej komunikacji domowników. Trzyosobowa sofa i stolik kawowy (średniej wielkości) tworzą wygodny kąt relaksu, a stół dla czterech osób wspiera codzienne posiłki oraz pracę z laptopem. Kuchnia z płytą czteropalnikową 60×60 cm, lodówką 60×60 cm, zmywarką 60×44 cm, zlewem 45×45 cm i blatem roboczym 95×60 cm pozwala gotować bez ograniczeń. Okna na półudniowy‑zachód zapewniają długie godziny światła, co w wydzielonych pomieszczeniach byłoby trudniejsze do uzyskania.
-
Komfortowa wielkość sypialni małżeńskiej 12,84 m² ułatwia ustawienie łóżka 160×200 cm oraz szafy 190×60 cm, pozostawiając czytelne przejścia i przestrzeń na dodatkowy mebel, np. toaletkę lub kompaktowe biurko. Dzięki temu sypialnia pełni nie tylko funkcję nocnego wypoczynku, ale także miejsca cichej pracy czy lektury. Kierunek okien na półudniowy‑zachód daje przyjemne, popołudniowe światło, sprzyjające relaksowi. Rozmiar pokoju ogranicza konieczność kompromisów aranżacyjnych i ułatwia utrzymanie porządku.
-
Wyjątkowo duża jak na ten metraż łazienka 5,17 m² mieści wygodną wannę 160×70 cm, pralkę 60×60 cm, toaletę wiszącą 55×35 cm oraz umywalkę 45×60 cm, pozostawiając swobodę ruchu. Taki rozmiar zwiększa wygodę codziennych rytuałów, umożliwia bezkolizyjne korzystanie przez dwie osoby oraz komfortowe kąpiele dzieci. Jest także miejsce na kosz na pranie i składaną suszarkę, co ogranicza rozstawianie sprzętów w innych częściach mieszkania. Większy metraż łazienki pozytywnie wpływa na ergonomię i higienę.
-
Wyjście z sypialni małżeńskiej na balkon 3,22 m² to intymna strefa na poranną kawę lub wieczorny relaks w promieniach półudniowo‑zachodniego słońca. Dostęp wyłącznie z sypialni sprzyja prywatności i ciszy, bez przeciągów wynikających z ruchu gości w części dziennej. Taka relacja pomieszczeń ułatwia szybkie wietrzenie pokoju oraz ekspozycję roślin doniczkowych lub ziół. Dodatkowe drzwi balkonowe poprawiają przewiew, co latem znacząco podnosi komfort snu.
-
Bliskość łazienki tuż obok sypialni małżeńskiej skraca nocne i poranne przejścia, co ma znaczenie dla wygody pary oraz osób wstających o różnych porach. Mniejsze odległości zmniejszają hałas i czas korzystania z ciągów komunikacyjnych, dzięki czemu domownicy i goście w strefie dziennej nie przeszkadzają sobie wzajemnie. Taki układ zwiększa też funkcjonalność porannej rutyny: szybki prysznic obok sypialni uwalnia salon z aneksem kuchennym i jadalnią od nadmiernego ruchu, utrzymując porządek i spokój w części dziennej.
-
Bezpośrednie wejście do sypialni małżeńskiej z salonu z aneksem kuchennym i jadalnią upraszcza komunikację na co dzień i skraca drogę do strefy nocnej bez zbędnych korytarzy. Przy uchylonych drzwiach światło z okien półudniowo‑zachodnich może doświetlać oba pomieszczenia, poprawiając odczucie ładu. Takie usytuowanie ułatwia szybkie odłożenie rzeczy po powrocie do domu i pozwala reagować na potrzeby dziecka śpiącego w sypialni, nie tracąc kontaktu z częścią dzienną. Całość działa sprawniej, a ruch domowników rozkłada się naturalnie.
-
Bezpośrednie wejście do łazienki z salonu z aneksem kuchennym i jadalnią zwiększa wygodę gości oraz domowników przebywających w strefie dziennej, ograniczając krążenie po mieszkaniu. To szczególnie ważne podczas spotkań przy stole: można dyskretnie skorzystać z łazienki bez przechodzenia przez sypialnię. Jednocześnie łazienka pozostaje wystarczająco blisko sypialni małżeńskiej, więc obie części mieszkania mają równy, szybki dostęp. Taki układ sprzyja higienie i organizacji codziennych czynności, minimalizując kolizje.
-
Szerokie, otwarte przejście 1,55 m między przedsionkiem a salonem z aneksem kuchennym i jadalnią tworzy wygodne, reprezentacyjne wejście, ułatwia wnoszenie zakupów, wózka czy rowerka oraz poprawia cyrkulację światła. Start w przedsionku 3,72 m², wyposażonym w szafę 88×60 cm i wąską szafkę 38×26 cm, pozwala szybko odłożyć okrycia i obuwie, zanim wejdzie się do części dziennej. Dzięki temu strefa wejściowa działa jak skuteczny bufor, a salon pozostaje schludny już od progu. Ruch domowników jest płynniejszy, a mieszkanie wydaje się jaśniejsze.
To mieszkanie jest idealne dla pary lub singla ceniących wygodną strefę dzienną, dużą sypialnię, ponadstandardową łazienkę oraz intymny balkon z wyjściem z sypialni. Sprawdzi się także u osób pracujących z domu, które potrzebują jasnych, funkcjonalnych pomieszczeń i krótkich, logicznych przejść między strefami.