-
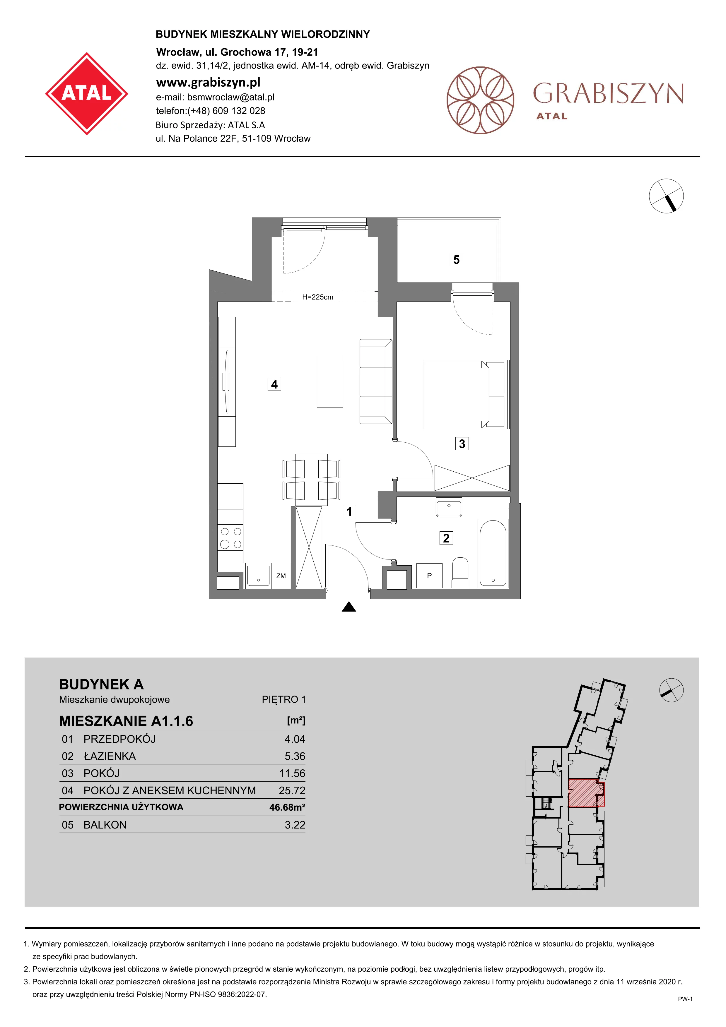
Salon z aneksem kuchennym i jadalnią łączy wypoczynek, gotowanie i jedzenie przy jednym stole, dzięki czemu mieszkańcy są razem w codziennych rytuałach; łatwiej doglądać potraw, rozmawiać z gośćmi i korzystać z naturalnego światła. Gdyby te funkcje rozdzielić na osobne pomieszczenia, w dwupokojowym metrażu powstałyby mniejsze, mniej funkcjonalne pokoiki, trudniejsze do umeblowania i słabiej doświetlone.
-
Bardzo duży jak na dwupokojowe metraże salon z aneksem kuchennym i jadalnią (25,72 m²) mieści wygodną, trzyosobową sofę z dużym stolikiem kawowym 120×60 cm, pełnowymiarową zabudowę kuchenną z płytą czteropalnikową 60 cm, lodówką 60 cm i zmywarką o głębokości 44 cm oraz stół 120×85 cm dla czterech osób, pozostawiając wygodne ciągi komunikacyjne i miejsce na kącik do pracy.
-
Bardzo duża w tej klasie metrażu łazienka (5,36 m²) swobodnie mieści wannę 160×70 cm, pralkę 60×60 cm, toaletę wiszącą i wygodną umywalkę 45×60 cm, zapewniając komfort porannej toalety, łatwiejsze kąpiele dzieci, możliwość rozstawienia suszarki lub dodatkowej szafki oraz wygodny dostęp do wszystkich urządzeń bez ciasnych manewrów.
-
Wyjście z sypialni małżeńskiej na bardzo mały balkon 3,22 m² to prywatny azyl na poranną kawę, wietrzenie pościeli czy mini‑ogródek ziołowy; wejście prowadzi wyłącznie z sypialni małżeńskiej, co podkreśla intymny charakter tej strefy. Ekspozycja półudniowo‑zachodnia pozwala korzystać z popołudniowego słońca i przyjemnych wieczorów na świeżym powietrzu.
-
Bezpośrednie wejście do sypialni małżeńskiej z salonu z aneksem kuchennym i jadalnią skraca codzienną drogę do odpoczynku, ogranicza hałas strefy wejściowej i ułatwia korzystanie z szafy oraz łóżka dwuosobowego. Dla komfortu reszty mieszkania oznacza to, że goście i domownicy mogą poruszać się pomiędzy korytarzem wejściowym a łazienką bez potrzeby przechodzenia w pobliżu strefy nocnej, co zwiększa poczucie prywatności.
-
Szerokie, otwarte przejście 1,29 m pomiędzy salonem z aneksem kuchennym i jadalnią a korytarzem wejściowym usprawnia komunikację, doświetla hol światłem z południowo‑zachodnich okien, ułatwia wnoszenie większych zakupów lub wózka oraz poprawia wentylację. W drugą stronę, hol zyskuje reprezentacyjny charakter, a strefa dzienna staje się bardziej funkcjonalna podczas przyjęć i codziennych aktywności.
-
Wejście do mieszkania prowadzi do korytarza wejściowego (4,04 m²) z pojemną szafą 192×60 cm, a tuż obok znajduje się łazienka – po powrocie łatwo odwiesić odzież, umyć ręce i schować akcesoria, nie angażując od razu strefy dziennej. Takie usytuowanie poprawia organizację dnia, porządkuje pierwsze wrażenie i zwiększa wygodę domowników oraz gości.
-
Okna salonu z aneksem kuchennym i jadalnią oraz sypialni małżeńskiej wychodzą na półudniowy‑zachód, co zapewnia obfite światło po pracy, przyjemne dogrzanie w chłodniejsze dni i mniejszą potrzebę sztucznego oświetlenia. To także idealne warunki dla roślin pokojowych oraz klimatyczne wieczory przy stole i na balkonie.