-
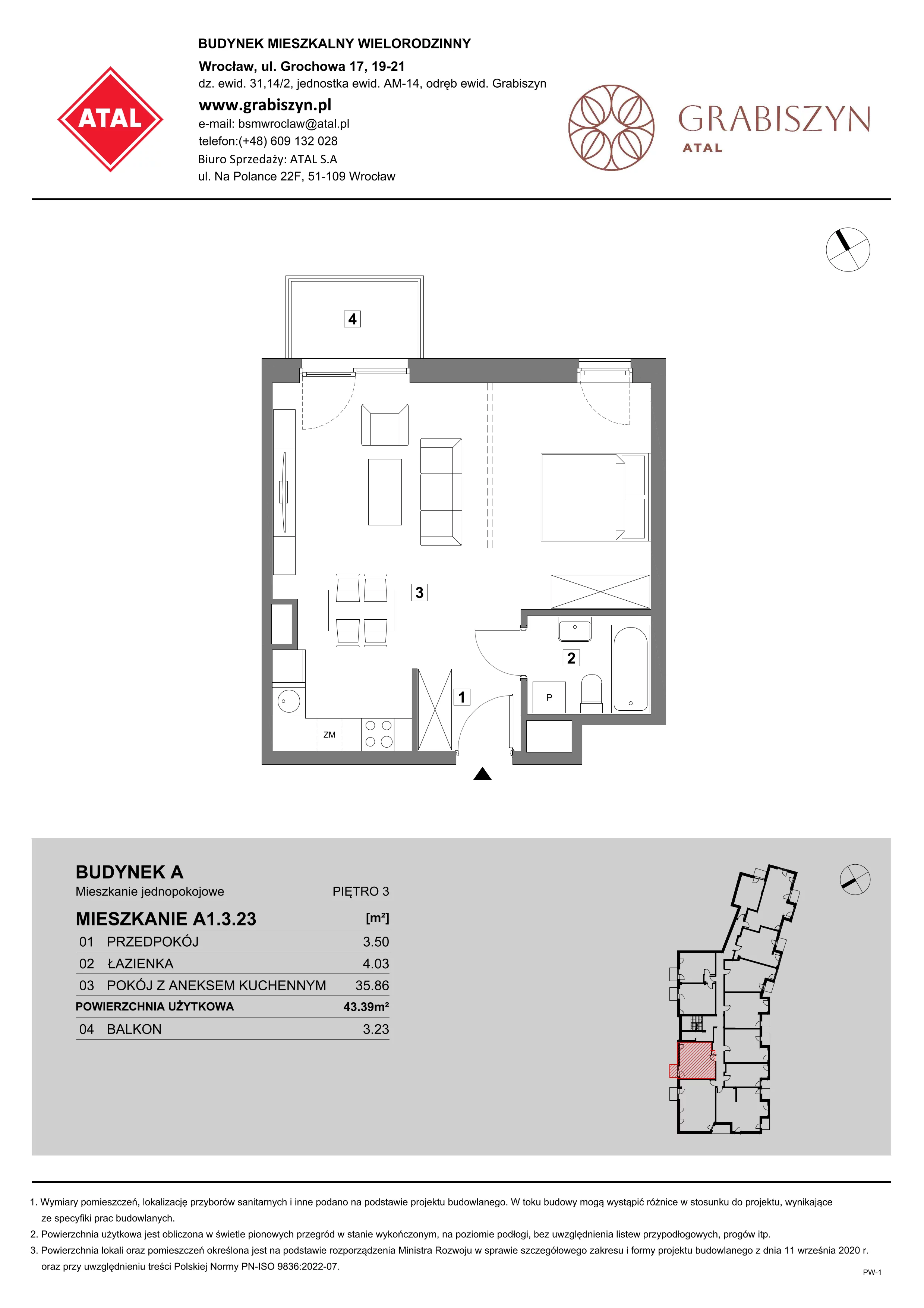
Zintegrowana wspólna strefa 39,36 m² (tworzona przez: salon z aneksem kuchennym, sypialnym i jadalnią oraz korytarz wejściowy) daje wrażenie większego wnętrza niż przy wydzieleniu ścianami, bo światło z okien północno‑wschodnich swobodnie „płynie”, a komunikacja jest krótsza i wygodniejsza. Brak podziałów zwiększa elastyczność ustawienia mebli i łatwość zmiany scenariuszy dnia: od pracy przy stole, przez gotowanie, po relaks. Z korytarza wejściowego są dwa czytelne wejścia: do salonu oraz do łazienki, co upraszcza orientację domowników i gości.
-
Salon z aneksem kuchennym, sypialnym i jadalnią łączy wypoczynek, gotowanie, jedzenie i sen w jednym miejscu, co w jednopokojowym mieszkaniu oszczędza metry na zbędne przejścia i ściany, a codzienne czynności odbywają się „pod ręką”. Pełny zestaw kuchenny (płyta czteropalnikowa, lodówka, zmywarka, zlew i długi blat) współgra ze stołem dla czterech osób, trzyosobową sofą, fotelem i dwuosobowym łóżkiem, dzięki czemu można sprawnie przełączać strefy: rano śniadanie, w dzień praca przy stole, wieczorem relaks lub sen – wszystko bez kompromisów.
-
Ogromna, jak na ten segment, skala salonu z aneksem kuchennym, sypialnym i jadalnią (35,86 m²) pozwala wygodnie rozstawić pełnowymiarowe meble: dwuosobowe łóżko, dużą sofę, stolik kawowy, stół dla czterech osób oraz dodatkowe siedzisko, a wciąż zostaje miejsce na swobodny obieg. Taka wielkość sprzyja też wprowadzeniu dodatkowego biurka lub regału bez poczucia ścisku, a wyraźne strefy nie „walczą” o miejsce – każdy fragment ma komfortowy dystans i oddech.
-
Wyjście z salonu z aneksem kuchennym, sypialnym i jadalnią na balkon 3,23 m² to naturalne przedłużenie dziennej części – idealne na poranną kawę w północno‑wschodnim, łagodnym świetle, krótką przerwę w pracy lub wieczorny relaks. Jedno, bezpośrednie wejście z głównego pomieszczenia ułatwia korzystanie z zewnętrznej strefy bez przecinania innych pokoi, poprawia wentylację i doświetlenie, a w cieplejsze dni poszerza przestrzeń życia o dodatkowe miejsce na rośliny lub mały stolik z krzesłami.
-
Łazienka tuż obok salonu z aneksem kuchennym, sypialnym i jadalnią zwiększa wygodę całego mieszkania: z części wypoczynkowej czy sypialnej dociera się do niej w kilka kroków, co ma znaczenie w nocy i podczas wizyt gości. Wyposażenie w wannę, pralkę, umywalkę i toaletę wiszącą sprawia, że funkcje higieniczne i gospodarcze są w jednym, łatwo dostępnym miejscu, bez kolizji z dziennymi aktywnościami, a krótka droga z kuchni i jadalni ułatwia szybkie mycie rąk czy naczyń pomocniczych.
-
Szerokie, otwarte przejście 1,74 m między salonem z aneksem kuchennym, sypialnym i jadalnią a korytarzem wejściowym wzmacnia poczucie skali, ułatwia wnoszenie większych mebli i poprawia cyrkulację powietrza oraz światła, dzięki czemu hol nie jest ciemnym „tunelkiem”. Wejście do mieszkania prowadzi bezpośrednio do korytarza wejściowego, z którego wchodzimy zarówno do łazienki, jak i do salonu – taki układ ogranicza krzyżowanie tras, porządkuje ruch domowników i pozwala gościom szybko odnaleźć właściwe drzwi.
To mieszkanie będzie idealne dla singla lub pary ceniących dużą, wielofunkcyjną strefę dzienną, jasne poranki od północnego wschodu i wygodę pierwszego piętra. Sprawdzi się także u osób pracujących z domu, które chcą elastycznie aranżować miejsce do pracy bez rezygnacji z komfortu wypoczynku i balkonu.