-
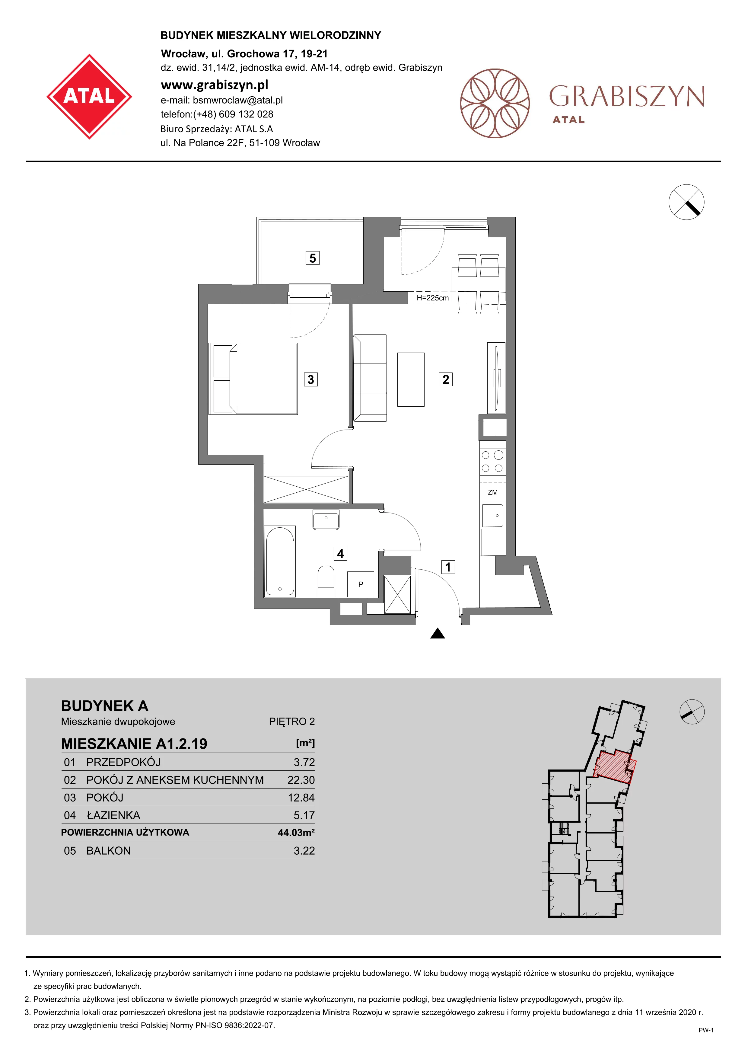
Salon z aneksem kuchennym i jadalnią łączy wypoczynek, gotowanie i jedzenie w jednym, świetnie doświetlonym miejscu z oknami na półudniowy‑zachód, co wzmacnia kontakt domowników i ułatwia codzienną organizację. Stół dla czterech osób, sofa trzyosobowa ze stolikiem oraz pełny zestaw kuchenny z płytą czteropalnikową, lodówką, zmywarką i zlewem w blacie pozwalają wygodnie przyjmować gości bez konieczności „przenoszenia się” między trzema osobnymi pokojami, a brak ścian i korytarzy nie uszczupla metrażu strefy dziennej.
-
Sypialnia małżeńska o znacznej wielkości zapewnia komfort ustawienia łóżka 160×200 cm, szafy oraz szafek nocnych, z wygodnym dostępem po obu stronach łóżka i miejscem na toaletkę lub komodę. Dzięki temu pokój pozostaje funkcjonalny zarówno do snu, jak i do spokojnej pracy czy czytania, a okna na półudniowy‑zachód sprzyjają miłemu światłu popołudniami; wejścia: bezpośrednio z salonu oraz na balkon.
-
Łazienka o bardzo dużej, jak na ten metraż, powierzchni mieści wygodną wannę 160×70 cm, pralkę 60×60 cm, wiszącą toaletę i szeroką umywalkę, pozostawiając swobodę ruchu podczas kąpieli dzieci czy wieczornych rytuałów. Taki metraż ułatwia bezkolizyjne korzystanie dwóm osobom jednocześnie, pozwala na wygodne suszenie rzeczy i ustawienie dodatkowych akcesoriów, podnosząc codzienny komfort całego mieszkania; wejście: bezpośrednio z salonu.
-
Wyjście z sypialni małżeńskiej na balkon daje prywatną strefę relaksu wyłącznie dla gospodarzy, świetną na poranną kawę, krótkie ćwiczenia oddechowe czy wietrzenie pościeli bez ingerencji w życie strefy dziennej. Balkon, dostępny jedynie z sypialni, korzysta z półudniowo‑zachodniego słońca, dzięki czemu sprawdza się na popołudniowy odpoczynek i mini‑zielnik, a jednocześnie nie rozprasza osób przebywających w salonie.
-
Bliskie sąsiedztwo łazienki tuż obok sypialni małżeńskiej skraca drogę nocą i po kąpieli, co docenia się zwłaszcza przy porannych przygotowaniach lub usypianiu dziecka. Dzięki temu domownicy szybciej „znikają” ze strefy dziennej do prywatnej, ograniczając przemieszczanie się przy gościach, a rytm poranka i wieczoru mniej koliduje z odpoczynkiem w salonie.
-
Bezpośrednie wejście do sypialni małżeńskiej z salonu z aneksem kuchennym i jadalnią zwiększa wygodę użytkowania – po filmie lub pracy przy stole wystarczy kilka kroków, by przenieść się do części nocnej. Rezygnacja z dodatkowego korytarza oddaje metraż pomieszczeniom, które faktycznie służą życiu domowemu, ułatwia doświetlenie strefy wejściowej światłem z salonu i skraca codzienne trasy wewnątrz mieszkania.
-
Bezpośrednie wejście do łazienki z salonu z aneksem kuchennym i jadalnią jest idealne dla gości i domowników – każdy ma szybki dostęp bez ingerowania w intymność sypialni. Centralne ulokowanie ułatwia funkcjonowanie podczas spotkań, przyspiesza poranną toaletę i porządki, a jednocześnie utrzymuje wyraźny podział na strefę dzienną i nocną, co poprawia komfort całej rodziny.
-
Szerokie, otwarte przejście 1,55 m między salonem z aneksem kuchennym i jadalnią a przedsionkiem sprawia, że wejście do mieszkania jest wygodne, jasne i reprezentacyjne – łatwiej wnieść zakupy, wózek czy rower. Przedsionek z dwiema szafami mieści okrycia i obuwie, a brak wąskiego gardła oraz doświetlenie z części dziennej poprawiają cyrkulację powietrza i pierwsze wrażenie po przekroczeniu progu; wejścia: z klatki schodowej do przedsionka, z przedsionka do salonu.
Ten lokal będzie idealny dla pary lub singla, którzy cenią jasną strefę dzienną, dużą sypialnię z prywatnym wyjściem na balkon oraz ponadprzeciętnie wygodną łazienkę. Lokal szczególnie dobrze odpowiada osobom pracującym hybrydowo i lubiącym zapraszać gości – centralne wejście do łazienki i elastyczny salon sprzyjają spotkaniom bez rezygnacji z prywatności.