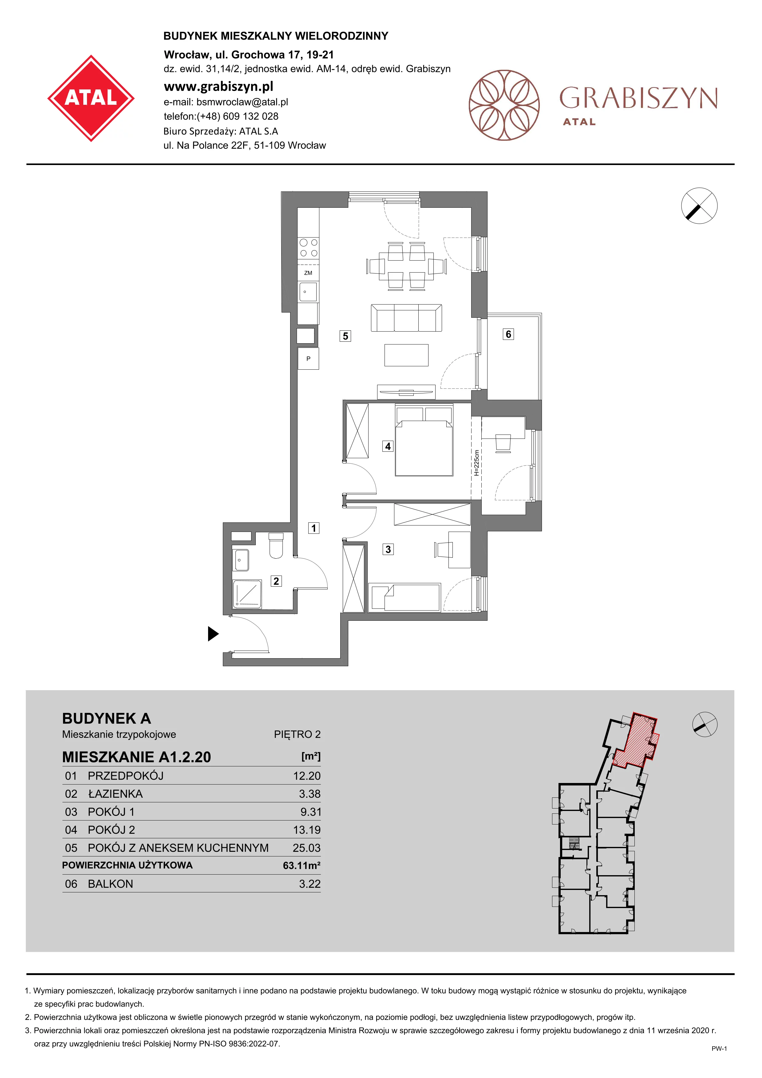
3-pokojowe nowe mieszkanie numer A1.2.20 — Wrocław, Gajowice, ul. Grochowa, II piętro, 63,11 m² — jasna strefa dzienna, balkon i szerokie przejście.
To trzypokojowe mieszkanie obejmuje: salon z aneksem kuchennym i jadalnią, sypialnię małżeńską, sypialnię dla dziecka, łazienkę, korytarz wejściowy oraz balkon.
Najważniejsze atuty układu mieszkania.
-
Salon z aneksem kuchennym i jadalnią łączy relaks, gotowanie i wspólne posiłki w jednym, dobrze doświetlonym miejscu (okna na półudniowy‑wschód i półudniowy‑zachód), co ułatwia codzienną organizację życia. Zamiast trzech osobnych pokoi, domownicy mają jedną dużą strefę z sofą trzyosobową, stolikiem kawowym, stołem na sześć krzeseł oraz pełnym AGD i długim blatem, sprzyjającą integracji, kontroli nad dziećmi i efektywnemu wykorzystaniu metrów.
-
Sypialnia małżeńska o dużej wielkości 13,19 m² daje komfort ustawienia łóżka 160 cm z wygodnymi dojściami, pojemnej szafy oraz toaletki lub biurka bez kompromisów. W takiej skali łatwiej wydzielić kącik do pracy czy pielęgnacji, zachowując swobodę ruchu, a popołudniowe światło z okien na półudniowy‑zachód tworzy sprzyjające warunki do wypoczynku i czytania.
-
Wyjście z salonu z aneksem kuchennym i jadalnią bezpośrednio na balkon 3,22 m² to szybki dostęp do świeżego powietrza, porannej kawy czy ziół w donicach, bez przecinania strefy nocnej. Jedno, wygodne wejście z części dziennej ułatwia wietrzenie po gotowaniu, doświetla jadalnię i poszerza jej funkcję o mini‑taras użytkowy w ciepłe dni.
-
Bliskie sąsiedztwo: sypialnia małżeńska tuż obok sypialni dla dziecka ułatwia nocną opiekę i skraca drogi porannej logistyki, co docenią rodzice małych dzieci. Takie usytuowanie ogranicza przemieszczanie się przez strefę dzienną, więc goście w salonie mają spokój, a rodzice szybciej reagują na potrzeby dziecka, zachowując jednocześnie dyskrecję dzięki osobnym wejściom z korytarza wejściowego.
-
Bliskie sąsiedztwo: sypialnia dla dziecka tuż obok sypialni małżeńskiej sprzyja poczuciu bezpieczeństwa i lepszej organizacji nauki czy zabawy przy otwartych drzwiach. Przy niewielkiej, ale funkcjonalnej skali 9,31 m² pokój mieści szafę, łóżko i biurko, a bliskość rodziców pozwala ograniczyć przenoszenie zabawek do salonu, co poprawia ład i komfort korzystania z reszty mieszkania.
-
Szerokie, otwarte przejście 1,25 m między salonem z aneksem a korytarzem wejściowym wzmacnia naturalny obieg światła i powietrza, a także ułatwia wnoszenie większych przedmiotów czy wózka. Wejście do mieszkania prowadzi wprost do korytarza wejściowego (z praktyczną szafą), skąd niezależnie wchodzimy do wszystkich pomieszczeń, w tym do łazienki po lewej ręce — goście trafiają więc szybko do części dziennej, bez naruszania prywatności sypialni.
To mieszkanie będzie idealne dla pary z dzieckiem lub planujących powiększenie rodziny, ceniących jasną strefę dzienną oraz bliskość pokoi nocnych. Spodoba się też osobom pracującym hybrydowo, które potrzebują dużej sypialni z miejscem do pracy i wygodnego wejścia z korytarza.