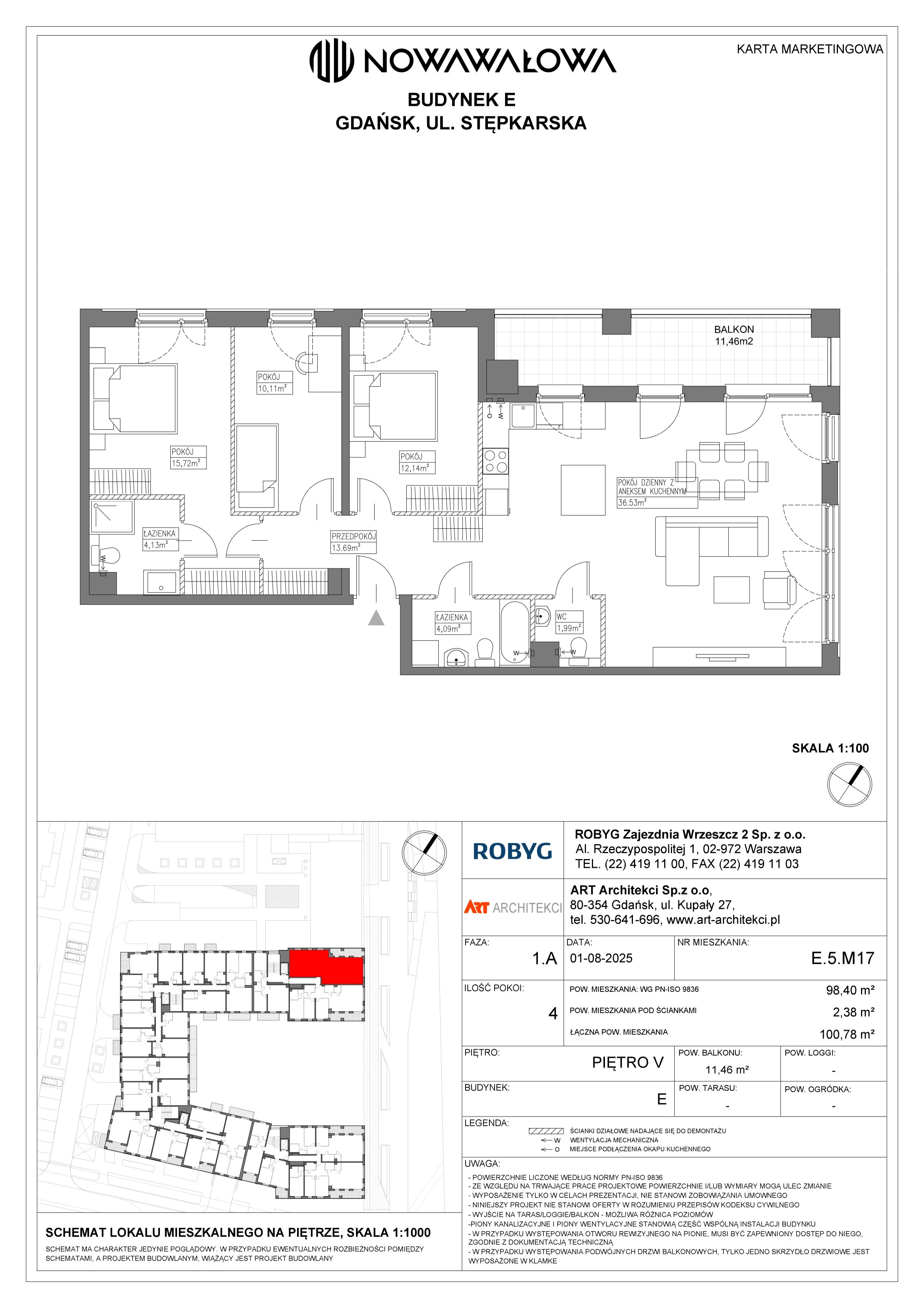
4‑pokojowe nowe mieszkanie numer E.5M17 – Gdańsk, Śródmieście, ul. Stępkarska / Wiosna Ludów, 5. piętro, 98,40 m² – ogromny salon, otwarta strefa 50,22 m², 2 łazienki, duży balkon.
To czteropokojowe mieszkanie obejmuje: salon z aneksem kuchennym i jadalnią, sypialnię małżeńską z prywatną łazienką, sypialnię dwuosobową, sypialnię dla dziecka, drugą łazienkę, WC, korytarz wejściowy oraz balkon.
Najważniejsze atuty układu i metrażu.
-
Strefa prywatna 19,85 m² dla rodziców. Na zespół składają się sypialnia małżeńska łącząca duże łóżko z dwiema szafkami i dwie szafy oraz bezpośrednio dostępna prywatna łazienka. Taki układ daje ciszę, wygodę porannych i wieczornych rytuałów bez zajmowania wspólnej łazienki, a wejście prosto z sypialni ogranicza nocne wędrówki. Północno‑zachodnia ekspozycja sprzyja odpoczynkowi, a bliskość sypialni dla dziecka ułatwia szybkie reagowanie, nie zakłócając życia w części dziennej.
-
Zintegrowana strefa dzienna 50,22 m² z efektem większego wnętrza. Salon z aneksem kuchennym i jadalnią oraz korytarz wejściowy tworzą jedną, wspólną przestrzeń, którą dodatkowo wzmacnia bardzo szerokie, otwarte przejście 3,99 m między tymi pomieszczeniami. Dzięki temu łatwiej ustawić duży stół, wyspę i kanapę, swobodnie przyjmować gości oraz doświetlić całość światłem z północnego wschodu i północnego zachodu. Wejście do mieszkania w korytarz wejściowy, z łazienką tuż obok, zapewnia komfort po powrocie do domu i od razu otwiera atrakcyjną perspektywę na część dzienną.
-
Wielofunkcyjny, bardzo duży salon 36,53 m². Salon z aneksem kuchennym i jadalnią mieści wygodną sofę narożną ze stolikiem i fotelem, kompletną zabudowę kuchenną z płytą czteropalnikową, zmywarką i lodówką, praktyczny blat oraz wyspę, a także stół dla sześciu osób. Zgrupowanie wypoczynku, gotowania i jedzenia w jednym wnętrzu ułatwia codzienne życie, poprawia kontakt domowników i zapewnia więcej elastyczności niż trzy osobne pokoje. Podwójna ekspozycja NE/NW daje długie godziny dziennego światła i skuteczne wietrzenie.
-
Dwie łazienki i osobne WC – komfort na co dzień i dla gości. Prywatna łazienka przy głównej sypialni obsługuje rodziców, a druga łazienka z wanną i pralką wygodnie służy dzieciom i codziennym czynnościom. Dodatkowe WC przy salonie z aneksem ogranicza kolejki w newralgicznych porach, pozwala gościom skorzystać bez wchodzenia w strefę nocną oraz odciąża obie łazienki. Bliskie sąsiedztwo wspólnej łazienki z WC porządkuje poranny ruch i usprawnia korzystanie przez kilka osób jednocześnie.
-
Duża sypialnia dwuosobowa 12,14 m² z elastycznym zastosowaniem. Wariant z łóżkiem 160 cm i dwiema szafkami daje wygodę dla pary, ale metraż i układ obok salonu i sypialni dla dziecka umożliwiają inne funkcje: cichy gabinet z biurkiem i rozkładaną sofą, pokój gościnny lub pracownię. Lokalizacja przy części dziennej ułatwia pracę w ciągu dnia, a popołudniowe światło z północnego zachodu sprzyja relaksowi po pracy.
-
Funkcjonalna sypialnia dla dziecka 10,11 m². Pokój pomieści łóżko i biurko, a ustawność pozwala wprowadzić zabudowę, kącik nauki albo zestaw dla malucha. Umieszczenie pomiędzy sypialnią małżeńską a sypialnią dwuosobową ułatwia opiekę i szybki kontakt z rodzicami lub opiekunami, a jednocześnie oddala dziecięce aktywności od wejścia i części gościnnej. Ekspozycja na północny zachód zapewnia przyjemne, nieprzegrzewające się popołudniowe światło.
-
Duży balkon 11,46 m² z wygodnym wyjściem z salonu z aneksem. Jedno, szerokie wejście z części dziennej pozwala płynnie urządzić letnią jadalnię, kącik kawowy czy mini ogród bez zakłócania funkcji sypialni. Rozmiar balkonu sprzyja ustawieniu stołu i kilku roślin, a piętro piąte daje przyjemniejszy widok oraz lepsze przewietrzanie w upalne dni. To znakomite przedłużenie strefy dziennej w cieplejszych miesiącach.
-
Przemyślana bliskość pokojów nocnych zwiększająca wygodę rodziny. Sąsiedztwo sypialni małżeńskiej tuż obok sypialni dla dziecka skraca dystans w nocy i uspokaja rodziców, natomiast położenie sypialni dwuosobowej obok pokoju dziecka ułatwia rotacyjny nadzór lub opiekę dziadków. Taki układ porządkuje rytm dnia, ogranicza ruch przy salonie i poprawia komfort pozostałych domowników oraz gości.
To mieszkanie jest idealne dla rodziny, która szuka komfortu na co dzień, miejsca do wspólnego życia i strefy prywatnej dla rodziców. Sprawdzi się także u pary pracującej z domu, oczekującej dużej części dziennej, dodatkowego pokoju pod gabinet oraz wygodnego zaplecza sanitarnego.