-
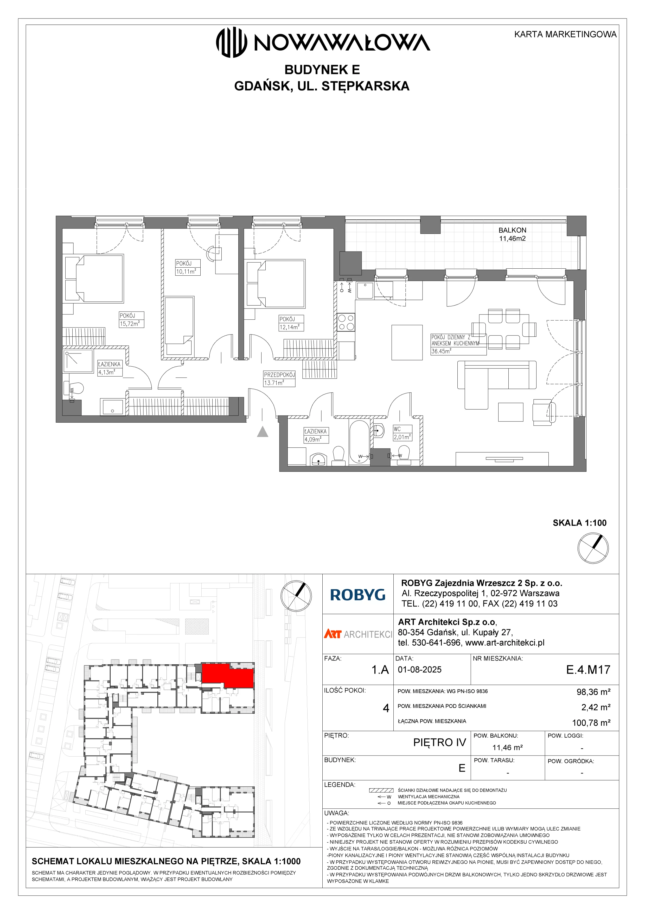
Wyodrębniona strefa prywatna 19,85 m². Tworzą ją sypialnia małżeńska z bezpośrednim wejściem do prywatnej łazienki, co daje ciszę, intymność i wygodę porannych oraz wieczornych rytuałów. Wejścia: do sypialni małżeńskiej z korytarza wejściowego, z sypialni małżeńskiej do prywatnej łazienki, a z prywatnej łazienki wyłącznie do tej sypialni. Dzięki temu pozostali domownicy i goście korzystają ze wspólnych sanitariatów bez ingerowania w część nocną.
-
Zintegrowana wspólna przestrzeń 50,16 m²: salon z aneksem kuchennym i jadalnią + korytarz wejściowy. Skalowanie tych dwóch pomieszczeń jednym otwarciem (aż 3,99 m) daje odczucie większego wnętrza, lepsze przenikanie światła i swobodę aranżacji różnych stref dziennych. Wejście do mieszkania prowadzi prosto do korytarza wejściowego (obok znajduje się łazienka), co ułatwia szybkie ogarnięcie codziennych czynności po powrocie do domu, bez rozpraszania aktywności w salonie.
-
Dwie łazienki i dodatkowe WC – sprawna organizacja dnia. Ogólna łazienka z wanną i pralką służy rodzinie, prywatna łazienka z prysznicem obsługuje sypialnię małżeńską, a oddzielne WC tuż przy salonie jest idealne dla gości. Taki rozdział eliminuje kolejki, chroni prywatność domowników w strefie nocnej i utrzymuje wygodę podczas spotkań towarzyskich w części dziennej.
-
Wielofunkcyjny, naprawdę duży salon z aneksem kuchennym i jadalnią 36,45 m². Jedna, wygodnie zaaranżowana przestrzeń łączy relaks (sofa narożna czteroosobowa, stolik kawowy, fotel), gotowanie (płyta czteropalnikowa, lodówka, zmywarka, zlew w blacie, długi blat oraz wyspa) i posiłki przy stole dla sześciu osób. Okna na północny‑wschód i północny‑zachód dają równomierne, nieprzegrzewające światło oraz komfortową atmosferę przez cały dzień.
-
Wyjście z salonu z aneksem kuchennym i jadalnią na duży balkon 11,46 m². Jedyny dostęp z części dziennej sprawia, że taras staje się naturalnym przedłużeniem strefy wypoczynku i jadalni, idealnym na poranną kawę, posiłki na świeżym powietrzu oraz rośliny. Taki układ poprawia przewietrzanie aneksu i pozwala łatwo organizować spotkania w większym gronie latem.
-
Elastyczna w wykorzystaniu sypialnia dwuosobowa 12,14 m² obok salonu i sypialni dla dziecka. Jej wielkość wygodnie mieści łóżko 160×200 z szafkami oraz pojemną szafę, okna na północny‑zachód zapewniają kojące światło popołudniowe. Alternatywnie sprawdzi się jako gabinet do pracy, pokój gościnny, pracownia lub pokój dla seniora, blisko części dziennej i tuż obok pokoju dziecka.
-
Praktyczna sypialnia dla dziecka 10,11 m² w sąsiedztwie sypialni małżeńskiej i sypialni dwuosobowej. Pokój mieści łóżko jednoosobowe i pełnowymiarowe biurko, a północno‑zachodnie okna sprzyjają nauce bez ostrych refleksów. Bliskość do pokoju rodziców zwiększa poczucie bezpieczeństwa, a sąsiedztwo drugiej sypialni pomaga w tworzeniu strefy dziecięcej lub nauki tuż przy opiekunach.
-
Ogromna sypialnia małżeńska 15,72 m² z miejscem na łóżko 160×200, dwie szafki nocne i dwie duże szafy. Okna na północny‑zachód dają łagodne światło do wieczornego wypoczynku, a bezpośrednie drzwi do prywatnej łazienki podnoszą komfort nocą i o świcie. Bliskość sypialni dla dziecka pozwala reagować w sekundę, bez chodzenia przez całą część dzienną.
-
Szerokie, 3,99‑metrowe otwarcie między salonem z aneksem kuchennym i jadalnią a korytarzem wejściowym. Tak duża „rama” wizualna daje szerokie przejścia dla domowników i gości, lepszą cyrkulację powietrza i światła oraz swobodę ustawiania mebli. Dzięki temu łatwo wydzielisz np. kącik do pracy przy wyspie czy powiększysz strefę jadalnianą na czas świątecznych spotkań.
-
Bardzo duży korytarz wejściowy 13,71 m² jako funkcjonalny węzeł komunikacyjny. To tutaj jest wejście do mieszkania; z tego miejsca wchodzisz do: salonu z aneksem kuchennym i jadalnią, sypialni małżeńskiej, sypialni dwuosobowej, sypialni dla dziecka, łazienki i WC. Dwie szafy w zabudowie pomagają utrzymać ład przy drzwiach, a sąsiedztwo łazienki ułatwia szybkie umycie rąk czy przebranie dzieci tuż po powrocie.
To mieszkanie jest idealne dla rodziny, która ceni wygodę codziennego życia, spójną strefę dzienną i komfort prywatnej części nocnej z dodatkowymi sanitariatami. Sprawdzi się także u osób pracujących z domu i lubiących przyjmować gości, dzięki elastycznej sypialni dodatkowej, dużemu salonowi i obszernemu balkonowi.