-
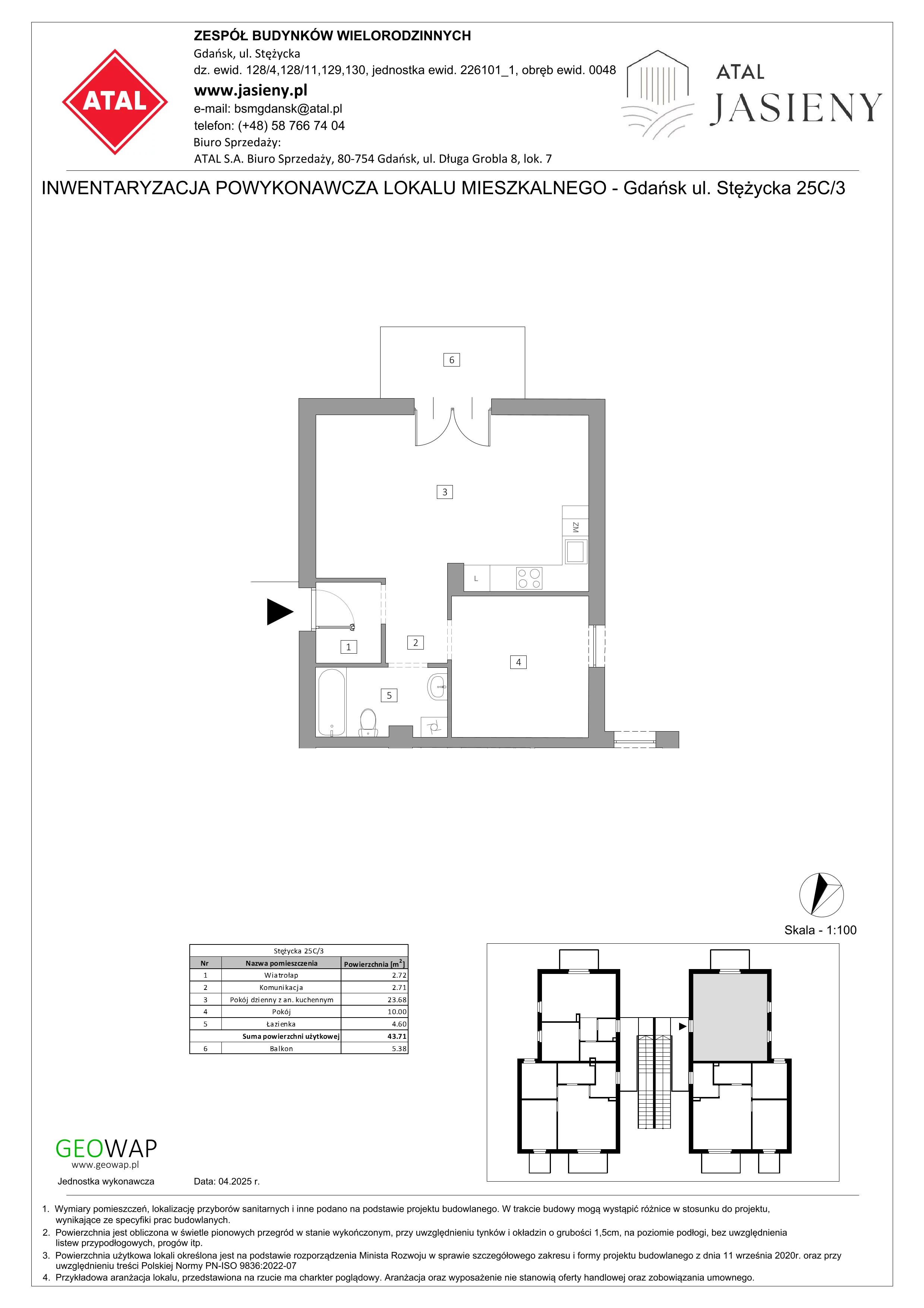
Zintegrowana, wspólna strefa dzienna 26,33 m². Tworzą ją: salon z aneksem kuchennym i jadalnią oraz korytarz wewnętrzny, których funkcje scalają się w jedno, większe wnętrze. Taki układ daje silniejsze wrażenie oddechu i swobody niż przy rozdzieleniu tych stref ścianą, ułatwia elastyczne ustawienie mebli, tworzenie wielkoformatowej biblioteki lub miejsca do pracy oraz poprawia doświetlenie dzięki dwuorientacji salonu.
-
Salon z aneksem kuchennym i jadalnią łączy relaks, gotowanie i jedzenie w jednym miejscu, co w mieszkaniu dwupokojowym zwiększa wygodę codziennego życia. Bliskość blatu roboczego, stołu i kanap skraca dystanse, ułatwia kontakt domowników i gości oraz serwowanie potraw. Sprzęty – płyta czteropalnikowa, lodówka, zmywarka, zlew w blacie i długi blat roboczy – tworzą ergonomiczną strefę pracy, a stół o większym formacie pozwala wygodnie podejmować rodzinę.
-
Korytarz wewnętrzny o wielkości 2,62 m² porządkuje komunikację: wchodzimy do niego bezpośrednio z przedsionka, a z niego są wejścia do wszystkich pomieszczeń: salonu z aneksem kuchennym i jadalnią, sypialni małżeńskiej i łazienki. Dzięki temu strefa wejściowa jest uporządkowana, ruch domowników nie przecina części dziennej, a sypialnia zyskuje dyskretne oddzielenie od dziennego zgiełku i lepszy komfort akustyczny.
-
Duża, jak na ten metraż, wielkość salonu z aneksem kuchennym i jadalnią (23,71 m²) to realne korzyści aranżacyjne: mieści pełny zestaw wypoczynkowy ze stolikiem kawowym, sofą dwuosobową i jednoosobową oraz pokaźny stół z sześcioma krzesłami, pozostawiając wygodne przejścia. Dwuorientacja okien na południowo‑wschód i południowo‑zachód zapewnia długie godziny światła dziennego i przyjemny klimat wnętrza.
-
Wyjście z salonu z aneksem kuchennym i jadalnią na balkon 5,15 m² poszerza strefę dzienną o plenerową część relaksu i posiłków. Jedno, bezpośrednie wejście z części dziennej to wygoda użytkowania: łatwiej wietrzyć kuchnię, wynieść śniadanie na świeże powietrze, ustawić zioła i rośliny, a także zyskać dodatkowe miejsce na chwilę odpoczynku po pracy.
-
Sypialnia małżeńska 9,92 m² dzięki ustawieniu łóżka 200×160 cm z dwiema szafkami nocnymi i szafą 182×50 cm daje pełen komfort parze, a okno na południowy‑zachód sprzyja wieczornemu wyciszeniu. Sąsiedztwo z salonem z aneksem kuchennym i jadalnią ułatwia codzienne funkcjonowanie, a bliskość łazienki skraca poranne i nocne przejścia, pozostawiając część dzienną niezakłóconą.
-
Bliskie sąsiedztwo łazienki 4,65 m² tuż obok sypialni małżeńskiej podnosi komfort prywatności i rytmu dnia: szybki dostęp w nocy i rano, bez konieczności przemarszu przez strefę dzienną. Jednocześnie wygodny układ wanny 155×70 cm, toalety stojącej, pralki 45×60 cm i umywalki 45×60 cm sprawia, że domownicy i goście korzystają z niej sprawnie, nie blokując aktywności w salonie.
-
Szerokie, otwarte przejście 1,39 m między salonem z aneksem kuchennym i jadalnią a korytarzem wewnętrznym usprawnia komunikację, daje lepsze przenikanie światła i pozwala na swobodne przenoszenie większych elementów wyposażenia. Tak szeroki portal działa jak rama widokowa, optycznie powiększa strefę dzienną i umożliwia wygodne zastosowanie mobilnych rozwiązań, np. lekkich regałów czy konsoli, bez wrażenia tłoku.
-
Wejście do mieszkania przez przedsionek 2,65 m² z szafą 104×60 cm i sąsiedztwem korytarza wewnętrznego tworzy czytelną sekwencję: najpierw strefa wejścia, potem dystrybucja do wszystkich pomieszczeń. To pomaga utrzymać ład przy drzwiach, ogranicza wychładzanie części dziennej podczas otwierania drzwi, a domownicy i goście nie wchodzą od razu w strefę wypoczynku.