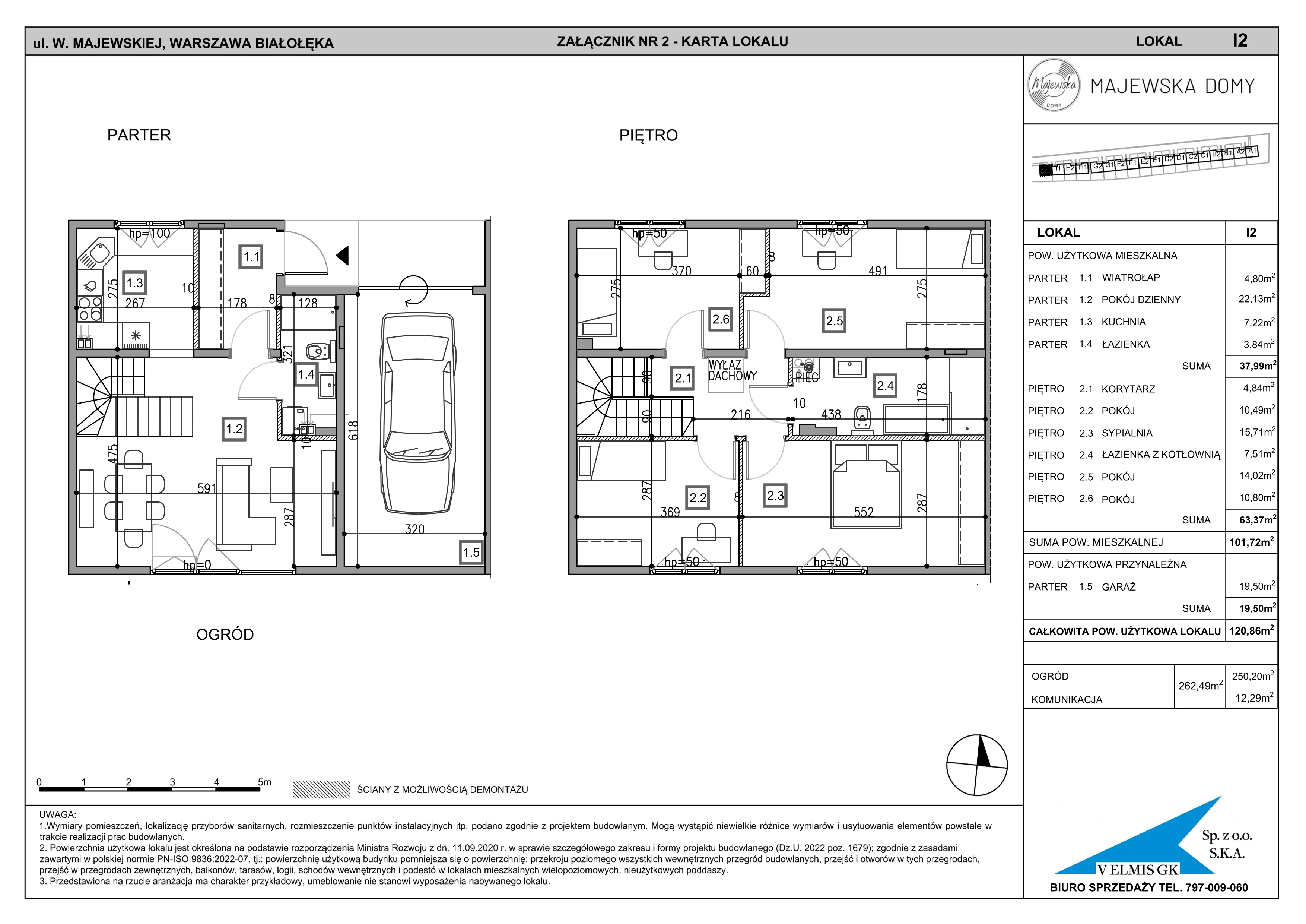
Nowy dom, 120,86 m², oferta nr I2NOWOŚĆ
Inwestycja Majewska Domy
1 430 001,02 zł
Rata 7 291 zł/mies. - sprawdź >
Warszawa, Białołęka, Brzeziny, ul. Włady Majewskiej




Mapa
Liczba pokoi:
5 pokoi
Powierzchnia:
120,86 m²
Garaż:
garaż w budynku, parking naziemny
Powierzchnie zewnętrzne:
ogródek (250,20 m²)
Termin oddania:
IV kwartał 2026