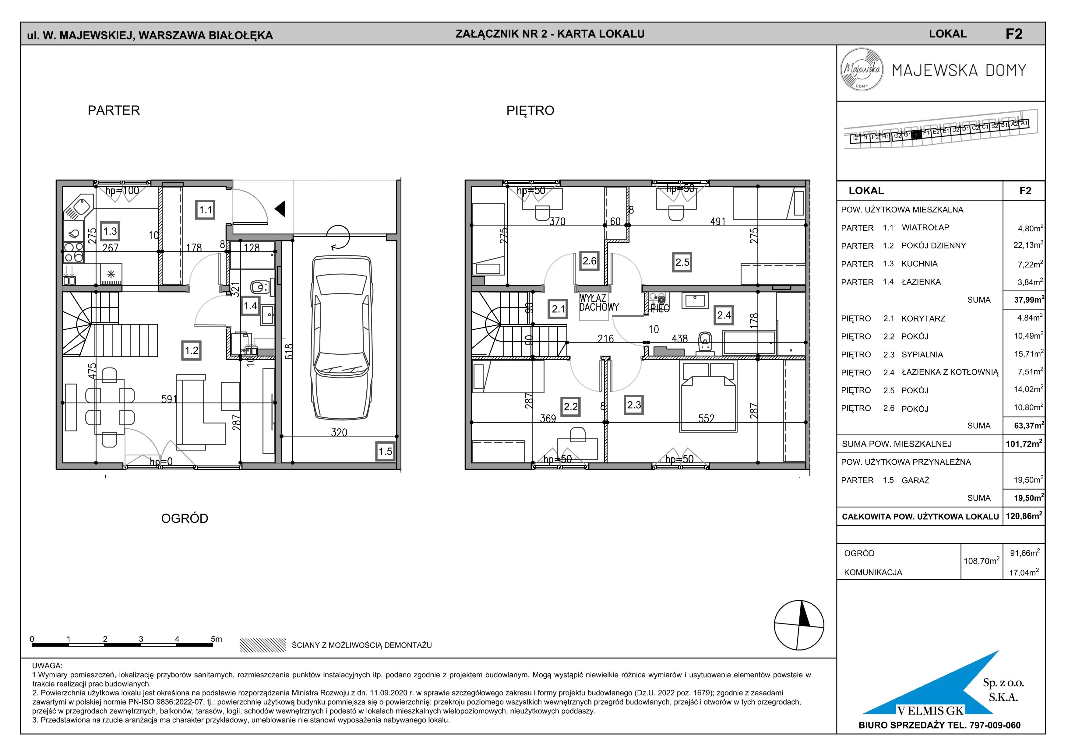
5-pokojowy nowy dom numer F2, Warszawa, Białołęka, ul. Włady Majewskiej – 121,10 m², piętro 0 i 1, prywatne piętro oraz ogródek 91,66 m², garaż.
On obejmuje: wiatrołap, salon z jadalnią, kuchnię, łazienkę, garaż jednostanowiskowy, ogródek, sypialnię małżeńską, trzy pokoje: sypialnię dla dziecka (14,02 m²), sypialnię dla dziecka (10,80 m²), sypialnię dla dziecka (10,49 m²), łazienkę oraz wewnętrzny korytarz prywatny.
strefa dzienna.
-
salon z jadalnią ma mimo kompaktowego metrażu wygodnie zebrane dwie funkcje: wypoczynek na czteroosobowej sofie narożnej ze stolikiem kawowym oraz wspólne posiłki przy stole dla sześciu osób. Dzięki temu domownicy są blisko siebie, a układ nie traci dodatkowego pokoju na osobną jadalnię.
-
kuchnia jest osobnym pomieszczeniem, więc gotowanie nie dominuje w części wypoczynkowej: łatwiej utrzymać porządek i ciszę w salonie z jadalnią, a jednocześnie w kuchni mieści się pełny zestaw sprzętów (płyta czteropalnikowa, lodówka, zmywarka, zlew z ociekaczem) i długi blat roboczy. Otwarte przejście o szerokości 1,00 m oraz bezpośrednie wejście z salonu z jadalnią przyspiesza podawanie posiłków i krąg komunikacji podczas spotkań.
- Bezpośrednie wejście do łazienki z salonu z jadalnią poprawia wygodę na co dzień i w czasie wizyt gości, bo nie trzeba prowadzić nikogo przez część sypialnianą. W środku mieści się kabina prysznicowa z odpływem liniowym, pralka, toaleta wisząca i umywalka, więc parter obsługuje codzienne potrzeby bez kolejki do łazienki na górze.
- Wyjście z salonu z jadalnią do ogródka daje naturalne przedłużenie odpoczynku i jadalni na świeże powietrze: łatwo zorganizować posiłek na zewnątrz, zabawę dzieci lub spokojną kawę w słońcu. To także wygoda przy codziennym rytmie domu, bo ogródek jest „pod ręką” dokładnie tam, gdzie toczy się życie rodzinne.
- Start w wiatrołapie porządkuje wejście do domu: duża szafa przyjmuje okrycia i obuwie, a dopiero potem przechodzi się do salonu z jadalnią, dzięki czemu część dzienna dłużej wygląda schludnie. Dodatkowo bliskość garażu jednostanowiskowego ułatwia codzienne wnoszenie zakupów i wyjścia w deszczu bez biegania wokół budynku.
strefa prywatna.
6) Prywatne piętro o łącznej powierzchni 63,37 m² tworzą: sypialnia małżeńska, sypialnia dla dziecka (14,02 m²), sypialnia dla dziecka (10,80 m²), sypialnia dla dziecka (10,49 m²), łazienka (7,51 m²) oraz wewnętrzny korytarz prywatny. Taki układ oddziela nocny odpoczynek i naukę od gwaru parteru, daje ciszę do snu, a wejścia do wszystkich tych pomieszczeń z jednego korytarza porządkują domowy rytm rano i wieczorem.
7) Trzy pokoje dziecięce to duża elastyczność: jeden może być typową sypialnią, drugi pokojem do nauki z biurkiem, a trzeci – w zależności od wieku domowników – pokojem gościnnym, gabinetem do pracy lub pokojem hobby. Sąsiedztwo sypialni dla dziecka (14,02 m²) i sypialni dla dziecka (10,80 m²) sprzyja rodzeństwu (wspólna zabawa, łatwiejsza opieka), a jednocześnie każda z nich ma miejsce na łóżko, szafę i biurko.
8) sypialnia małżeńska o dużym metrażu mieści wygodne łóżko dwuosobowe i obszerną szafę, więc łatwiej utrzymać ład bez upychania mebli w innych pokojach. Jej sąsiedztwo z sypialnią dla dziecka (10,49 m²) jest korzystne dla rodzin z młodszym dzieckiem: nocna opieka jest szybka, a reszta domu nie musi być wybudzana przemieszczaniem się po schodach.
9) Dwie łazienki poprawiają komfort całej rodziny: na parterze szybki prysznic i pralka odciążają poranne przygotowania, a na piętrze duża łazienka obsługuje część sypialnianą bez schodzenia na dół. Bliskie sąsiedztwo piętrowej łazienki z sypialnią małżeńską i dużą sypialnią dla dziecka (14,02 m²) oznacza krótką drogę po kąpieli, mniej hałasu w strefie dziennej i większą swobodę, gdy ktoś śpi.
10) Ogromna łazienka na piętrze pozwala realnie korzystać zarówno z wanny, jak i dużej kabiny prysznicowej z odpływem liniowym, bez rezygnacji z wygodnej toalety wiszącej i umywalki. Taki metraż ułatwia domownikom wybór „szybko” lub „relaks”, a w praktyce zmniejsza liczbę konfliktów o łazienkę w godzinach szczytu.
Ten dom będzie idealny dla rodziny 2+2 lub 2+3, która chce mieć wyraźnie oddzieloną część dzienną od sypialnianej oraz własny ogródek przy salonie. Sprawdzi się też dla osób pracujących z domu, bo jeden z pokoi dziecięcych można łatwo zamienić w gabinet, nie zabierając głównej sypialni ani części wspólnej.