-
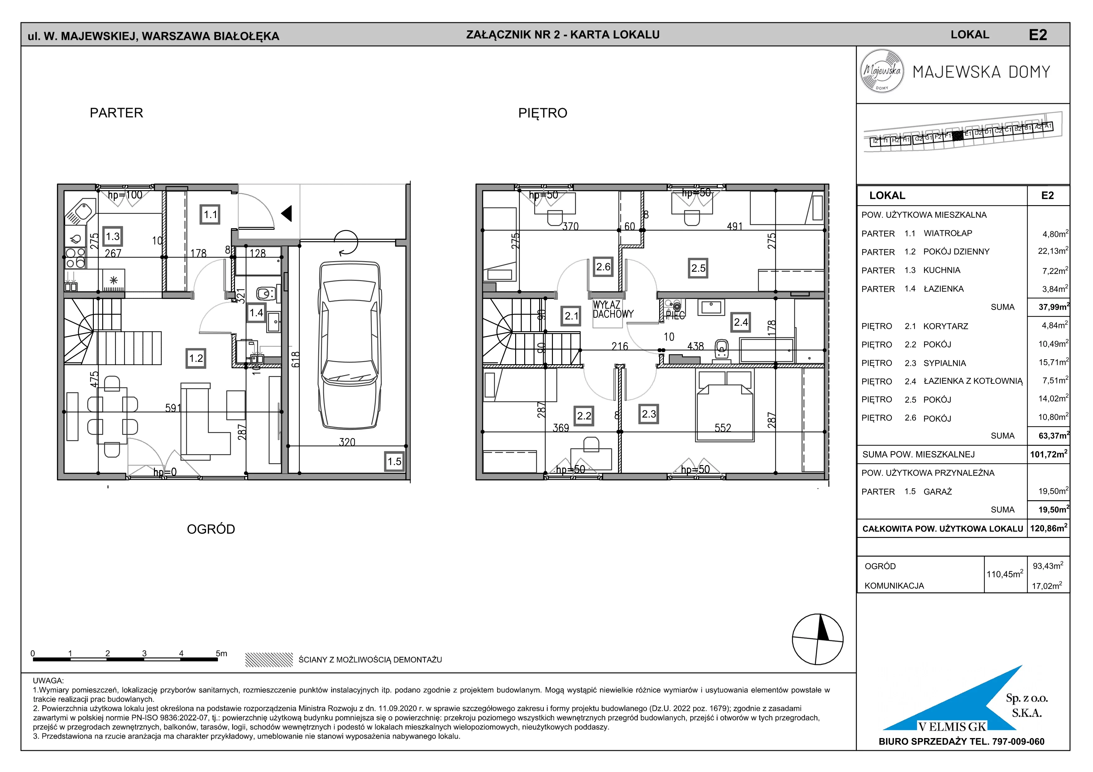
Prywatne piętro (63,37 m²) tworzą: sypialnia małżeńska, sypialnia dla dziecka 14,02 m², sypialnia dla dziecka 10,80 m², sypialnia dla dziecka 10,49 m², łazienka 7,51 m² oraz wewnętrzny korytarz prywatny z wejściami do wszystkich tych pomieszczeń. To rozdziela życie dzienne od nocnego, ułatwia ciszę podczas snu dzieci i daje domownikom poczucie intymności, gdy na dole toczy się codzienna aktywność.
-
Trzy sypialnie dla dzieci dają elastyczność na lata: każdy może mieć swój pokój do nauki z biurkiem, łóżkiem i szafą, bez kompromisów funkcjonalnych. Alternatywnie jedna z nich może stać się gabinetem do pracy zdalnej lub pokojem hobby, a dzięki temu, że jest jeszcze salon z jadalnią, dom nadal zachowuje wygodną strefę wspólną.
-
Dwie łazienki poprawiają rytm dnia: na parterze łazienka dostępna bezpośrednio z salonu z jadalnią jest wygodna dla gości i na szybkie potrzeby w ciągu dnia. Na piętrze duża łazienka 7,51 m² przejmuje poranne i wieczorne użytkowanie domowników, ograniczając kolejki i napięcia w godzinach szczytu.
-
Salon z jadalnią łączy wypoczynek i wspólne posiłki w jednym miejscu, mimo niewielkiego metrażu: narożna sofa czteroosobowa ze stolikiem kawowym tworzy czytelną część relaksu, a stół dla sześciu osób buduje centrum spotkań. Takie rozwiązanie jest korzystniejsze niż dwa osobne pomieszczenia, bo sprzyja byciu razem i ułatwia organizację rodzinnych aktywności bez „martwych” przejść.
-
Osobna kuchnia porządkuje codzienność, bo gotowanie nie dominuje wizualnie nad częścią wypoczynkową, a zapachy i hałas sprzętów łatwiej ograniczyć. Jednocześnie wyposażenie w ciąg z blatem o długości ok. 270 cm oraz pełny zestaw urządzeń (płyta czteropalnikowa, lodówka, zmywarka, zlew z ociekaczem) daje wygodne warunki do przygotowywania posiłków nawet dla większej rodziny.
-
Wygodna komunikacja na parterze: do kuchni i do parterowej łazienki wchodzi się bezpośrednio z salonu z jadalnią, co skraca drogę z posiłkami, sprzątaniem i w codziennych sytuacjach. Dodatkowo otwarte przejście o szerokości 1,00 m między salonem z jadalnią a kuchnią ułatwia podawanie dań na stół i sprawia, że obie strefy działają sprawnie podczas gotowania oraz przyjmowania gości.
-
Wyjście z salonu z jadalnią do ogródka (93,43 m²) wzmacnia funkcję dzienną domu: latem stół może „przenieść się” na zewnątrz, a dzieci zyskują miejsce do zabawy pod kontrolą domowników przebywających w salonie. To także szybka droga na poranną kawę na świeżym powietrzu i naturalne powiększenie strefy wypoczynku w cieplejszych miesiącach.
-
Duże sypialnie podnoszą komfort na piętrze: sypialnia małżeńska 15,71 m² mieści łóżko dwuosobowe i długą szafę, więc łatwiej utrzymać ład i wygodnie korzystać z wnętrza na co dzień. Sypialnia dla dziecka 14,02 m² pozwala swobodnie ustawić łóżko, biurko i szafę, a metraż sprzyja także dodaniu regału, kącika do ćwiczeń lub miejsca do zabawy bez „ścisku” wokół mebli.
-
Sąsiedztwa na piętrze poprawiają wygodę: duża łazienka 7,51 m² jest tuż obok sypialni małżeńskiej i dużej sypialni dla dziecka 14,02 m², co skraca drogę rano i wieczorem, podnosząc komfort całej rodziny. Dodatkowo sąsiadujące ze sobą sypialnie dla dziecka 14,02 m² i 10,80 m² ułatwiają opiekę nad rodzeństwem oraz szybkie reagowanie w nocy, bez konieczności schodzenia na dół.
-
Wejście do domu przez wiatrołap obok salonu z jadalnią porządkuje strefę wejściową: zaplanowana duża szafa pozwala wygodnie odłożyć odzież i obuwie zaraz po wejściu, zanim domownicy przejdą dalej. To zwiększa wygodę codziennych powrotów i ogranicza wnoszenie nieporządku do części dziennej, zwłaszcza gdy dom jest intensywnie użytkowany przez rodzinę.