
00% PROWIZJI!! Inwestycja od dewelopera, bez PCC 2%. Posiadamy również inne mieszkania w tej inwestycji Zapraszamy Państwa do zapoznania się z naszą ofertą Mieszkanie GOTOWE owacyjne osiedle usytuowane na pograniczu dzielnic Białołęka i Targówek, które oferuje swoim mieszkańcom wiele udogodnień w za...
więcej »OneHouse Nieruchomości Agnieszka Prasek
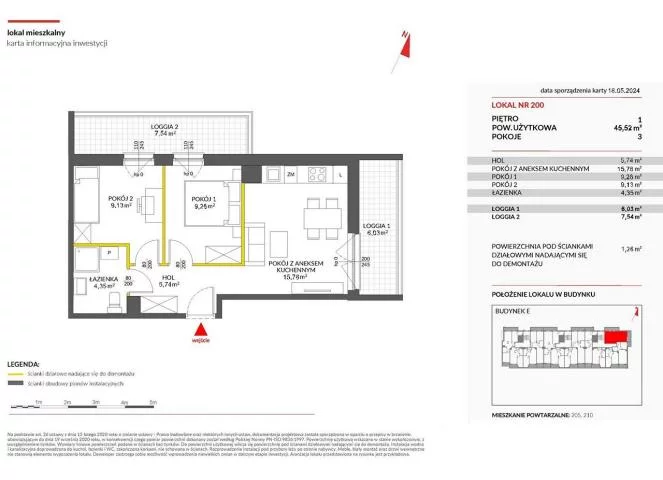
730 000 zł
Warszawa, Białołęka, Marywilska
3 pok.
55,00 m²






























