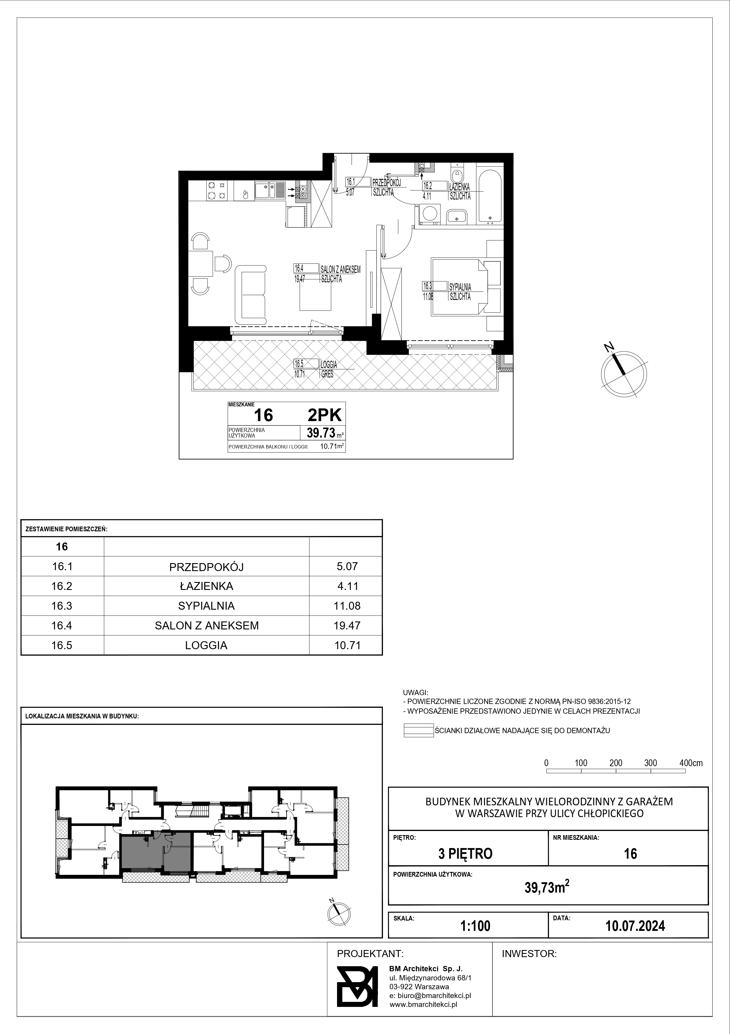
Nowe mieszkanie, 39,73 m², 2 pokoje, 3 piętro, oferta nr 16NOWOŚĆ
Zapytaj o ofertę
658 524,75 zł
16 575,00 zł/m²
okazyjna cena
Rata 3 357 zł/mies. - sprawdź >
Monitoring cen
Inwestycja Stacja Olszynka
Warszawa, Praga Południe, Gocławek, ul. Załęże 14




Mapa
Liczba pokoi:
2 pokoje
Powierzchnia:
39,73 m²
Piętro:
3 piętro
Liczba poziomów:
1
Wys. mieszkania:
2,60 m
Garaż:
parking podziemny
Powierzchnie zewnętrzne:
loggia (10,71 m²)
Termin oddania:
IV kwartał 2026