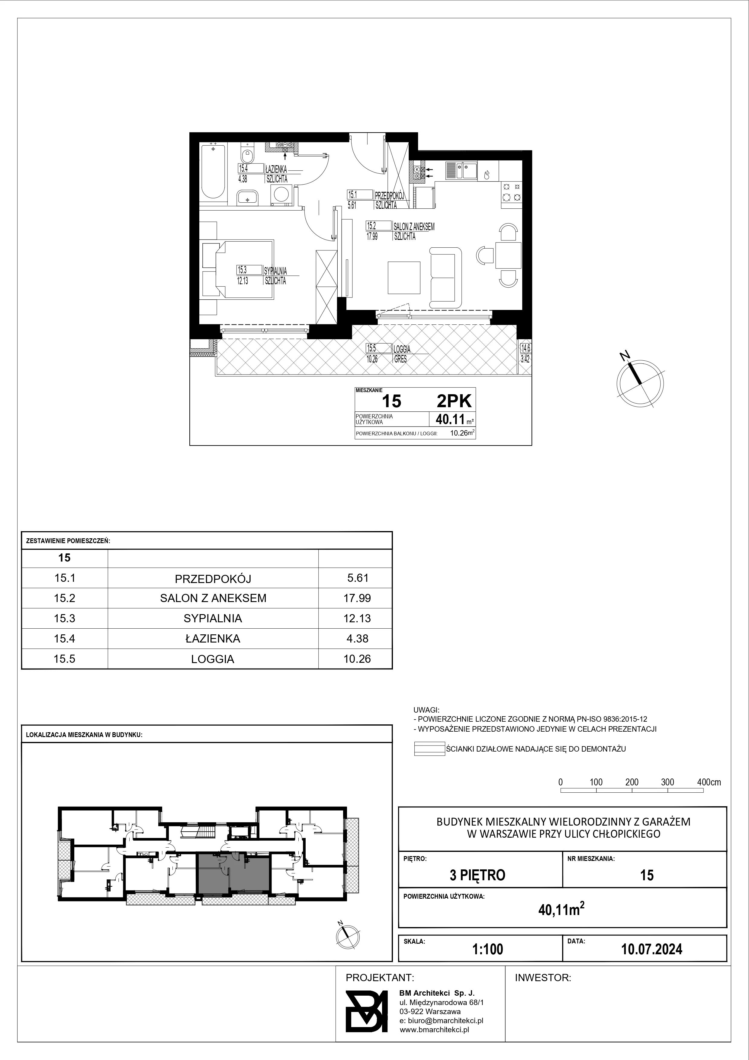
2-pokojowe mieszkanie numer 15, nowy — Warszawa, Praga Południe, ul. Załęże 14, 3. piętro, 40,11 m² — duża loggia 10,26 m², południowo‑zachodnie światło, wygodny układ.
To dwupokojowe mieszkanie obejmuje: salon z aneksem kuchennym i jadalnią, sypialnię małżeńską, łazienkę, korytarz wejściowy oraz loggię.
Najważniejsze zalety układu.
-
Zintegrowane w jednym wnętrzu funkcje salonu z aneksem kuchennym i jadalnią (17,99 m²) dają oszczędność metrów i ścian, lepszy kontakt domowników oraz naturalny przepływ światła z południowo‑zachodnich okien. Wygodnie mieści się dwuosobowa sofa, stolik kawowy 60×60, stolik śniadaniowy 85×90 i pełny zestaw AGD: płyta 60 cm, lodówka 60 cm, zmywarka 60 cm, zlew 45 cm oraz blat 185 cm.
-
Sypialnia małżeńska o wygodnej wielkości 12,13 m² bez trudu mieści łóżko 160×200 z dwiema szafkami nocnymi oraz pojemną szafę 206×60, pozostawiając swobodę codziennego użytkowania i miejsce na dodatkowy akcent, np. toaletkę lub biurko. Południowo‑zachodnie doświetlenie sprzyja przytulnemu klimatowi, a sąsiedztwo strefy dziennej i łazienki zwiększa wygodę.
-
Wyjście z salonu z aneksem kuchennym i jadalnią na loggię 10,26 m² realnie powiększa strefę dzienną w cieplejszych miesiącach, tworząc letnią jadalnię lub kącik kawowy. Drzwi na zewnątrz usprawniają wietrzenie kuchni, wprowadzają więcej światła i pozwalają przenieść spotkania towarzyskie na świeże powietrze bez rezygnacji z wygodnego zaplecza kuchennego tuż obok.
-
Oddzielne wyjście z sypialni małżeńskiej na tę samą loggię zapewnia prywatny dostęp do miejsca relaksu o poranku i wieczorem, bez przechodzenia przez część dzienną. To komfort przy nocnym wietrzeniu i szybkim suszeniu tkanin, a także dyskrecja w dniach pracy zdalnej lub odpoczynku, gdy w salonie toczy się życie rodzinne albo gościnne.
-
Bliskie sąsiedztwo łazienki (4,38 m²) tuż obok sypialni małżeńskiej podnosi codzienny komfort – nocne korzystanie nie wymaga długiego przechodzenia przez mieszkanie. Wygodne wymiary pozwalają na wannę 174×80, umywalkę 45×60, toaletę oraz pralkę 60×60. Jednocześnie wejście z korytarza wejściowego sprawia, że goście mają łatwy dostęp, nie zakłócając strefy prywatnej.
-
Szerokie, otwarte przejście 1,27 m między salonem z aneksem kuchennym i jadalnią a korytarzem wejściowym ułatwia komunikację, doświetla hol światłem dziennym i pomaga przy wnoszeniu większych elementów, jak stół czy sprzęty. Położony przy wejściu korytarz wejściowy płynnie prowadzi do części dziennej, dzięki czemu pierwsze wrażenie jest uporządkowane i przyjazne.
-
Duży jak na metraż korytarz wejściowy (5,61 m²) z szafą 184×60 to czytelny węzeł komunikacyjny: z niego wchodzi się do wszystkich pomieszczeń – salonu z aneksem kuchennym i jadalnią, sypialni małżeńskiej oraz łazienki. Taki układ zwiększa prywatność sypialni, skraca drogę do łazienki i ułatwia organizację codziennych wyjść, niezależnie od aktywności w części dziennej.
To mieszkanie idealne dla pary, singla pracującego hybrydowo lub inwestora szukającego wygodnego układu z dużą loggią i jasną strefą dzienną. Sprawdzi się u osób ceniących komfortową sypialnię, bliskość łazienki oraz łatwy dostęp do wszystkich pomieszczeń z funkcjonalnego korytarza wejściowego.