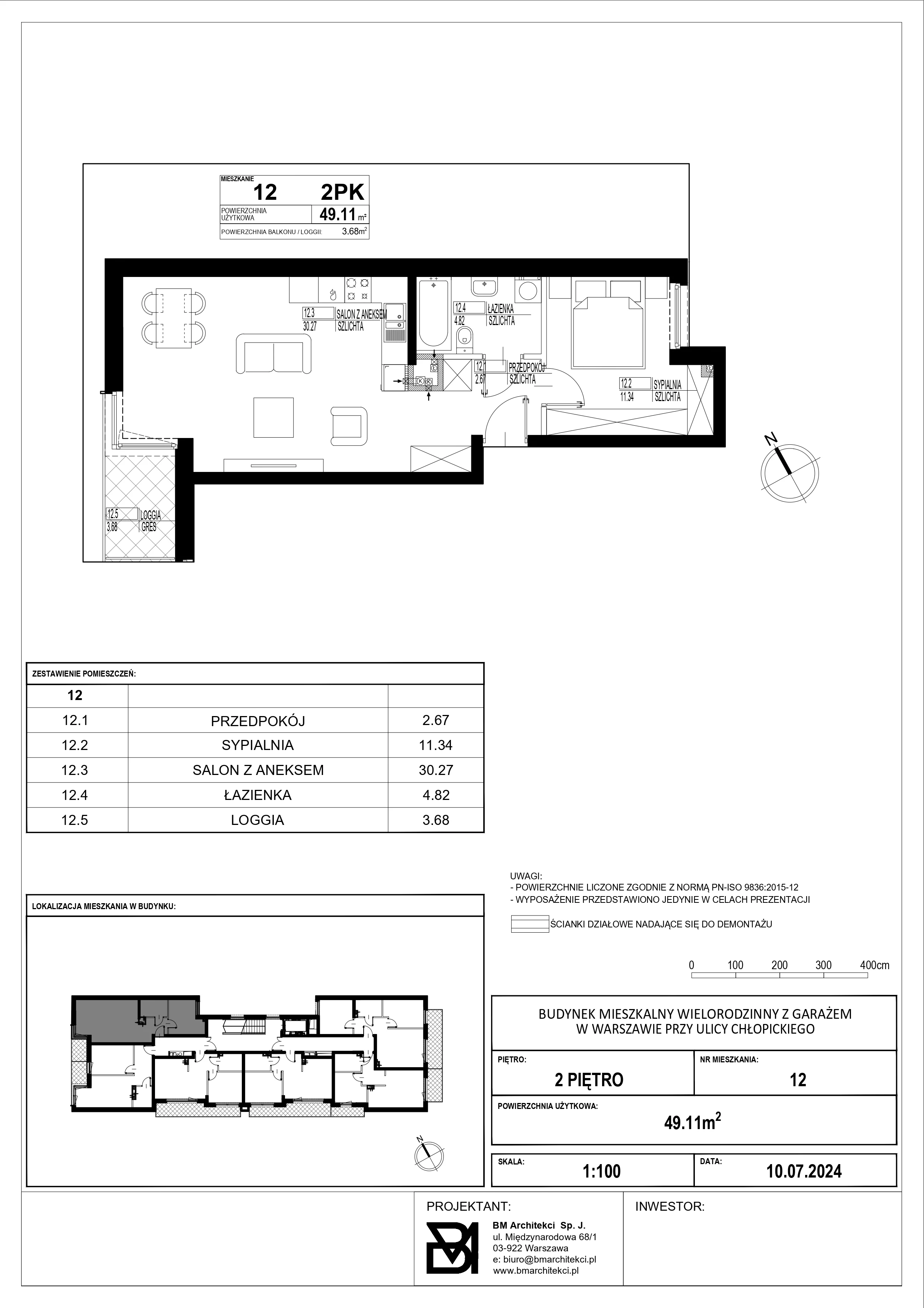
Nowe mieszkanie, 49,11 m², 2 pokoje, 2 piętro, oferta nr 12NOWOŚĆ
Zapytaj o ofertę
773 482,50 zł
15 750,00 zł/m²
okazyjna cena
Rata 3 943 zł/mies. - sprawdź >
Monitoring cen
Inwestycja Stacja Olszynka
Warszawa, Praga Południe, Gocławek, ul. Załęże 14




Mapa
Liczba pokoi:
2 pokoje
Powierzchnia:
49,11 m²
Piętro:
2 piętro
Liczba poziomów:
1
Wys. mieszkania:
2,60 m
Garaż:
parking podziemny
Powierzchnie zewnętrzne:
loggia (3,68 m²)
Termin oddania:
IV kwartał 2026