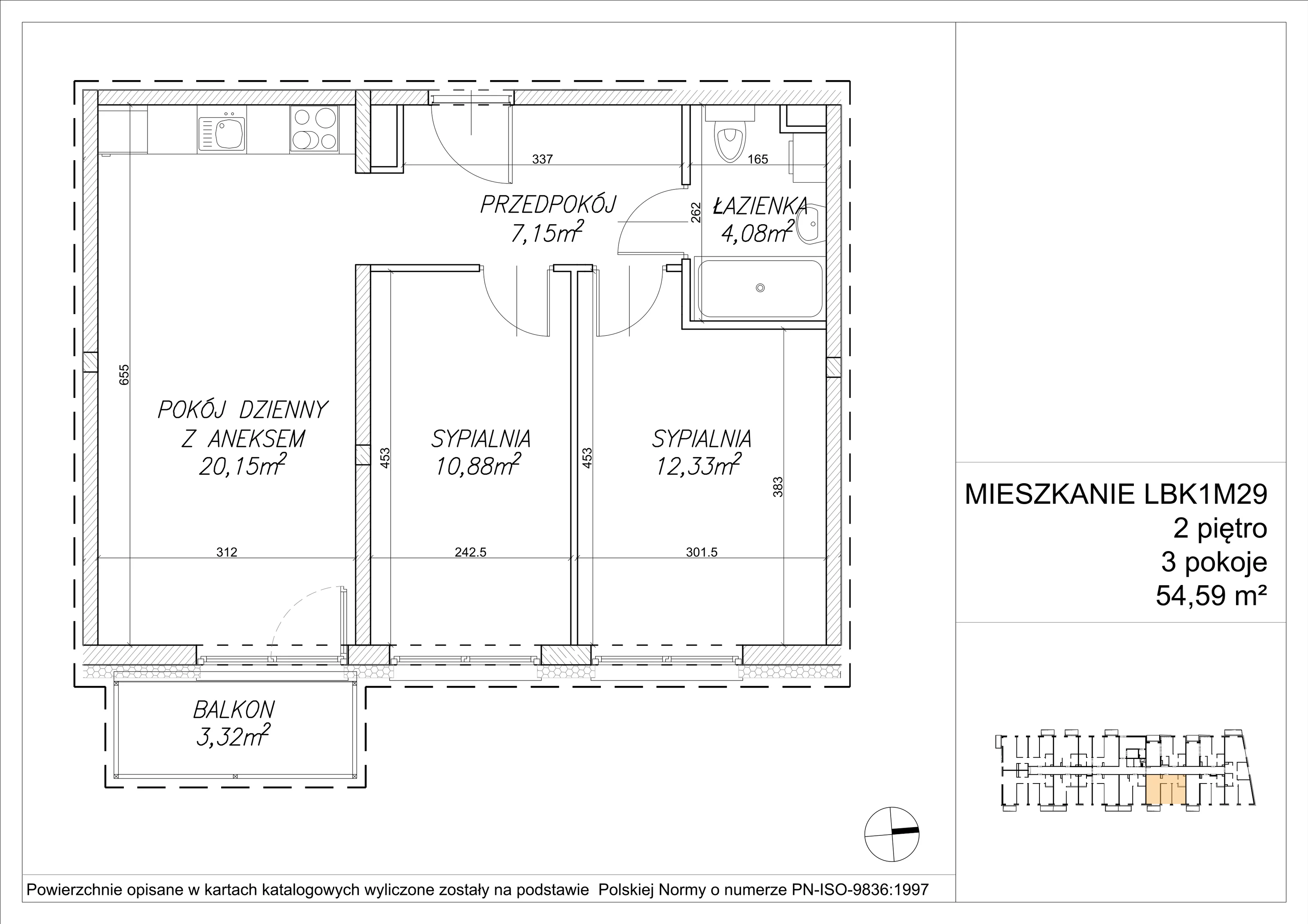
Nowe mieszkanie, 54,57 m², 3 pokoje, 2 piętro, oferta nr LBK1M29NOWOŚĆ
589 356,00 zł
10 800,00 zł/m²
Monitoring cen
Inwestycja Lipa Piotrkowska
Wrocław, Lipa Piotrowska, Psie Pole, ul Szałwiowa 6







Liczba pokoi:
3 pokoje
Powierzchnia:
54,57 m²
Piętro:
2 piętro
Liczba poziomów:
1
Garaż:
parking naziemny, parking podziemny
Powierzchnie zewnętrzne:
balkon (3,32 m²)
Termin oddania:
IV kwartał 2025