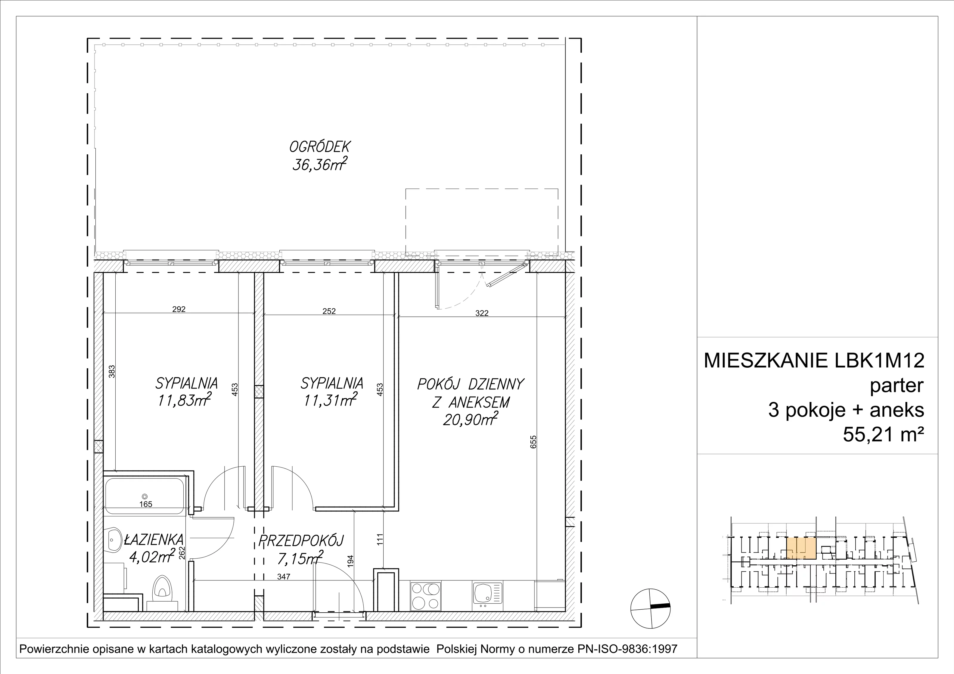
Nowe mieszkanie, 55,29 m², 3 pokoje, parter, oferta nr LBK1M12NOWOŚĆ
617 132,00 zł
11 161,73 zł/m²
Monitoring cen
Inwestycja Lipa Piotrkowska
Wrocław, Lipa Piotrowska, Psie Pole, ul Szałwiowa 6







Liczba pokoi:
3 pokoje
Powierzchnia:
55,29 m²
Liczba poziomów:
1
Garaż:
parking naziemny, parking podziemny
Powierzchnie zewnętrzne:
ogródek (33,96 m²)
Termin oddania:
IV kwartał 2025