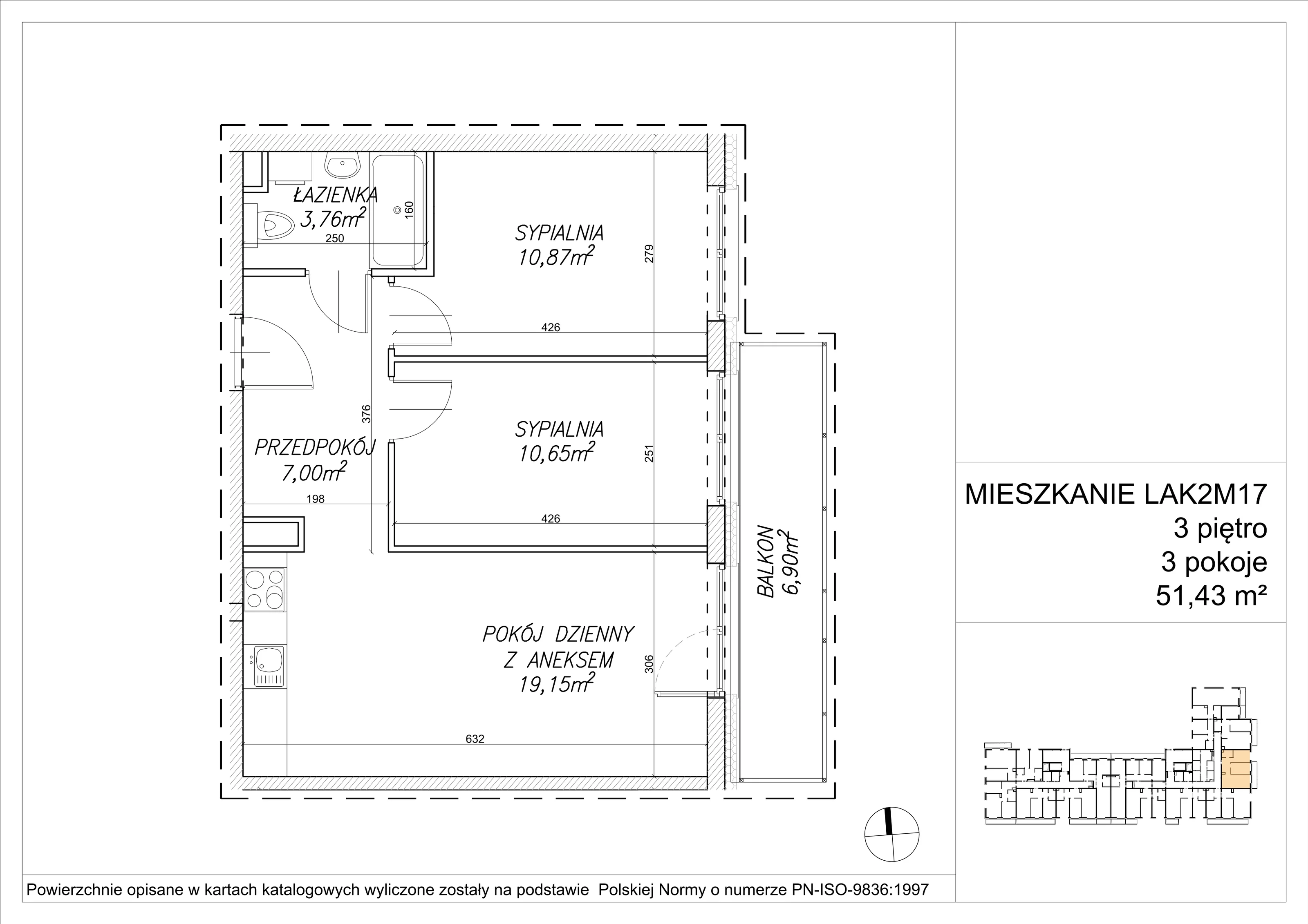
Nowe mieszkanie, 51,49 m², 3 pokoje, 3 piętro, oferta nr LAK2M17NOWOŚĆ
596 413,20 zł
11 583,09 zł/m²
Monitoring cen
Inwestycja Lipa Piotrkowska
Wrocław, Lipa Piotrowska, Psie Pole, ul Szałwiowa 6







Liczba pokoi:
3 pokoje
Powierzchnia:
51,49 m²
Piętro:
3 piętro
Liczba poziomów:
1
Garaż:
parking naziemny, parking podziemny
Powierzchnie zewnętrzne:
balkon (6,90 m²)
Termin oddania:
IV kwartał 2025