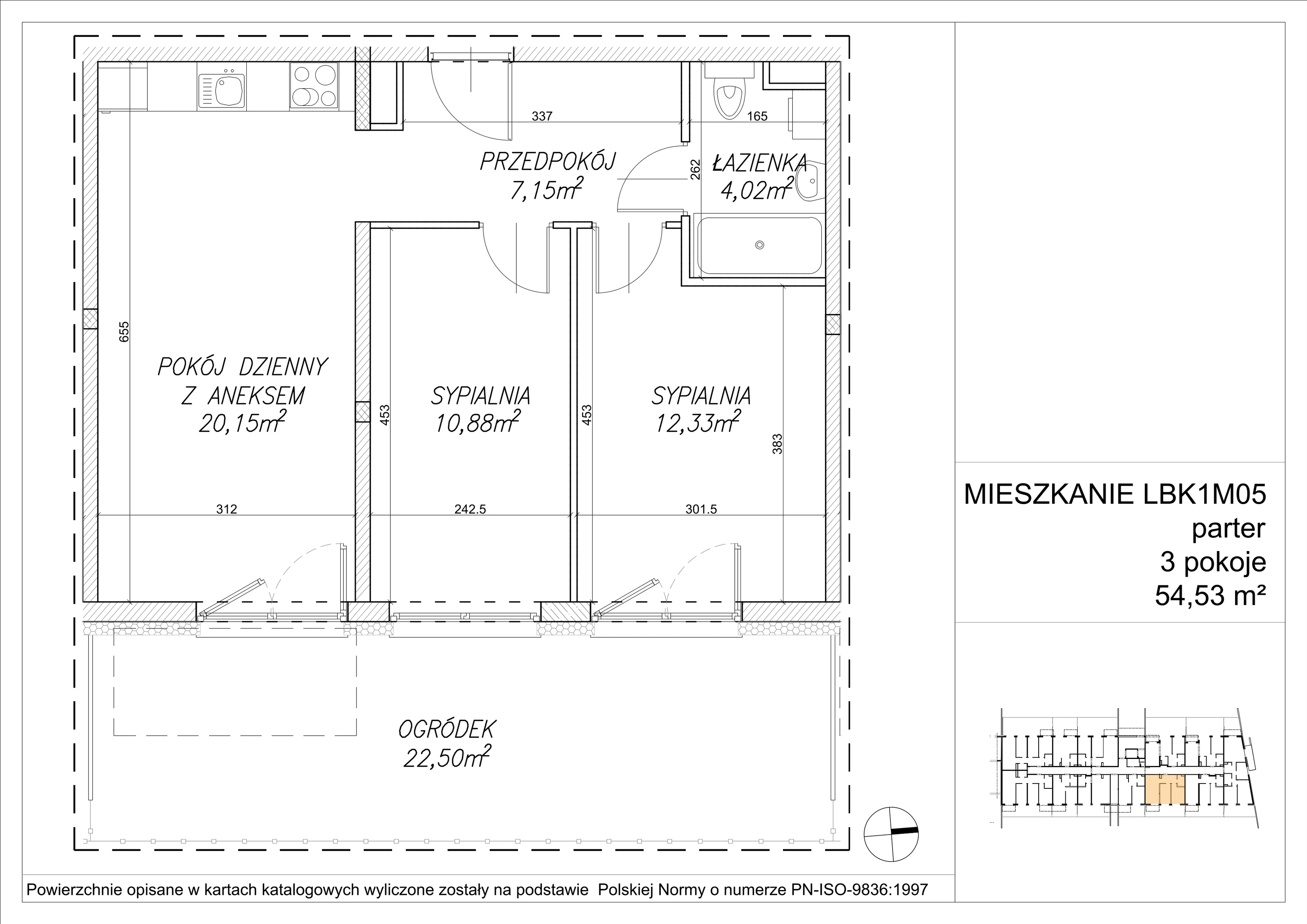
Nowe mieszkanie, 54,64 m², 3 pokoje, parter, oferta nr LBK1M05NOWOŚĆ
600 112,00 zł
10 983,02 zł/m²
Monitoring cen
Inwestycja Lipa Piotrkowska
Wrocław, Lipa Piotrowska, Psie Pole, ul Szałwiowa 6







Liczba pokoi:
3 pokoje
Powierzchnia:
54,64 m²
Liczba poziomów:
1
Garaż:
parking naziemny, parking podziemny
Powierzchnie zewnętrzne:
ogródek (21,50 m²)
Termin oddania:
IV kwartał 2025