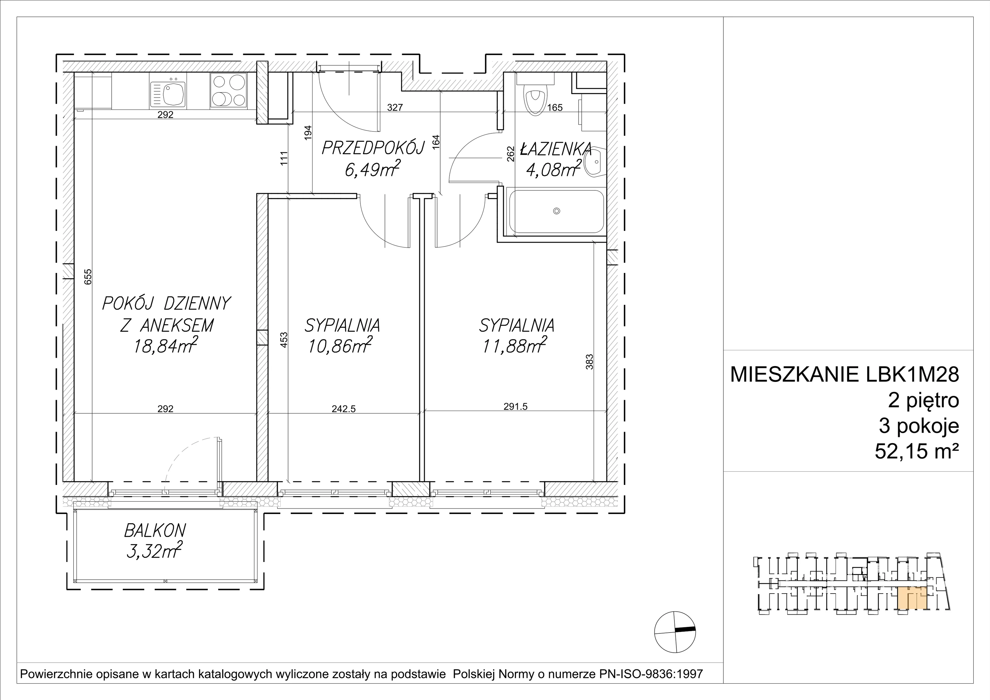
Nowe mieszkanie, 52,32 m², 3 pokoje, 2 piętro, oferta nr LBK1M28NOWOŚĆ
575 520,00 zł
11 000,00 zł/m²
Monitoring cen
Inwestycja Lipa Piotrkowska
Wrocław, Lipa Piotrowska, Psie Pole, ul Szałwiowa 6







Liczba pokoi:
3 pokoje
Powierzchnia:
52,32 m²
Piętro:
2 piętro
Liczba poziomów:
1
Garaż:
parking naziemny, parking podziemny
Powierzchnie zewnętrzne:
balkon (3,32 m²)
Termin oddania:
IV kwartał 2025