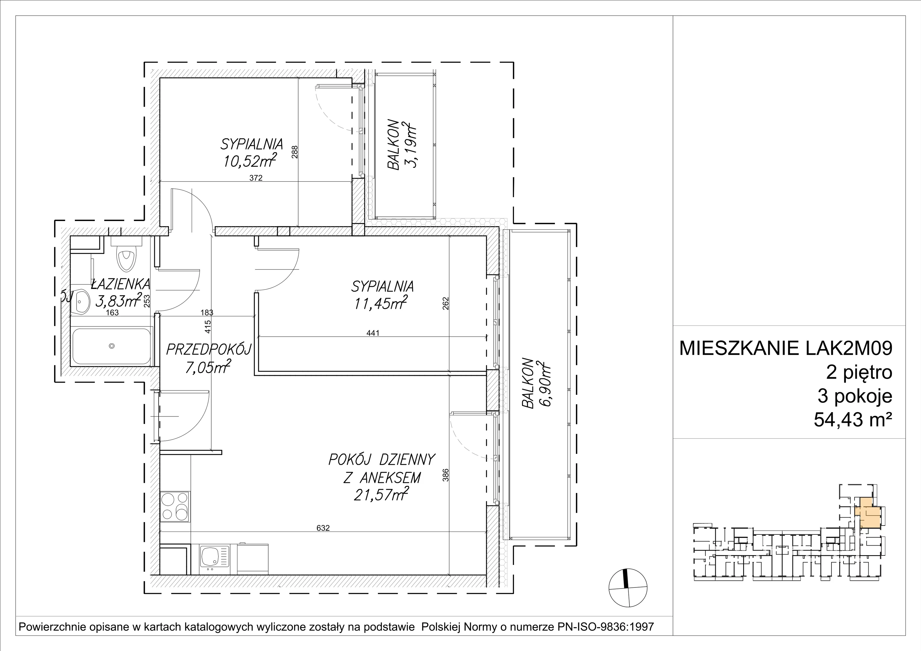
Nowe mieszkanie, 54,54 m², 3 pokoje, 2 piętro, oferta nr LAK2M09NOWOŚĆ
625 944,80 zł
11 476,80 zł/m²
Monitoring cen
Inwestycja Lipa Piotrkowska
Wrocław, Lipa Piotrowska, Psie Pole, ul Szałwiowa 6







Liczba pokoi:
3 pokoje
Powierzchnia:
54,54 m²
Piętro:
2 piętro
Liczba poziomów:
1
Garaż:
parking naziemny, parking podziemny
Powierzchnie zewnętrzne:
balkon (6,90 m²), balkon (3,19 m²)
Termin oddania:
IV kwartał 2025