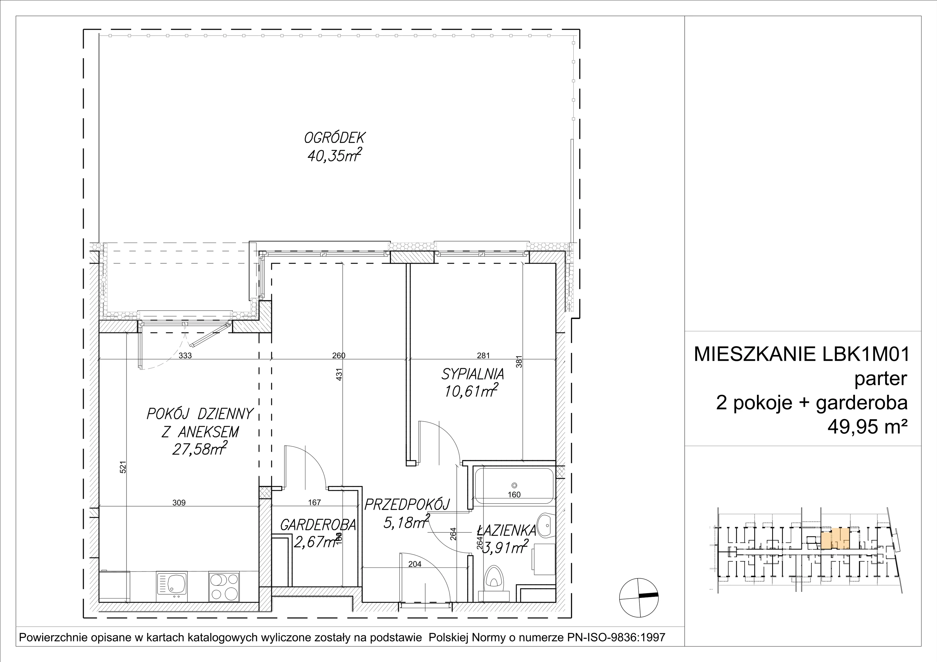
Nowe mieszkanie, 48,85 m², 2 pokoje, parter, oferta nr LBK1M02NOWOŚĆ
557 350,00 zł
11 409,42 zł/m²
Monitoring cen
Inwestycja Lipa Piotrkowska
Wrocław, Lipa Piotrowska, Psie Pole, ul Szałwiowa 6







Liczba pokoi:
2 pokoje
Powierzchnia:
48,85 m²
Liczba poziomów:
1
Garaż:
parking naziemny, parking podziemny
Powierzchnie zewnętrzne:
ogródek (37,24 m²)
Termin oddania:
IV kwartał 2025