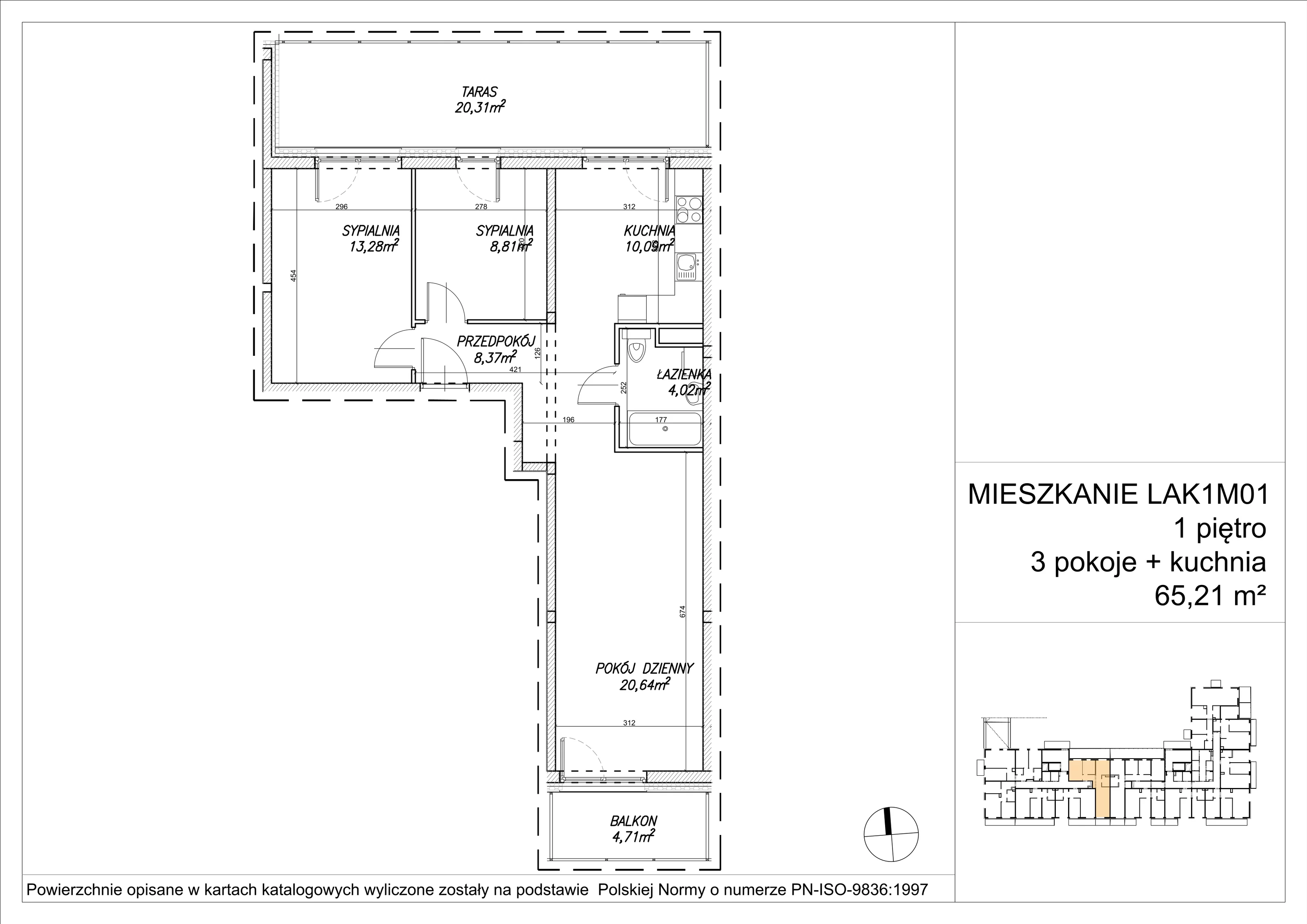
Nowe mieszkanie, 65,31 m², 3 pokoje, 1 piętro, oferta nr LAK1M01NOWOŚĆ
718 269,20 zł
10 997,84 zł/m²
Monitoring cen
Inwestycja Lipa Piotrkowska
Wrocław, Lipa Piotrowska, Psie Pole, ul Szałwiowa 6







Liczba pokoi:
3 pokoje
Powierzchnia:
65,31 m²
Piętro:
1 piętro
Liczba poziomów:
1
Garaż:
parking naziemny, parking podziemny
Powierzchnie zewnętrzne:
taras (20,31 m²), balkon (4,71 m²)
Termin oddania:
IV kwartał 2025