|
Nowoczesny apartament o powierzchni użytkowej 84,02m2, wraz z ogródkiem i tarasem , zlokalizowany w Kielcach-Maciejówce. Mieszkanie znajduje się na parterze nowego budynku, usytuowanego na kameralnym osiedlu domów w zabudowie szeregowej, w pobliżu terenów zielonych. W trosce o komfort i bezpieczeństwo mieszkańców teren będzie ogrodzony, monitorowany całodobowo przy pomocy systemu kamer.
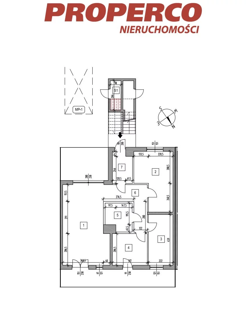
W skład mieszkania wchodzą:
- salon z aneksem kuchennym 29,83 m2,
- sypialnia/pokój 9,08 m2,
- sypialnia/pokój 10,18 m2,
- sypialnia/pokój 15,95 m2
- łazienka 5,77 m2,
- hol 8,20 m2,
- wiatrołap 5,01 m2.
Do każdego lokalu przynależy naziemne miejsce parkingowe w cenie mieszkania. Każdy lokal będzie wyposażony w kocioł gazowy kondensacyjny do podgrzania wody użytkowej i na potrzeby centralnego ogrzewania.
Termin zakończenia inwestycji: IV kwartał 2024 r.
Osiedle składa się z trzydziestu apartamentów w zabudowie szeregowej, z funkcjonalnymi rozkładami pomieszczeń. Budynki zaprojektowane zostały w sposób ułatwiający dostęp do nich osobom niepełnosprawnym.
Duże tarasy przynależne do mieszkań na kondygnacji pierwszej oraz przestronne ogródki znajdujące się na parterze tworzą urokliwe, prywatne miejsca do odpoczynku i relaksu. Ciepły wizerunek osiedla jest zasługą odpowiedniego doboru materiałów elewacyjnych i ich kolorów. Na elewacjach dominują biele i brązy tynków. Zapraszamy do kontaktu z naszym agentem.
Adres strony internetowej, o którym mowa w art. 19a ust. 3 ustawy z dnia 20 maja 2021 r. o ochronie praw nabywcy lokalu mieszkalnego lub domu jednorodzinnego oraz Deweloperskim Funduszu Gwarancyjnym to elstuksolo(kropka)pl Adres strony został ujęty fonetycznie.
>>Kupujący zwolniony z kosztów obsługi biura i podatku PCC<<
Dane kontaktowe do agenta: Jacek Kotlarz, tel: 888 889 441, e-mail:
Zapytaj o ofertę
For more information in English please call: 888 889 441, e-mail:
Zapytaj o ofertę
____
A modern apartment with a usable area of 84.02 m² , including a garden and terrace, located in Kielce-Maciejówka. The apartment is on the ground floor of a new building situated in a small estate of terraced houses, close to green areas. For the comfort and safety of residents, the area will be fenced and monitored 24/7 with a camera system.
The apartment includes:
living room with kitchenette 29.83 m2,
Bedroom/Room: 9.08 m²
Bedroom/Room: 10.18 m²
Bedroom/Room: 15,95 m²
Bathroom: 5.77m²
Hallway: 8.20 m²
Vestibule: 5,01. m²
Each unit comes with a ground-level parking space included in the price. Each apartment will be equipped with a condensing gas boiler for hot water and central heating.
Completion date: Q4 2024 .
The estate consists of thirty terraced apartments with functional layouts. The buildings are designed to facilitate access for people with disabilities.
Large terraces for ground-floor apartments and spacious gardens create charming, private places for relaxation. The warm appearance of the estate is achieved through the careful selection of facade materials and colors, with whites and browns predominating on the facades. Please contact our agent for more information. The website address referred to in Article 19a, paragraph 3 of the Act of 20 May 2021 on the protection of the rights of purchasers of residential premises or single-family houses and on the Developer Guarantee Fund is elstuksolo(dot)pl The website address is spelled phonetically.
Buyers are exempt from agency fees and PCC tax.
For more information in English please call: 888 889 441, e-mail:
Zapytaj o ofertę
::LINK DO STRONY |
https://www.properco.pl/szczegoly,6729102.html
::KONTAKT DO AGENTA |
Jacek Kotlarz |
+48 41 310 90 71 |
+48 888 889 441 |
Zapytaj o ofertę
--------------------------
Biuro Nieruchomości PROPERCO sp. z o.o. sp.k. współpracuje z doświadczonymi specjalistami finansowymi, oferującymi sprawdzenie zdolności kredytowej oraz przedstawienie oferty finansowania nieruchomości / Informacje dotyczące opisu nieruchomości podane są przez właściciela, mają charakter wyłącznie informacyjny i mogą podlegać aktualizacji. Oferta dotycząca nieruchomości nie stanowi oferty określonej w art. 66 i następnych KC. Nasze usługi świadczymy w oparciu o umowę pośrednictwa, która gwarantuje Państwu opiekę naszego doradcy przez cały okres trwania współpracy. Za wykonaną usługę pobieramy wynagrodzenie zgodnie z warunkami uzgodnionymi w zawartej umowie /// The real estate agency PROPERCO sp. z o.o. sp.k. collaborates with experienced financial specialists, offering creditworthiness assessment and presenting property financing offers. Information regarding property descriptions is provided by the owner, is purely informational, and may be subject to updates. The property offer does not constitute a specific offer as defined in Art. 66 and subsequent articles of the Civil Code. Our services are provided based on a brokerage agreement, ensuring you the care of our advisor throughout the entire collaboration period. We charge a fee for the services rendered according to the terms agreed upon in the concluded agreement.
Zapraszamy do siedziby naszego biura w Kielcach przy ul. Koziej 3a/1. /// We invite you to visit our office located in Kielce at 3a/1 Kozia Street.
Dane adresowe /// Address details:
PROPERCO sp. z o.o. sp.k
ul. Kozia 3a/1
25-514 Kielce
tel. kom: +48 692-024-827
https://www.properco.pl/