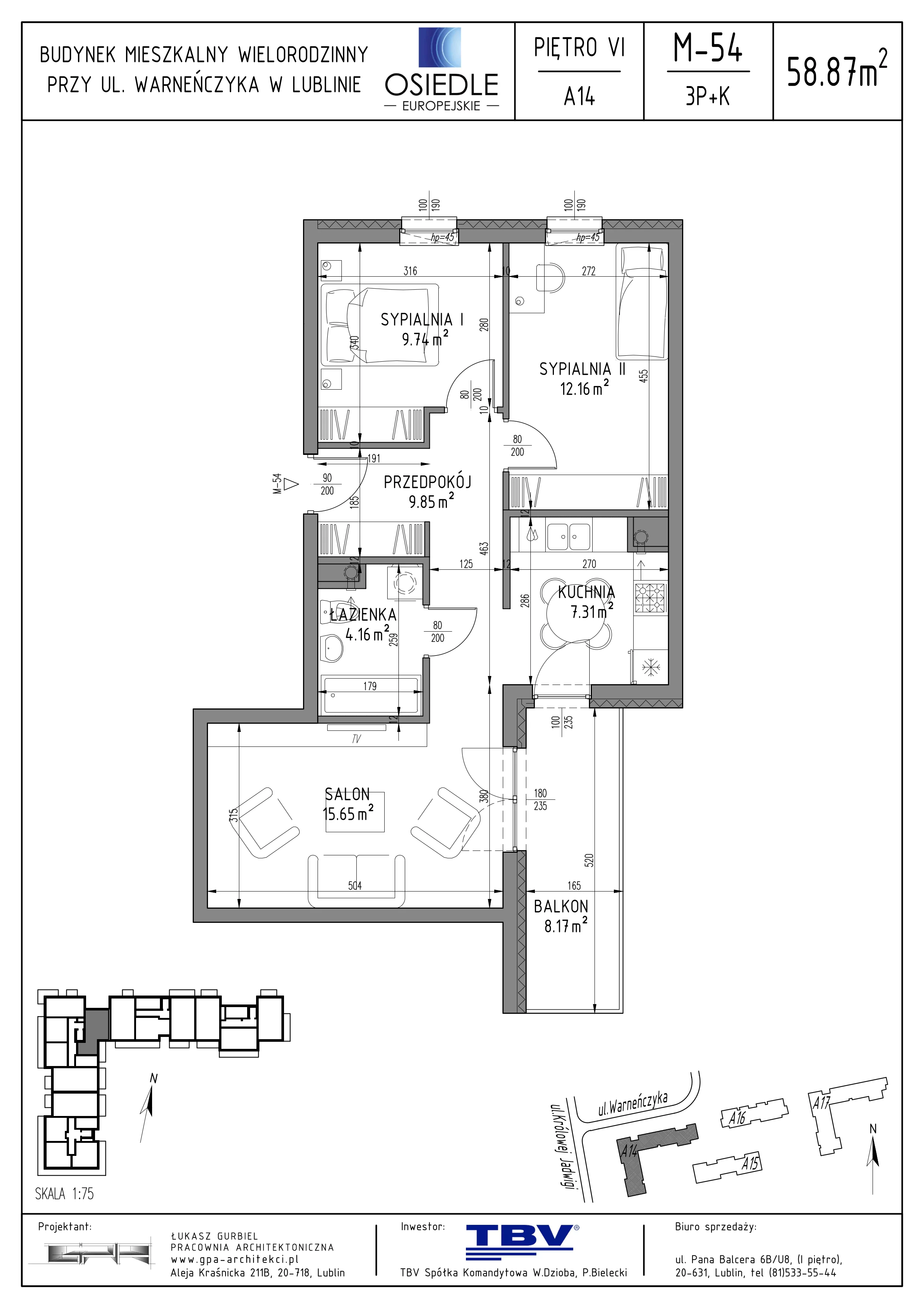
Nowe mieszkanie, 58,87 m², 3 pokoje, 6 piętro, oferta nr A14-LM-54NOWOŚĆ
Inwestycja Osiedle Europejskie - Etap Kopenhaga
606 361,00 zł
Rata 3 091 zł/mies. - sprawdź >
Lublin, Felin, ul. Zygmunta Starego






5

Mapa
Cena:
606 361,00 zł
Cena za m²:
10 300,00 zł
Liczba pokoi:
3 pokoje
Powierzchnia:
58,87 m²
Piętro:
6 piętro
Liczba poziomów:
1
Strony świata:
północ (N), południe (S), wschód (E)
Garaż:
parking naziemny, parking podziemny
Powierzchnie dodatkowe:
komórka lokatorska
Powierzchnie zewnętrzne:
balkon (8,17 m²)
Termin oddania:
II kwartał 2026