Osiedle Europejskie - Etap KopenhagaTBV - mieszkania na sprzedaż
Lublin, Felin, ul. Zygmunta Starego








Obecnie w sprzedaży.
W ofercie pozostało 8 typów.
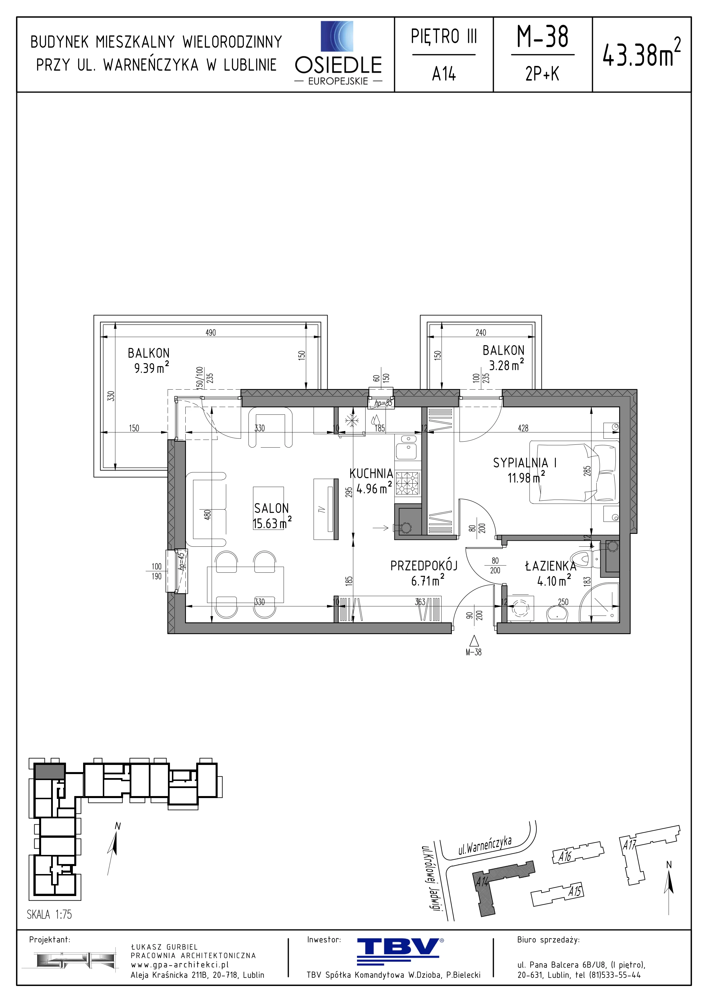
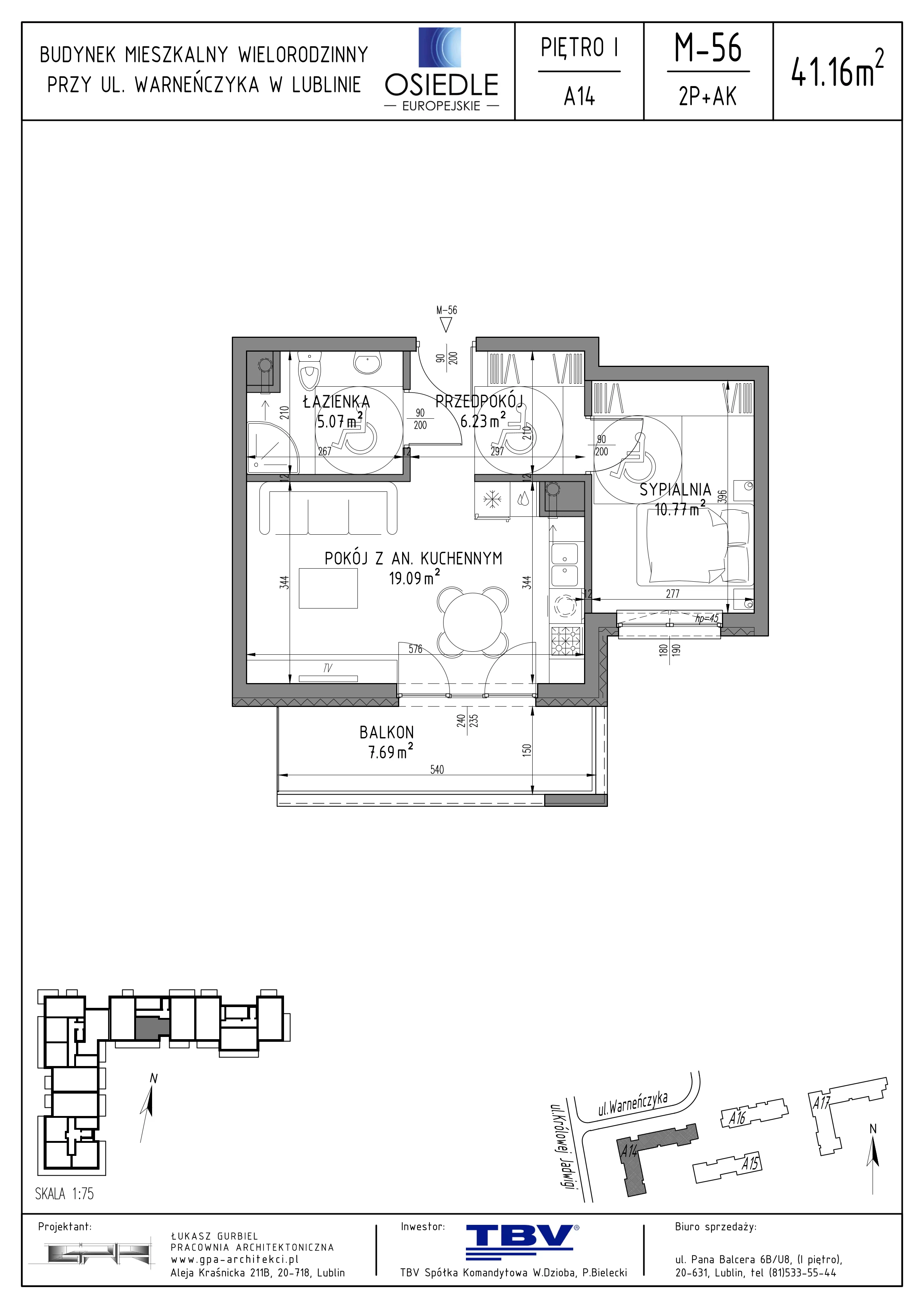
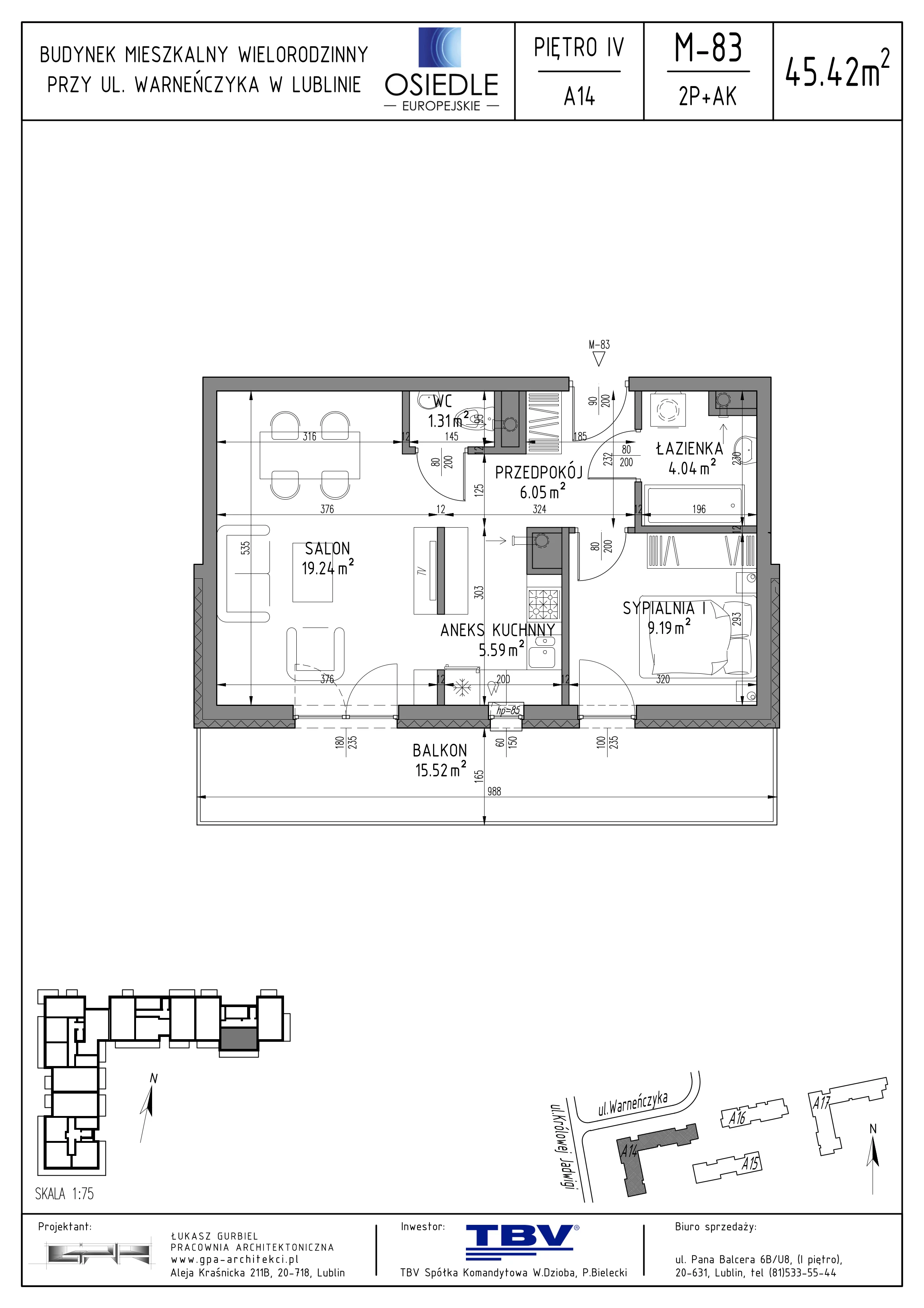
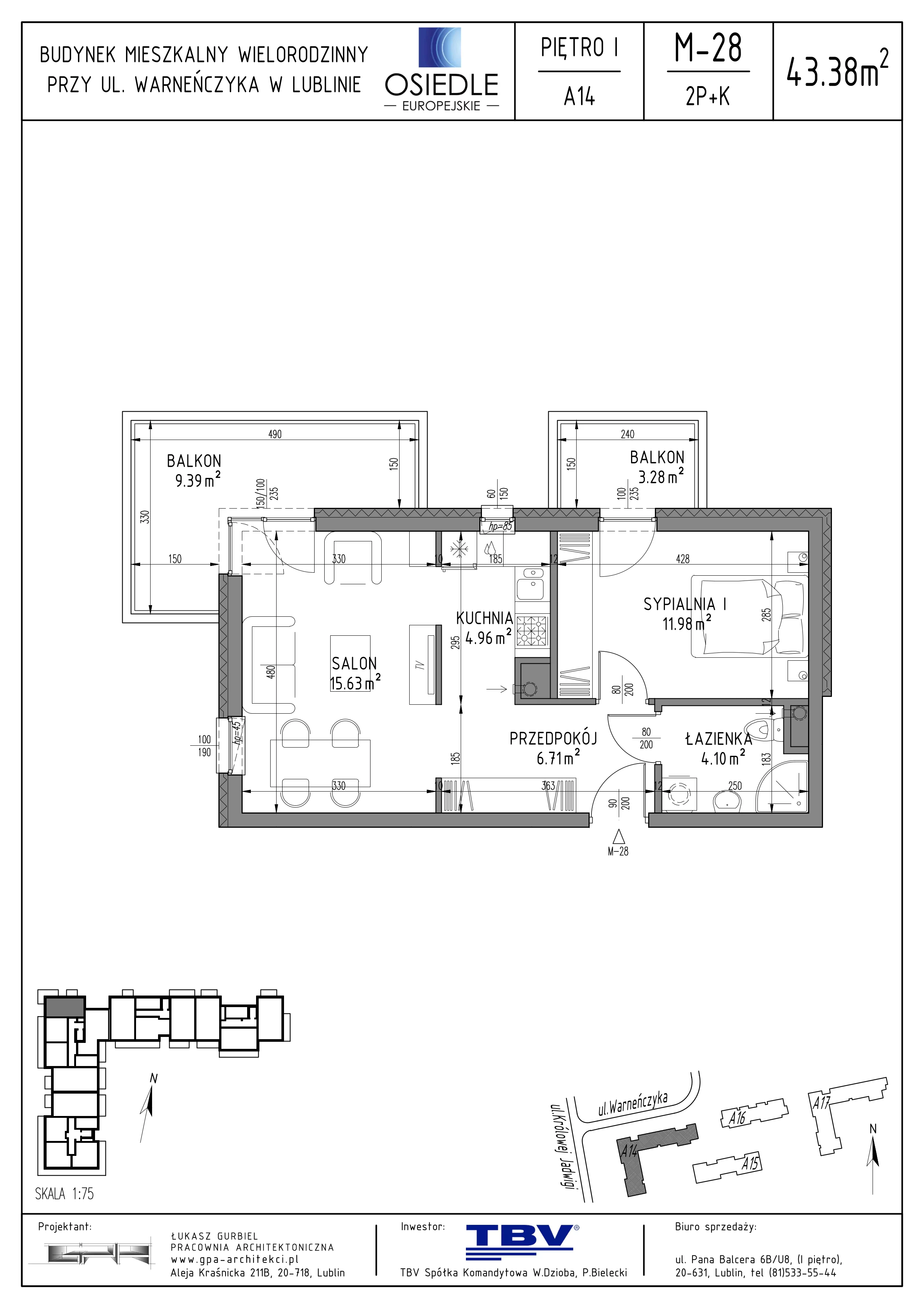
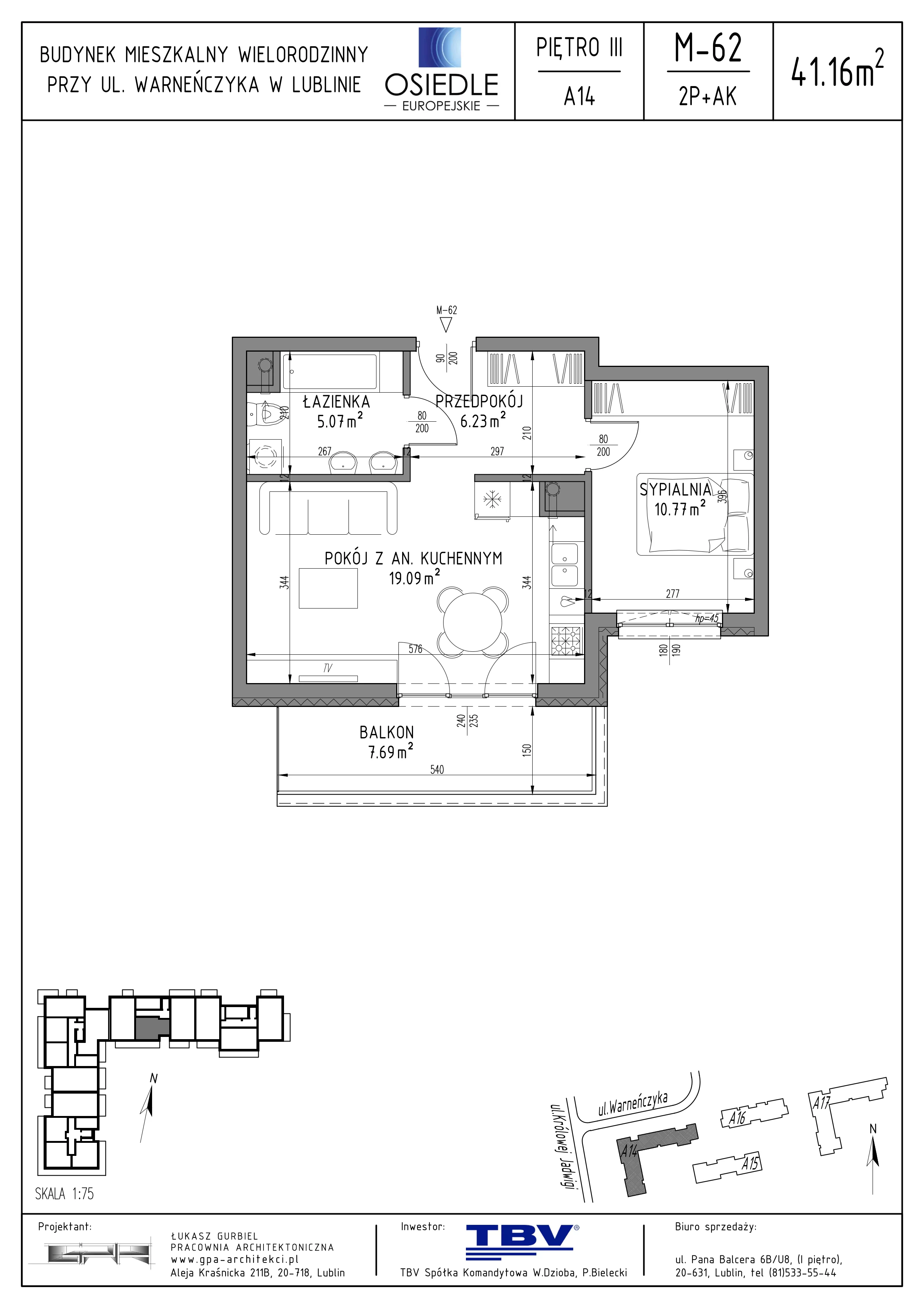
1) Dwupokojowe mieszkanie — 41,16 m²
Pomieszczenia: salon z aneksem kuchennym i jadalnią, sypialnia małżeńska, łazienka, korytarz wejściowy, balkon. Idealne dla singla, pary rozpoczynającej wspólne mieszkanie lub jako inwestycja pod wynajem. Kompaktowy metraż zapewnia niskie koszty utrzymania, aneks sprzyja wygodnemu życiu w otwartej strefie dziennej, a balkon daje praktyczną przestrzeń na odpoczynek i zieleń.
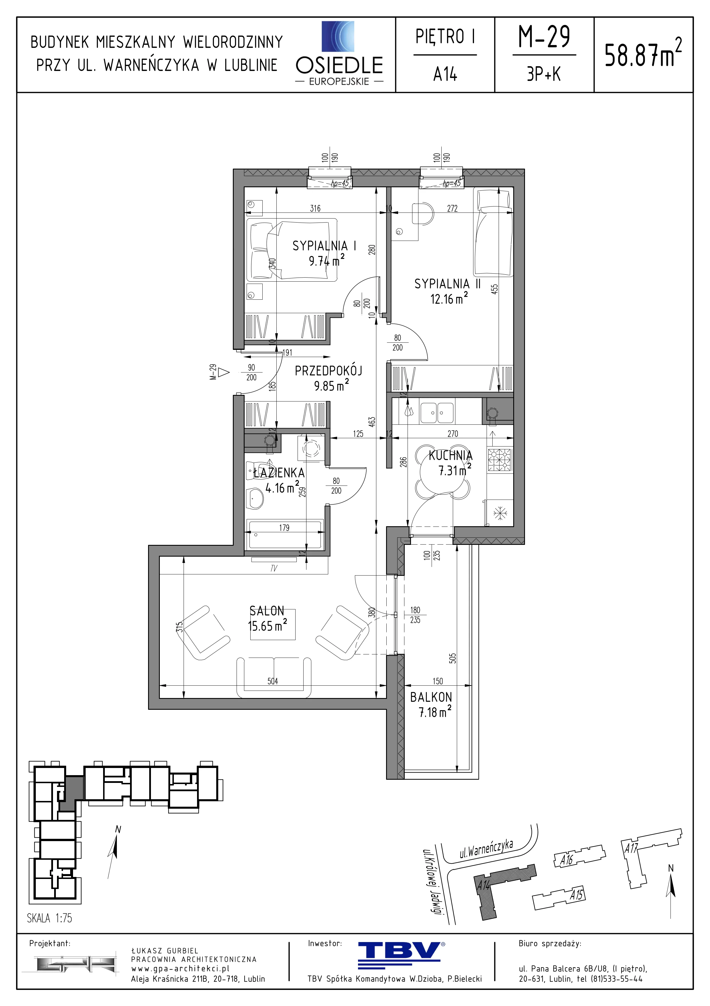
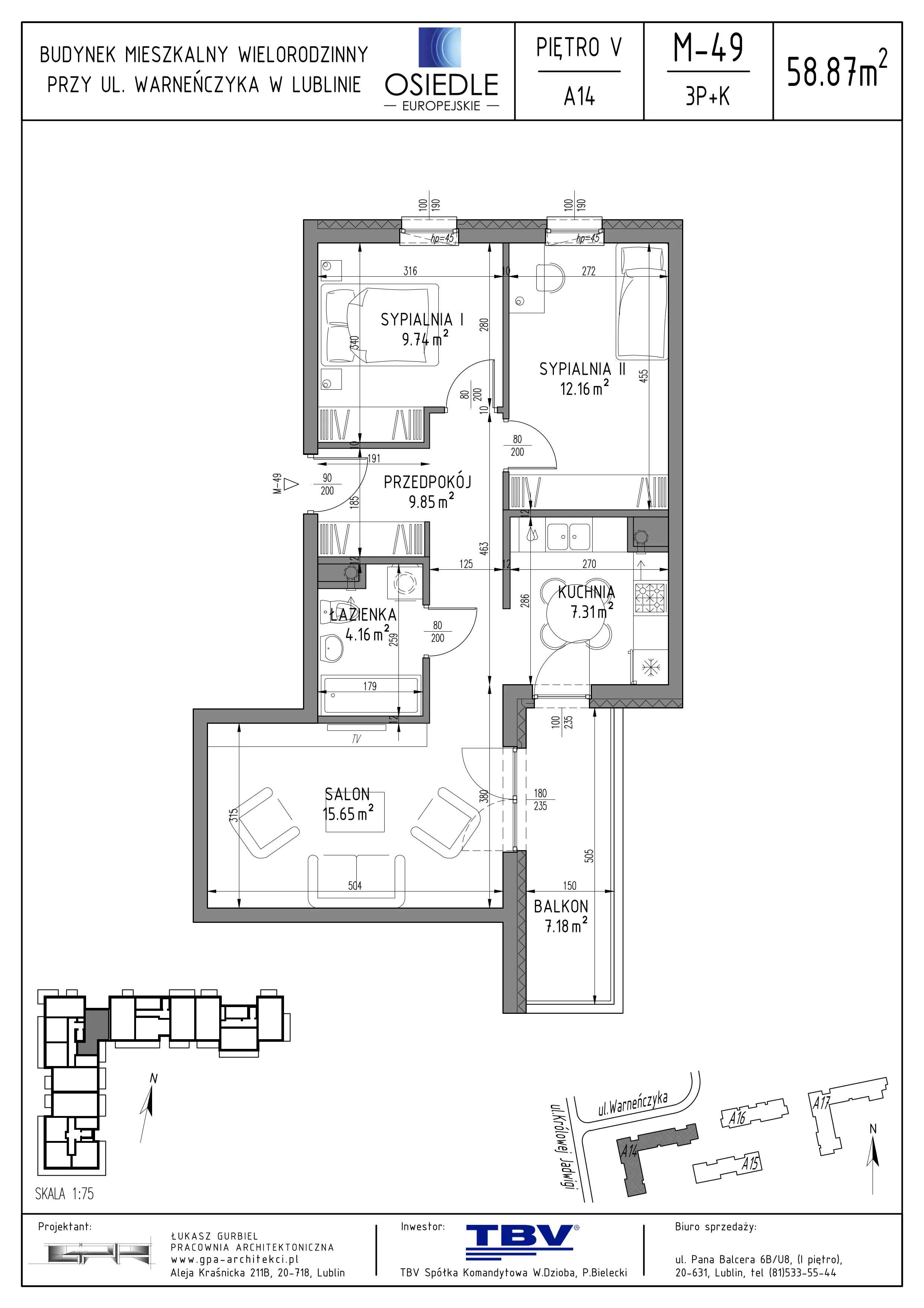
2) Trzypokojowe mieszkanie — 58,87 m²
Pomieszczenia: salon, sypialnia dla dziecka, sypialnia małżeńska, kuchnia z jadalnią, łazienka, korytarz wejściowy, balkon. Doskonałe dla rodziny 2+1 lub pary, która ceni tradycyjny układ z zamykaną kuchnią. Atutem jest osobna kuchnia: skutecznie separuje zapachy gotowania, pozwala utrzymać porządek w strefie dziennej, daje więcej przestrzeni na blaty i przechowywanie oraz umożliwia jednoczesne przygotowywanie posiłków i wypoczynek innych domowników w salonie bez wzajemnego przeszkadzania.
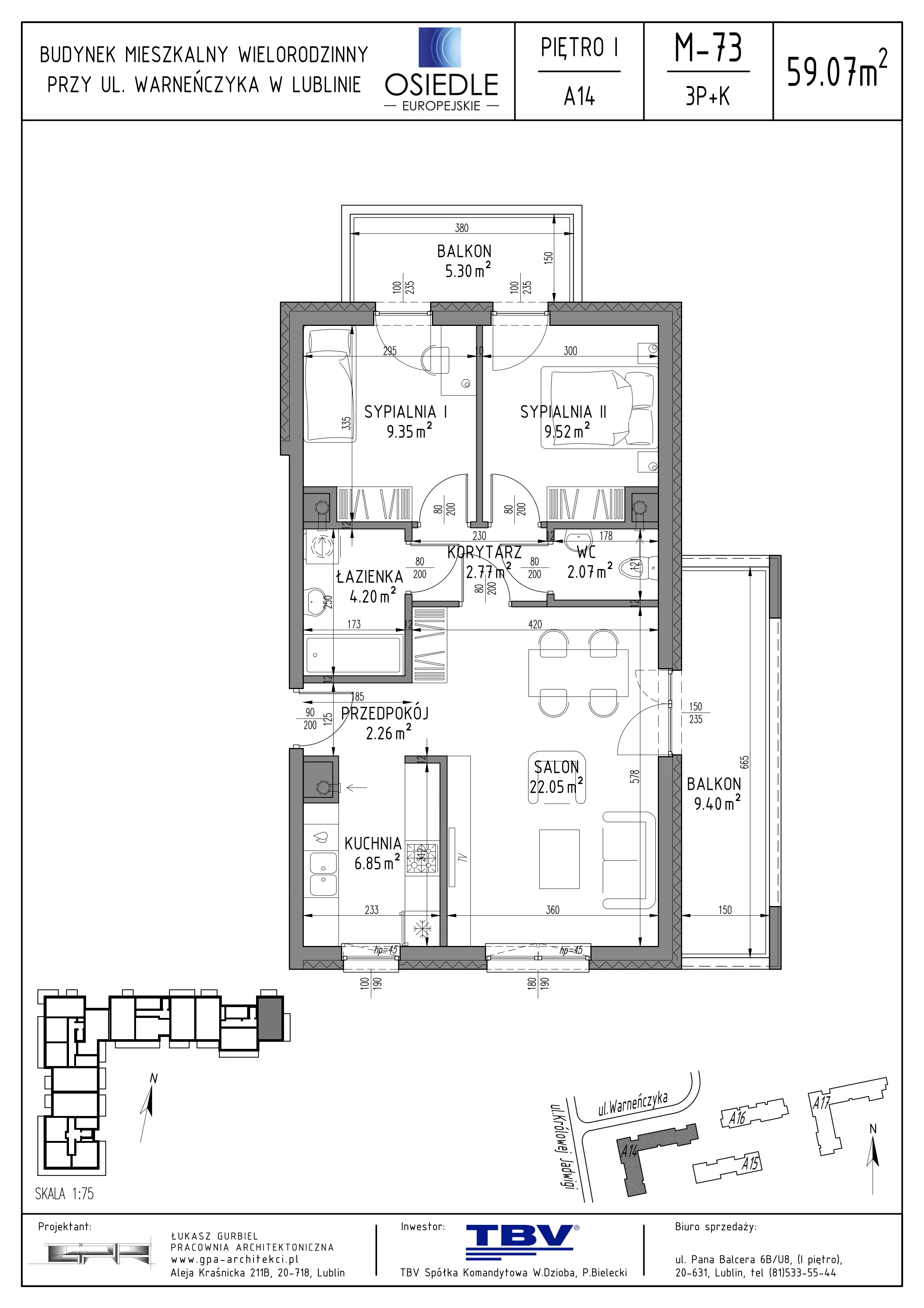
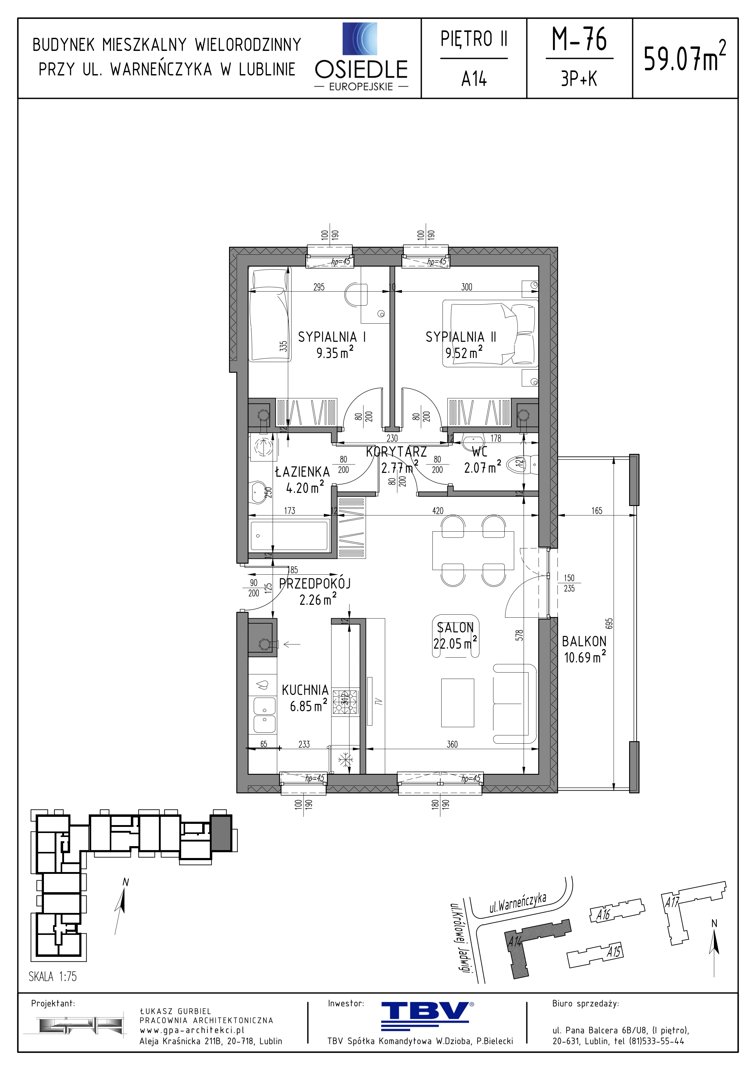
3) Trzypokojowe mieszkanie — 59,07–61,51 m²
Pomieszczenia: salon z jadalnią, sypialnia małżeńska, sypialnia dla dziecka, kuchnia, łazienka, WC, korytarz wewnętrzny, korytarz wejściowy, dwa balkony. Sprawdzą się u aktywnej rodziny, która potrzebuje wygodnego układu i elastycznej przestrzeni. Zaletą jest liczba balkonów: jeden można przeznaczyć na relaks, drugi na praktyczne funkcje (np. mini ogródek czy miejsce do suszenia), co zwiększa komfort i prywatność. Osobna kuchnia pozwala oddzielić przygotowanie posiłków od strefy wypoczynku, a osobne WC ułatwia poranną logistykę domowników i gości, podnosząc wygodę i higienę na co dzień.
4) Trzypokojowe mieszkanie — 59,07–61,51 m²
Pomieszczenia: salon z jadalnią, sypialnia małżeńska, sypialnia dla dziecka, kuchnia, łazienka, WC, korytarz wewnętrzny, korytarz wejściowy, balkon. Idealne dla rodzin ceniących funkcjonalny podział na strefę dzienną i nocną. Atutem jest osobna kuchnia, która zapewnia komfort przygotowywania posiłków bez ingerencji w porządek salonu, oraz osobne WC, przydatne podczas wizyt gości i w godzinach szczytu domowych obowiązków.
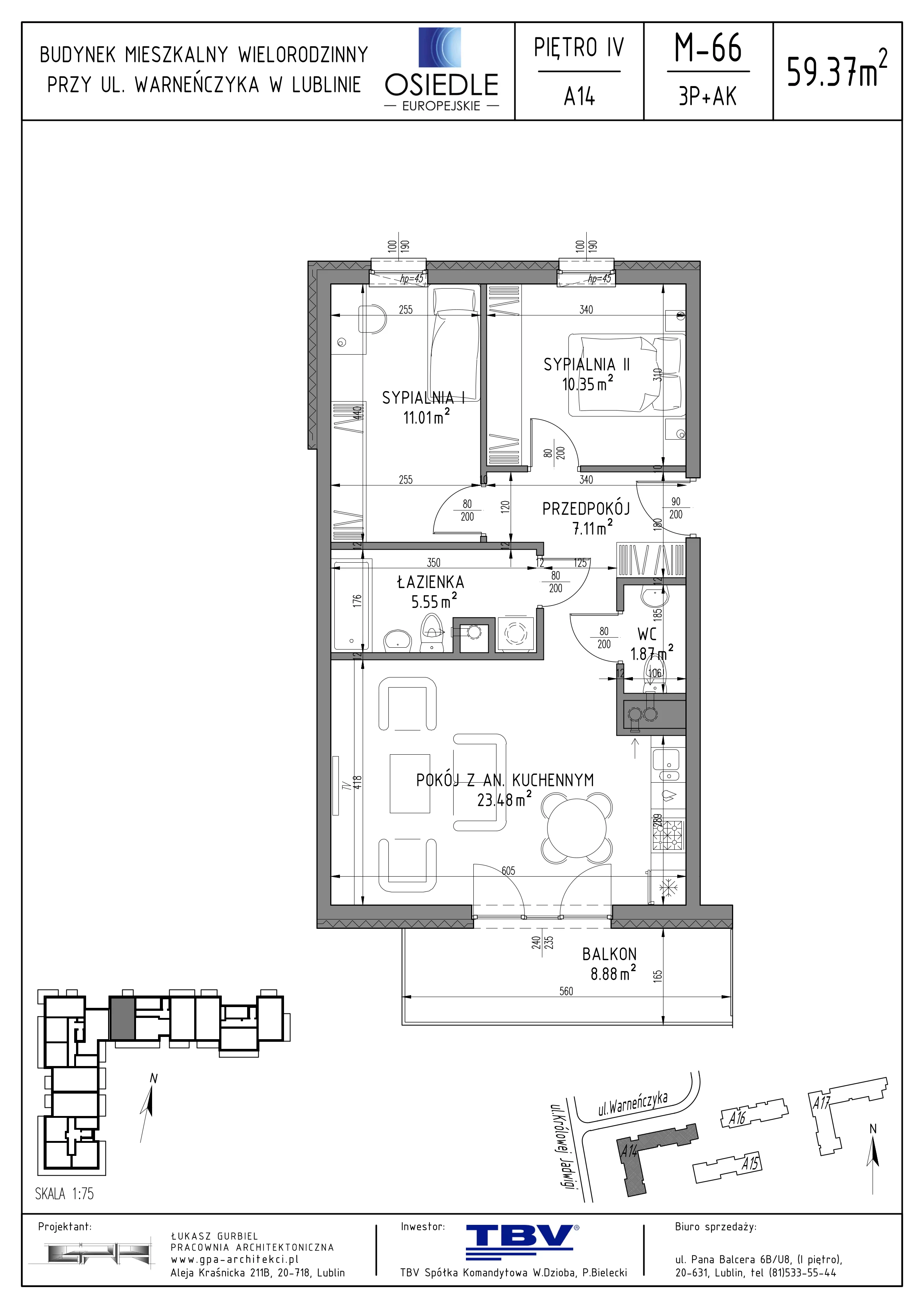
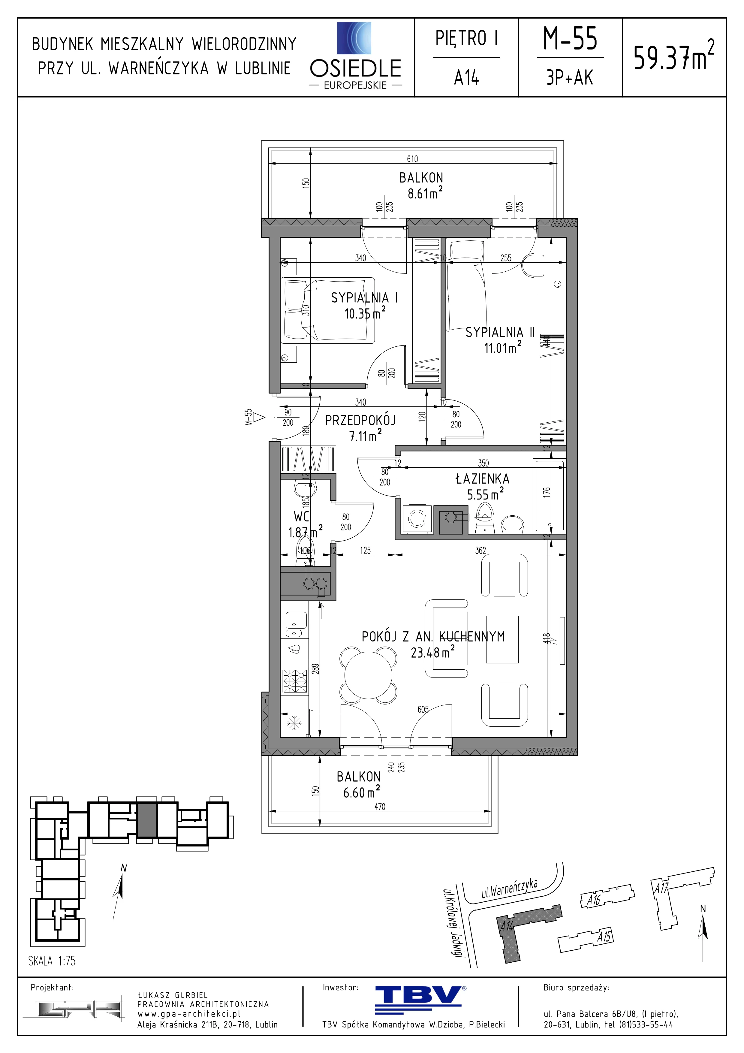
5) Trzypokojowe mieszkanie — 59,37 m²
Pomieszczenia: salon z aneksem kuchennym i jadalnią, sypialnia dla dziecka, sypialnia małżeńska, łazienka, WC, korytarz wejściowy, balkon. Polecane rodzinom oraz parom, które lubią wspólną, otwartą strefę dzienną. Dużym udogodnieniem jest osobne WC: pozwala korzystać dwóm osobom w tym samym czasie z różnych pomieszczeń, skraca kolejki o poranku i zwiększa komfort podczas odwiedzin znajomych.
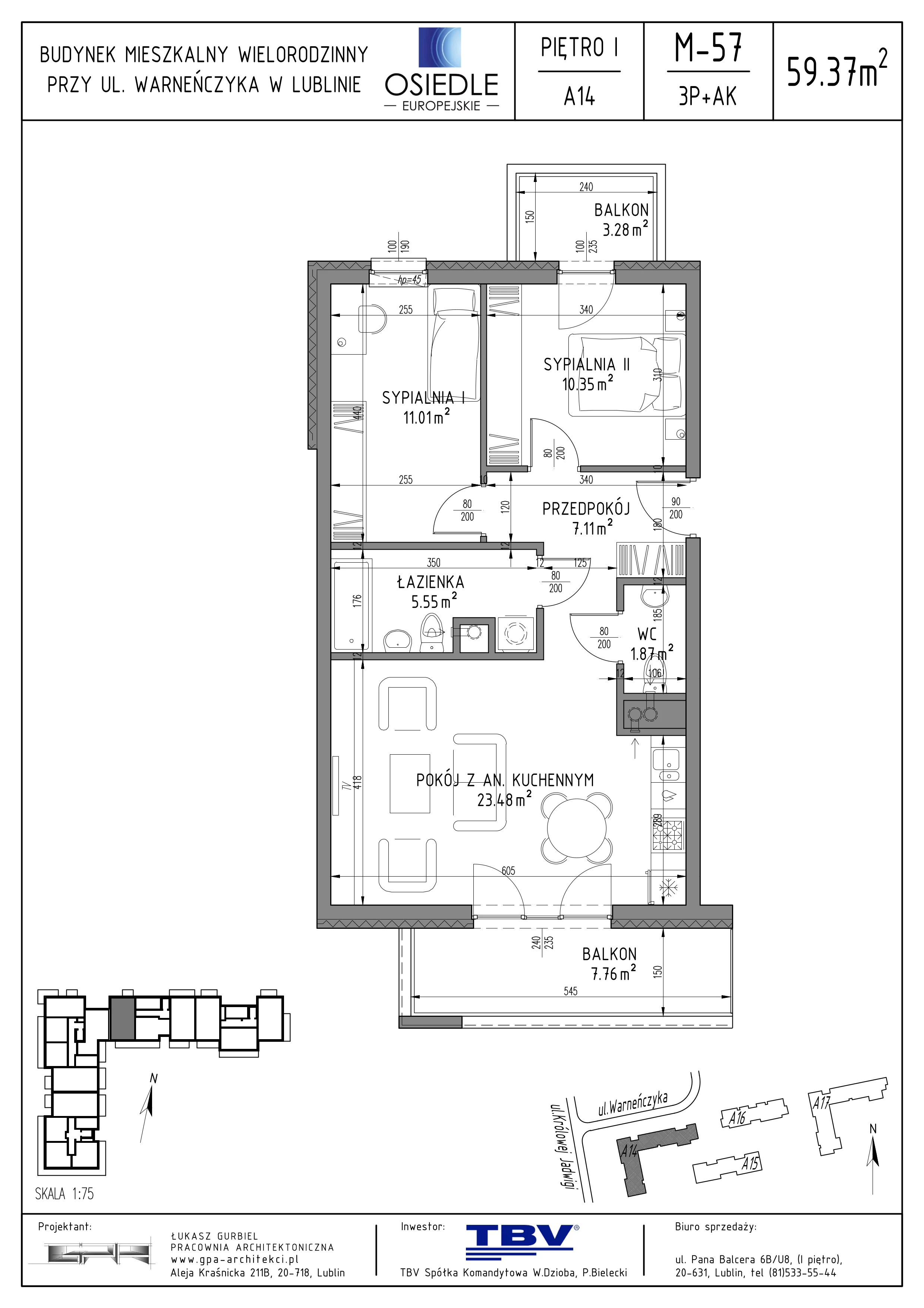
6) Trzypokojowe mieszkanie — 59,37 m²
Pomieszczenia: salon z aneksem kuchennym i jadalnią, sypialnia dla dziecka, sypialnia małżeńska, łazienka, WC, korytarz wejściowy, dwa balkony. Świetna propozycja dla osób, które chcą łączyć energiczną strefę dzienną z dodatkowymi możliwościami na zewnątrz. Dwa balkony zwiększają użyteczność mieszkania: można rozdzielić strefę relaksu i strefę praktyczną, a osobne WC podnosi wygodę w codziennym funkcjonowaniu i podczas wizyt gości.
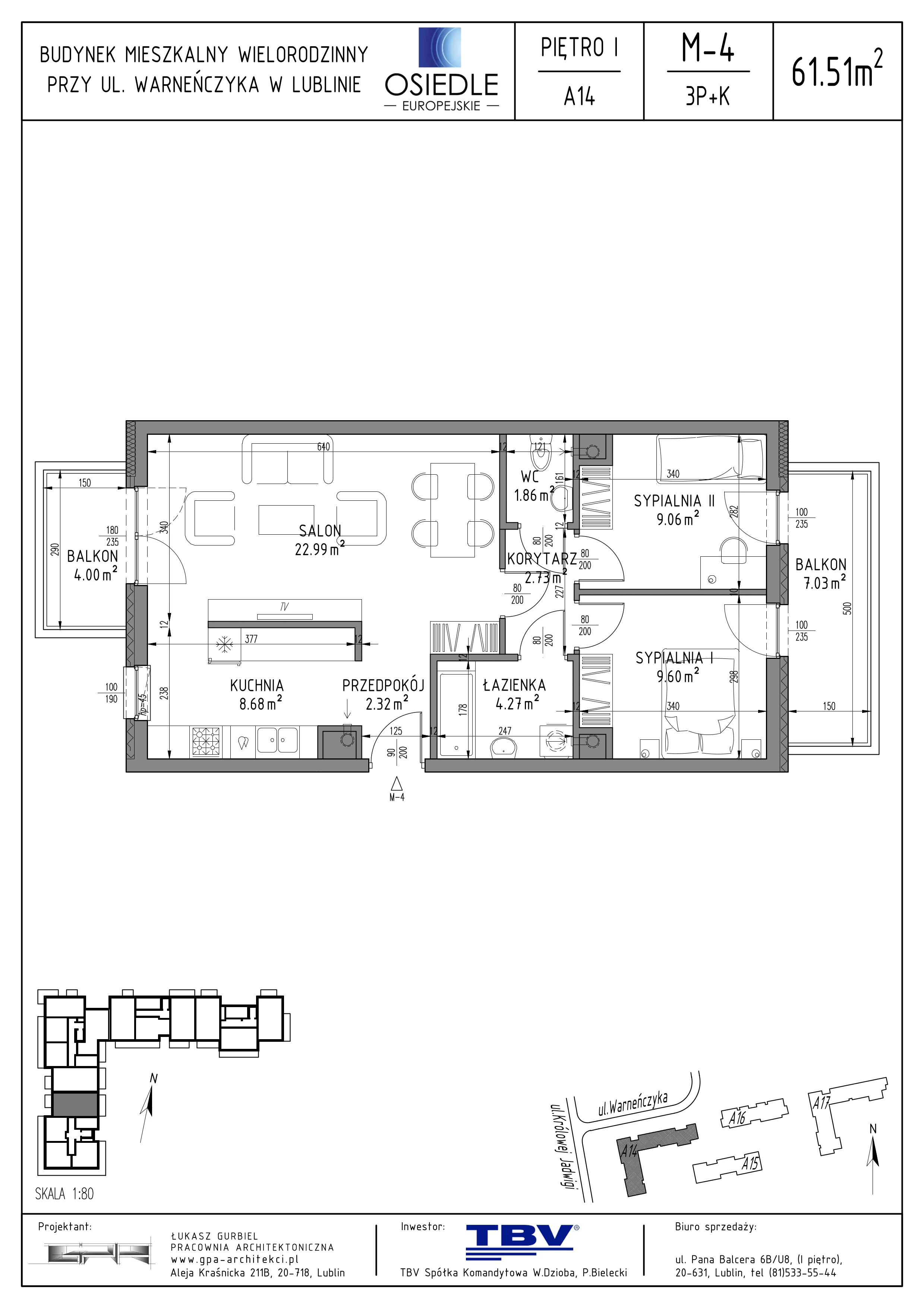
7) Trzypokojowe mieszkanie — 61,51 m²
Pomieszczenia: salon z jadalnią, sypialnia małżeńska, sypialnia dla dziecka, kuchnia z jadalnią, łazienka, WC, korytarz wewnętrzny, przedsionek, balkon. Dla rodzin, które oczekują pełnej wygody i przemyślanych stref wejściowych. Osobna kuchnia z jadalnią zapewnia swobodę pracy kulinarnej i rodzinnych posiłków, a salon z jadalnią pozwala zaaranżować komfortową strefę dzienną. Osobne WC ułatwia organizację dnia, a przedsionek daje miejsce na garderobę zewnętrzną i wózki lub sprzęt sportowy.
8) Trzypokojowe mieszkanie — 61,51 m²
Pomieszczenia: salon z jadalnią, sypialnia dla gości, sypialnia małżeńska, kuchnia z jadalnią, łazienka, WC, korytarz wewnętrzny, przedsionek, dwa balkony. Idealne dla gospodarzy lubiących przyjmować bliskich, a także dla osób pracujących z domu. Dwa balkony zwiększają komfort codziennego wypoczynku i funkcjonalność przestrzeni. Osobna kuchnia porządkuje strefy i ułatwia gotowanie bez ingerencji w salon, sypialnia dla gości gwarantuje prywatność odwiedzającym lub sprawdzi się jako gabinet, a osobne WC usprawnia korzystanie z części sanitarnej podczas wizyt.
Podsumowanie: W Etapie Kopenhaga na Osiedlu Europejskim w Lublinie (Felin) dostępnych jest 8 zróżnicowanych typów mieszkań o powierzchniach od 41,16 do 61,51 m². Do wyboru układ z aneksem lub osobną kuchnią, jeden lub dwa balkony, dodatkowe WC, a w wybranych metrażach także przedsionek i osobna sypialnia dla gości. Dzięki temu łatwo dopasować ofertę do stylu życia singla, pary lub rodziny.
Osiedle Europejskie – Etap Kopenhaga to inwestycja w Lublinie, zlokalizowana w dzielnicy Felin, przy ul. Zygmunta Starego. To doskonała propozycja dla osób szukających mieszkania w spokojnej okolicy, która jednocześnie zapewnia doskonały dostęp do infrastruktury miejskiej.
Lokalizacja – idealne połączenie z centrum Lublina
Felin to dynamicznie rozwijająca się dzielnica Lublina, która cieszy się rosnącą popularnością wśród osób szukających spokojnego miejsca do życia z łatwym dostępem do centrum miasta. W pobliżu Osiedla Europejskiego znajdują się punkty usługowe i handlowe, co znacząco ułatwia codzienne życie. Dzielnica ta łączy ciszę z bliskością do tętniącego życiem centrum Lublina.
Edukacja i codzienna infrastruktura w pobliżu
W niedalekiej odległości zlokalizowane jest przedszkole, co zapewnia wygodę rodzicom z małymi dziećmi. Ponadto, dzięki rozbudowanej infrastrukturze, mieszkańcy mają dostęp do sklepów, oraz ośrodków zdrowia, co czyni codzienne obowiązki prostymi i szybkim do załatwienia.
Dobra komunikacja i wygodny dojazd
Osiedle Europejskie – Etap Kopenhaga to doskonale skomunikowana lokalizacja. Przystanek autobusowy znajdujący się w pobliżu inwestycji zapewnia dostęp do innych części Lublina, w tym do ścisłego centrum miasta. Dzięki sprawnemu systemowi komunikacji publicznej, mieszkańcy mogą komfortowo przemieszczać się po mieście, unikając codziennych problemów z parkowaniem.
Osiedle Europejskie – Etap Kopenhaga to inwestycja, która łączy nowoczesność, wygodę i doskonałą lokalizację. Bliskość edukacji, infrastruktury handlowo-usługowej oraz łatwy dostęp do komunikacji miejskiej sprawiają, że jest to doskonałe miejsce do życia dla osób szukających spokoju, a jednocześnie chcących korzystać z wszystkich udogodnień dużego miasta.
Znajdź nieruchomość za granicą
Ulice na Felinie
Nieruchomości na sprzedaż
Nieruchomości do wynajęcia
Rynek pierwotny