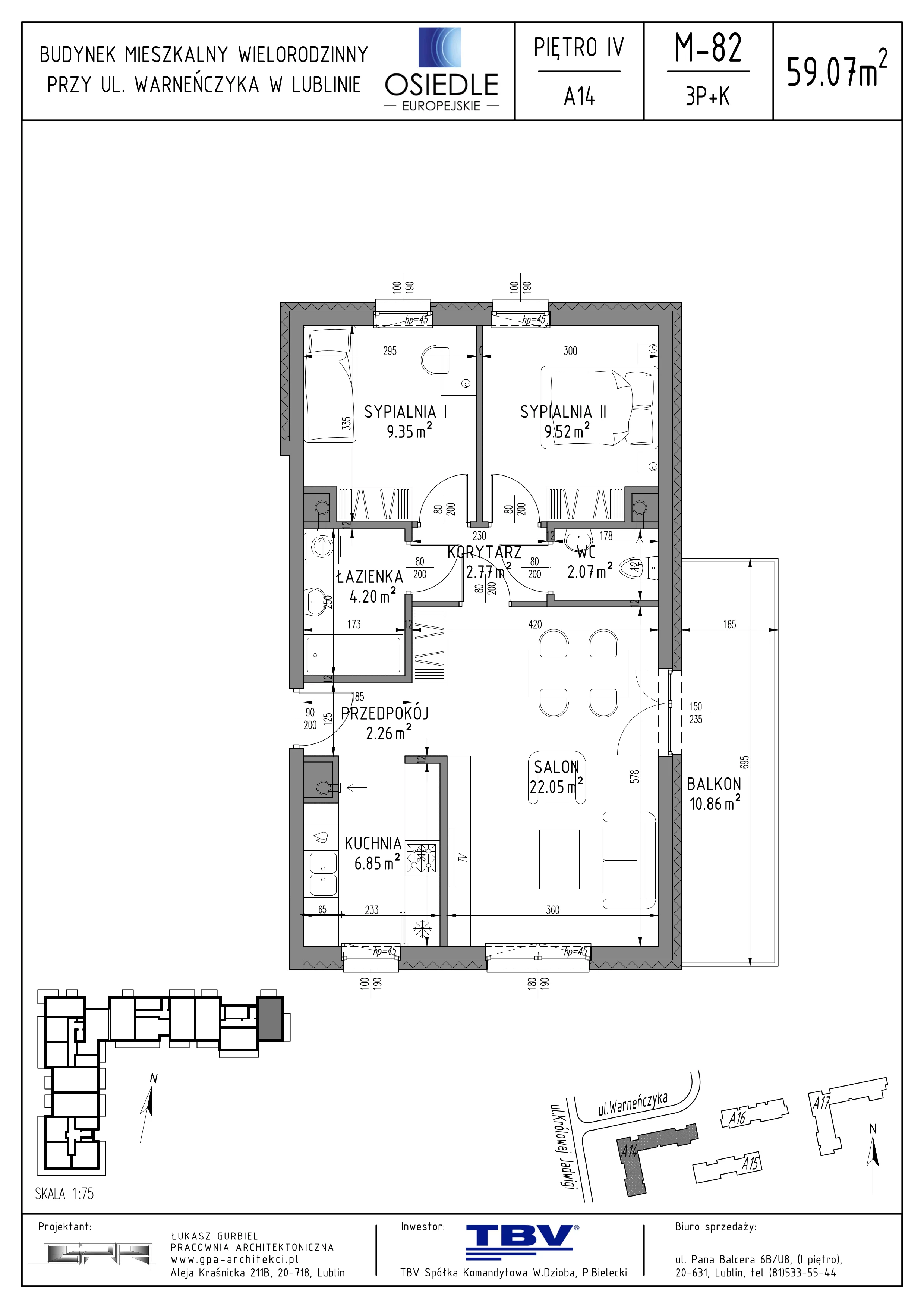
Nowe mieszkanie, 59,07 m², 3 pokoje, 2 piętro, oferta nr A14-LM-76NOWOŚĆ
Inwestycja Osiedle Europejskie - Etap Kopenhaga
643 863,00 zł
Rata 3 282 zł/mies. - sprawdź >
Lublin, Felin, ul. Zygmunta Starego






5

Mapa
Cena:
643 863,00 zł
Cena za m²:
10 900,00 zł
Liczba pokoi:
3 pokoje
Powierzchnia:
59,07 m²
Piętro:
2 piętro
Liczba poziomów:
1
Strony świata:
północ (N), południe (S), wschód (E)
Garaż:
parking naziemny, parking podziemny
Powierzchnie dodatkowe:
komórka lokatorska
Powierzchnie zewnętrzne:
balkon (10,69 m²)
Termin oddania:
II kwartał 2026