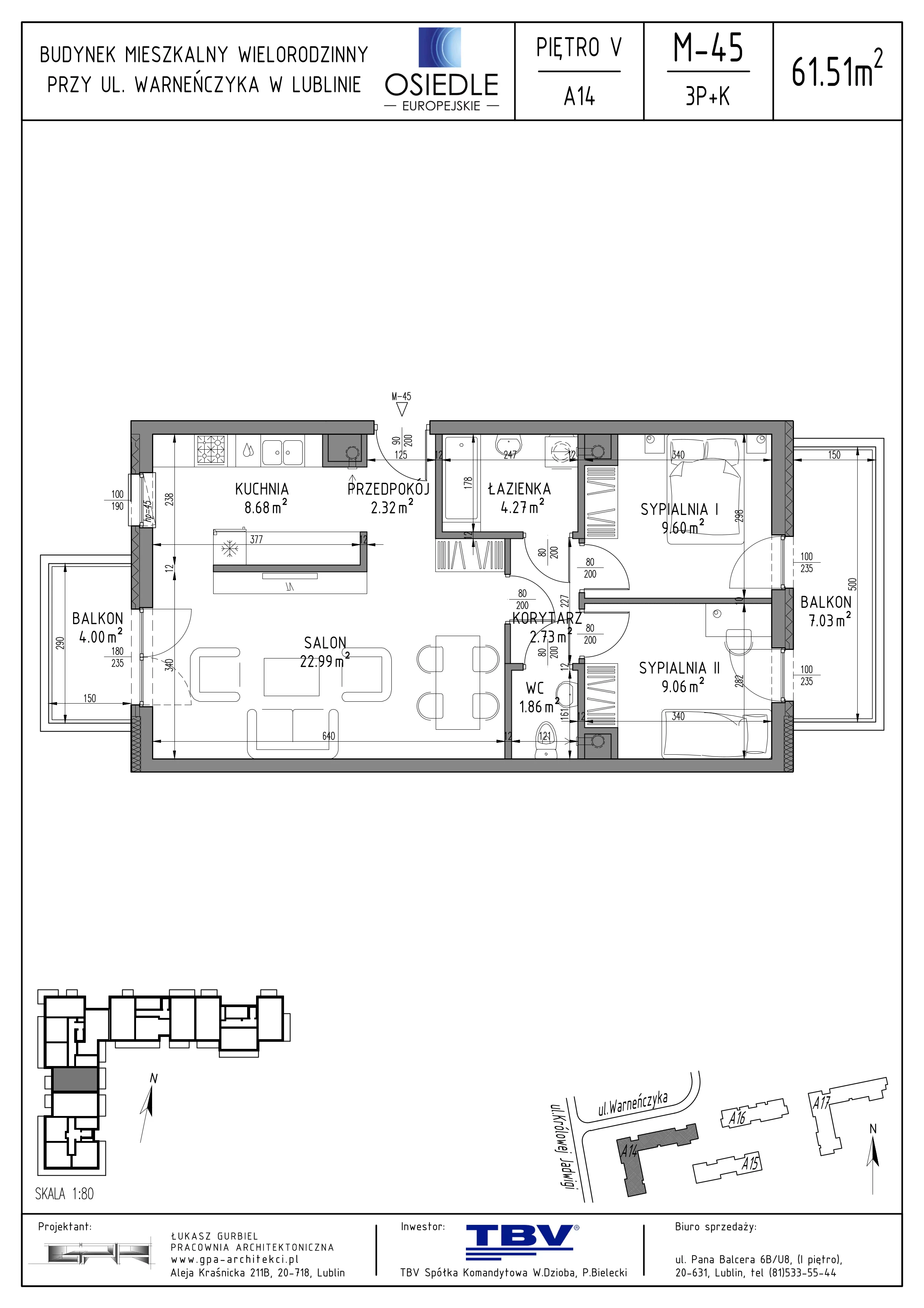
Nowe mieszkanie, 61,51 m², 3 pokoje, 5 piętro, oferta nr A14-LM-45NOWOŚĆ
Inwestycja Osiedle Europejskie - Etap Kopenhaga
645 855,00 zł
Rata 3 293 zł/mies. - sprawdź >
Lublin, Felin, ul. Zygmunta Starego






5

Mapa
Cena:
645 855,00 zł
Cena za m²:
10 500,00 zł
Liczba pokoi:
3 pokoje
Powierzchnia:
61,51 m²
Piętro:
5 piętro
Liczba poziomów:
1
Strony świata:
wschód (E), zachód (W)
Garaż:
parking naziemny, parking podziemny
Powierzchnie dodatkowe:
komórka lokatorska
Powierzchnie zewnętrzne:
balkon (7,03 m²), balkon (4,00 m²)
Termin oddania:
II kwartał 2026