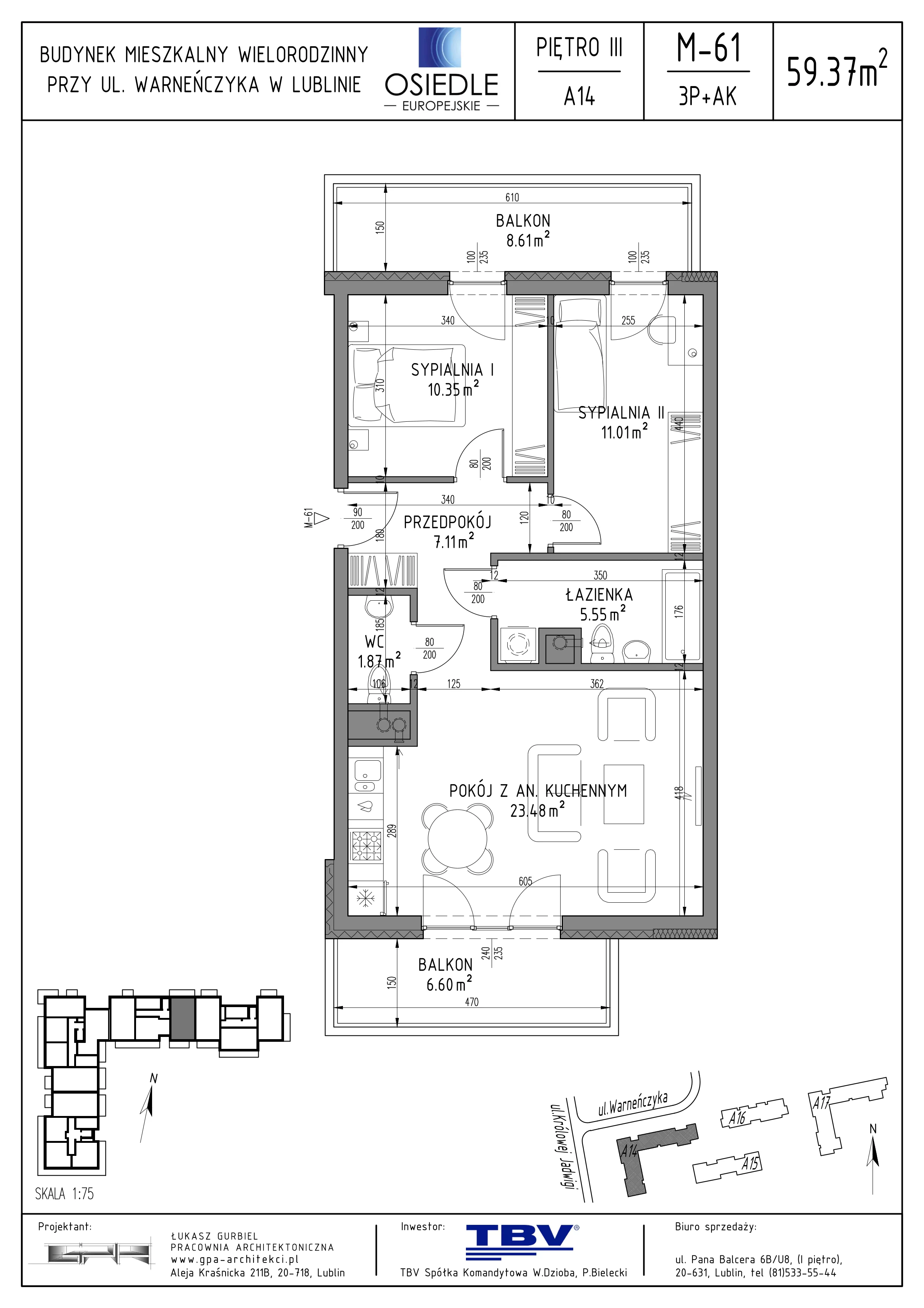
Nowe mieszkanie, 59,37 m², 3 pokoje, 3 piętro, oferta nr A14-LM-61NOWOŚĆ
Inwestycja Osiedle Europejskie - Etap Kopenhaga
647 133,00 zł
Rata 3 299 zł/mies. - sprawdź >
Lublin, Felin, ul. Zygmunta Starego






5

Mapa
Cena:
647 133,00 zł
Cena za m²:
10 900,00 zł
Liczba pokoi:
3 pokoje
Powierzchnia:
59,37 m²
Piętro:
3 piętro
Liczba poziomów:
1
Strony świata:
północ (N), południe (S)
Garaż:
parking naziemny, parking podziemny
Powierzchnie dodatkowe:
komórka lokatorska
Powierzchnie zewnętrzne:
balkon (8,61 m²), balkon (6,60 m²)
Termin oddania:
II kwartał 2026