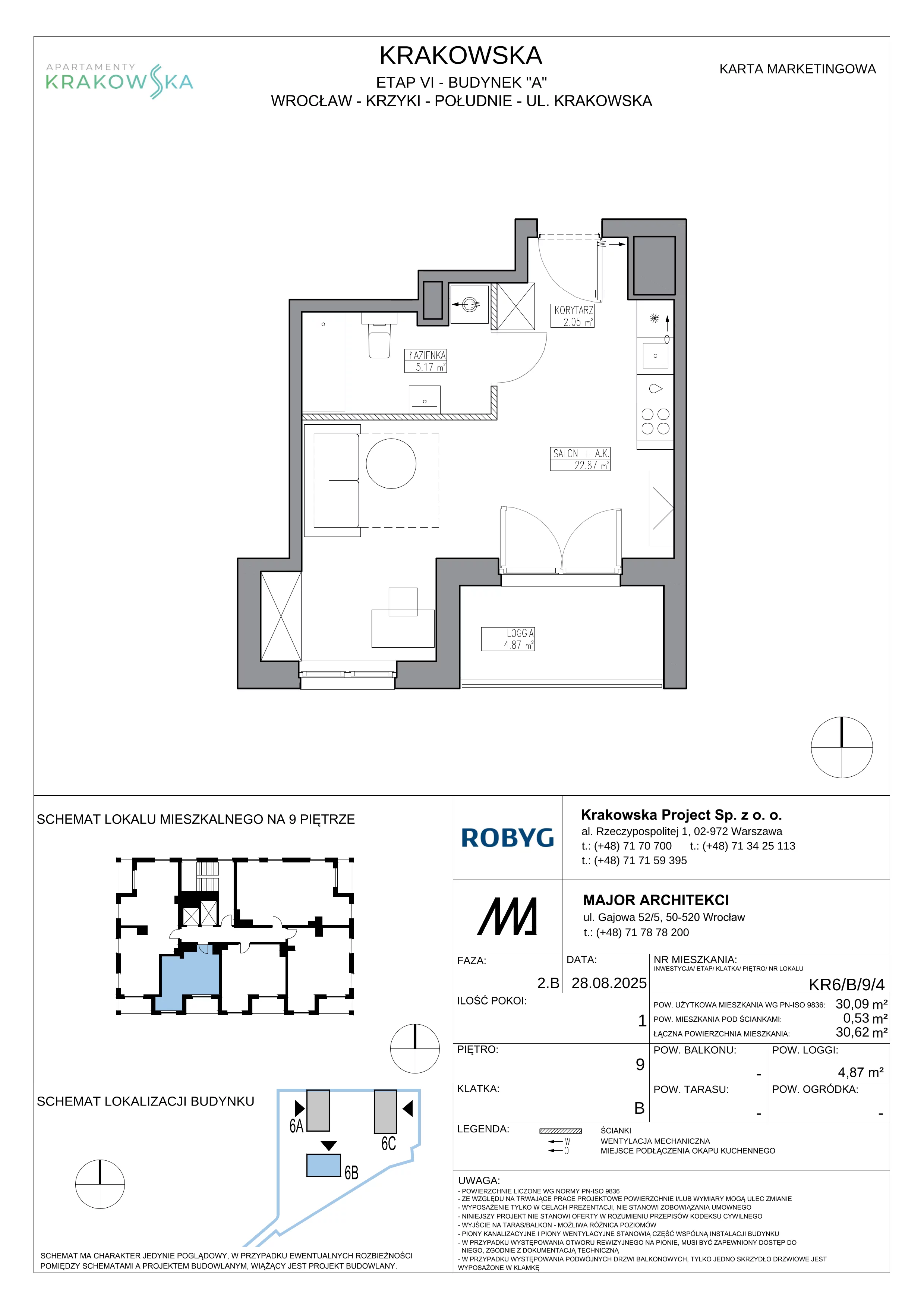
Nowe mieszkanie na sprzedaż 1 pokojowe o wielkości 30,09 m² położone na 9 piętrze w budynku dziesięciopiętrowym. Do lokalu przynależeć będzie balkon, ogródek oraz loggia o metrażu 4,87 m².
Inwestycja mieszkaniowa Apartamenty Krakowska 6 budowana przez dewelopera Grupa ROBYG przy ulicy Krakowska na Przedmieściu Oławskim we Wrocławiu.
W bloku zaplanowano udogodnienia: rolety zewnętrzne w mieszkaniach na parterze, drzwi antywłamaniowe, światłowód, panele fotowoltaiczne. Na terenie inwestycji: monitoring, stacja ładowania samochodów elektrycznych, ochrona, pomieszczenia na rowery.
W pobliżu osiedla dostępna jest dla mieszkańców infrastruktura: szkoły (Szkoła Podstawowa Edukacja - 700 m, FINGO Autorska Szkoła Podstawowa - 850 m, Liceum Ogólnokształcące Edukacja - 700 m), przedszkola (Przedszkole, Klub i Żłobek Bajkowa Przystań - 700 m, Przedszkole i Żłobek ABC - Wrocław - 900 m) oraz tereny rekreacyjne (Your Parking App - Zarezerwuj Online Parking - Krakowskie Tarasy - 350 m, Park na Wilczym Kącie - 200 m, ROD Park Wschodni - 950 m, Park Tarnogajski - 700 m, Park dla psów Psia Łąka - 1000 m).