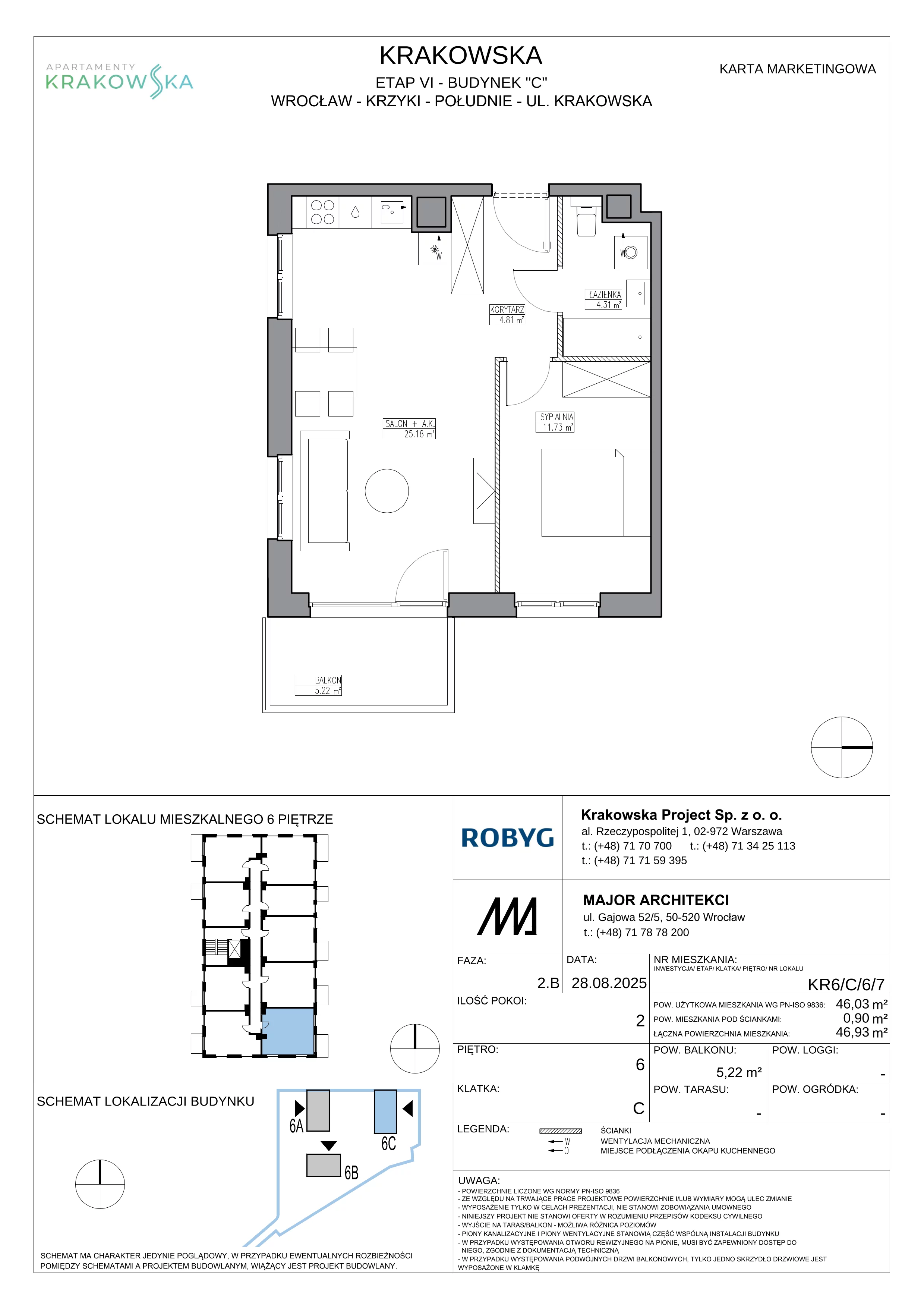
Mieszkanie 2 pokojowe o metrażu 46,03 m² zlokalizowane na 6 piętrze w budynku 57-piętrowym. Do lokalu przylega loggia, ogródek oraz balkon o wielkości 5,22 m².
Inwestycja mieszkaniowa Apartamenty Krakowska 6 budowana przez firmę Grupa ROBYG pod adresem Krakowska we Wrocławiu na Przedmieściu Oławskim.
W budynku zaplanowano takie udogodnienia jak: panele fotowoltaiczne, klub fitness, rolety zewnętrzne w mieszkaniach na parterze, światłowód. Na terenie osiedla: ochrona, pomieszczenia na rowery, stacja ładowania samochodów elektrycznych, monitoring.
W niedalekiej odległości od inwestycji dostępna jest dla przyszłych mieszkańców pełna infrastruktura: szkoły (Liceum Ogólnokształcące Edukacja - 700 m, Szkoła Podstawowa Edukacja - 700 m, FINGO Autorska Szkoła Podstawowa - 850 m), przedszkola (Przedszkole, Klub i Żłobek Bajkowa Przystań - 700 m, Przedszkole i Żłobek ABC - Wrocław - 900 m) oraz obiekty rekreacyjne (Your Parking App - Zarezerwuj Online Parking - Krakowskie Tarasy - 350 m, Park dla psów Psia Łąka - 1000 m, Park na Wilczym Kącie - 200 m, Park Tarnogajski - 700 m, ROD Park Wschodni - 950 m).