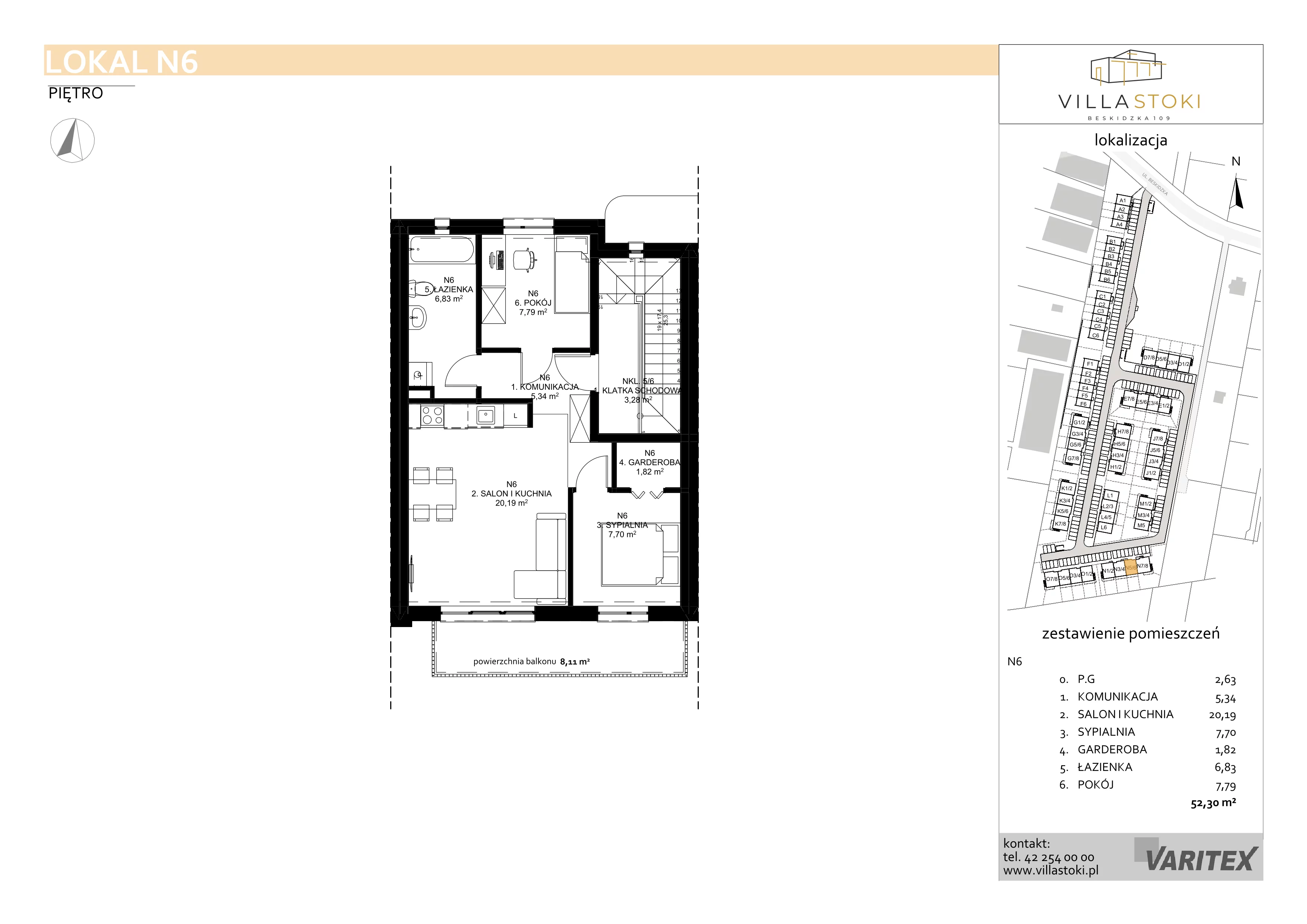
Nowe mieszkanie, 52,30 m², 3 pokoje, 1 piętro, oferta nr N6NOWOŚĆ
418 400,00 zł
8 000,00 zł/m²
Monitoring cen
Inwestycja Villa Stoki
Łódź, Widzew, ul. Beskidzka 109







Liczba pokoi:
3 pokoje
Powierzchnia:
52,30 m²
Piętro:
1 piętro
Liczba poziomów:
1
Strony świata:
południe (S)
Garaż:
garaż, parking naziemny
Termin oddania:
III kwartał 2026