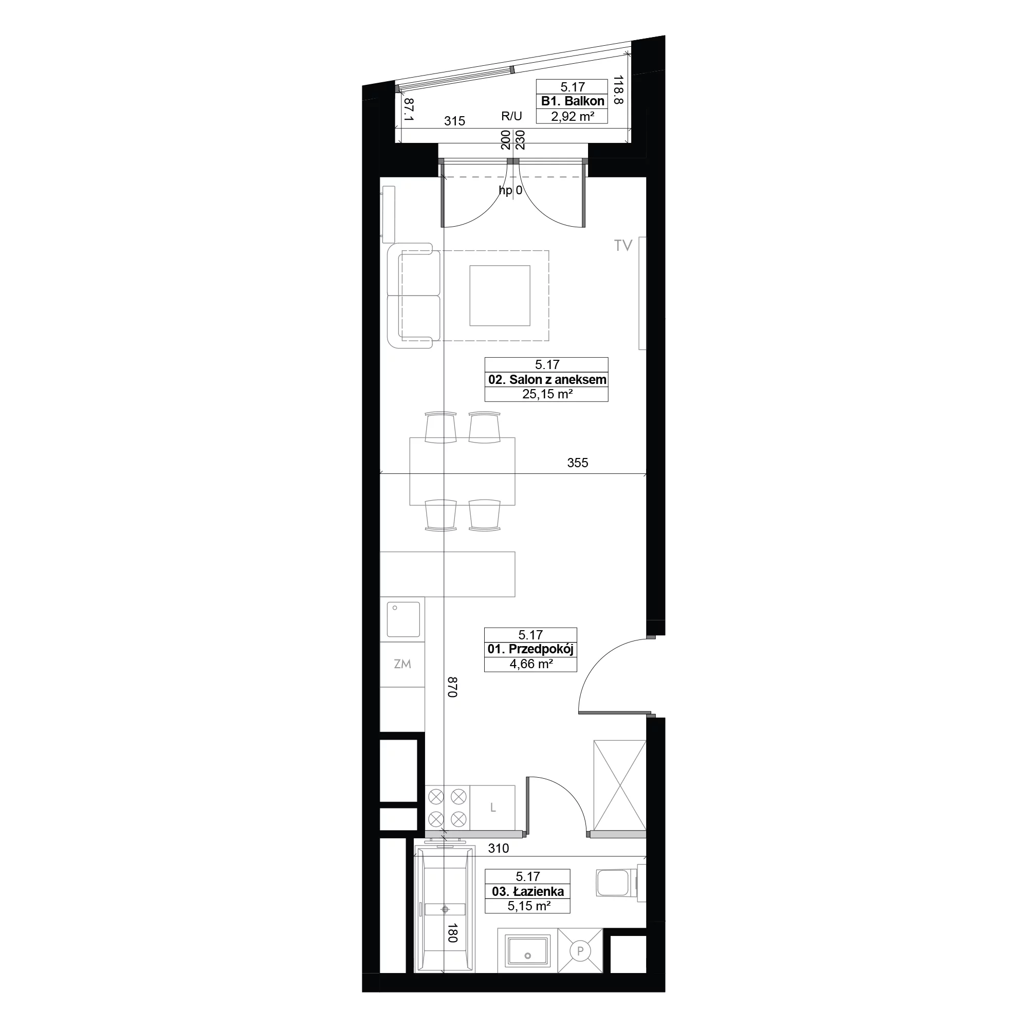
Nowe mieszkanie, 34,96 m², 1 pokój, 5 piętro, oferta nr 5.17
430 008 zł
12 300 zł /m²
Monitoring cen
Inwestycja Diasfera III
Łódź, Śródmieście, al. Piłsudskiego 37






Liczba pokoi:
1 pokój
Powierzchnia:
34,96 m²
Piętro:
5 piętro
Garaż:
parking podziemny
Powierzchnie zewnętrzne:
balkon (2,92 m²)
Termin oddania:
II kwartał 2026

























