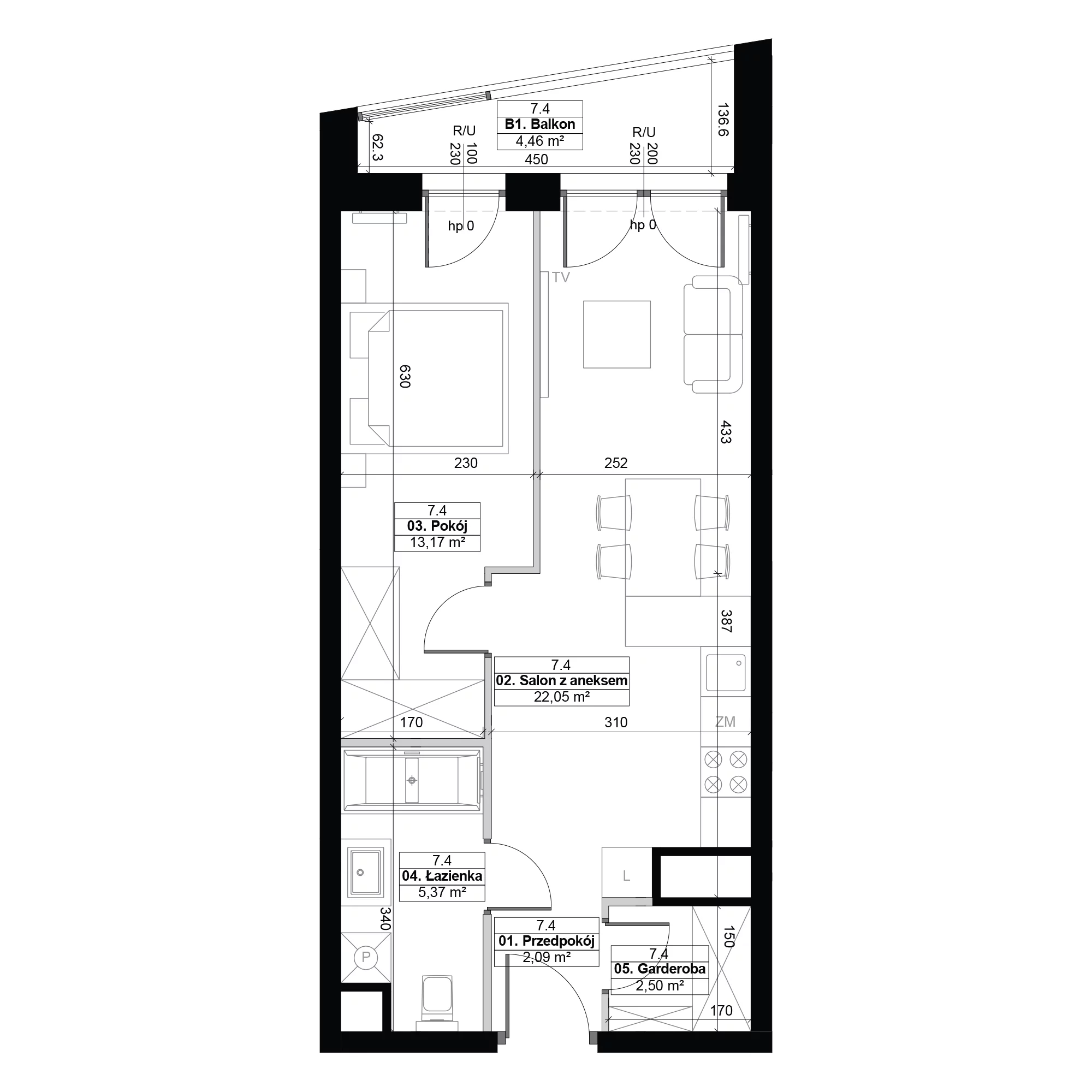
Nowe mieszkanie, 45,18 m², 2 pokoje, 7 piętro, oferta nr 7.4
560 232 zł
12 400 zł /m²
Monitoring cen
Inwestycja Diasfera III
Łódź, Śródmieście, al. Piłsudskiego 37






Liczba pokoi:
2 pokoje
Powierzchnia:
45,18 m²
Piętro:
7 piętro
Garaż:
parking podziemny
Powierzchnie zewnętrzne:
balkon (4,46 m²)
Termin oddania:
II kwartał 2026

























