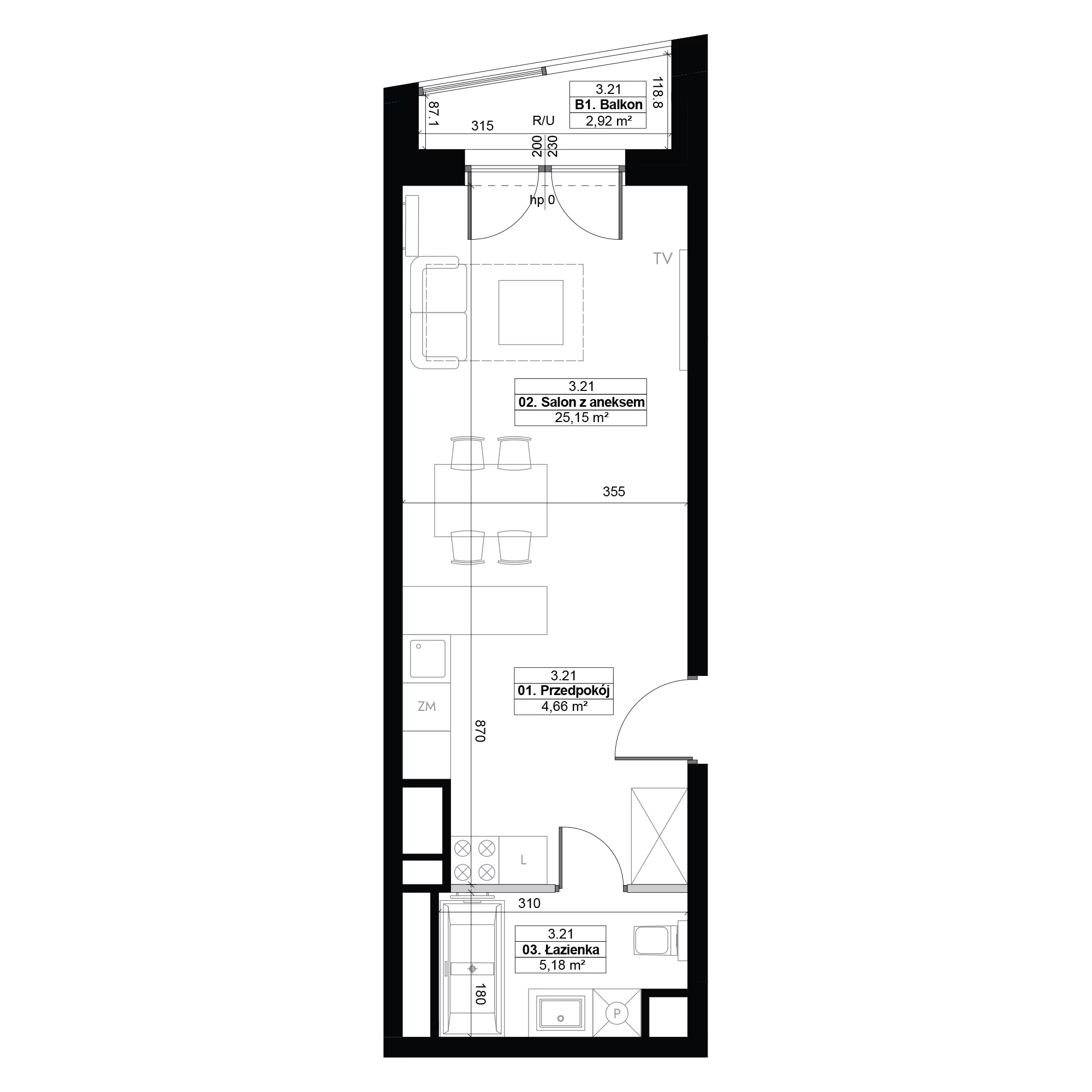
Nowe mieszkanie, 34,99 m², 1 pokój, 3 piętro, oferta nr 3.21
416 381 zł
11 900 zł /m²
Monitoring cen
Inwestycja Diasfera III
Łódź, Śródmieście, al. Piłsudskiego 37






Liczba pokoi:
1 pokój
Powierzchnia:
34,99 m²
Piętro:
3 piętro
Garaż:
parking podziemny
Powierzchnie zewnętrzne:
balkon (2,92 m²)
Termin oddania:
II kwartał 2026

























