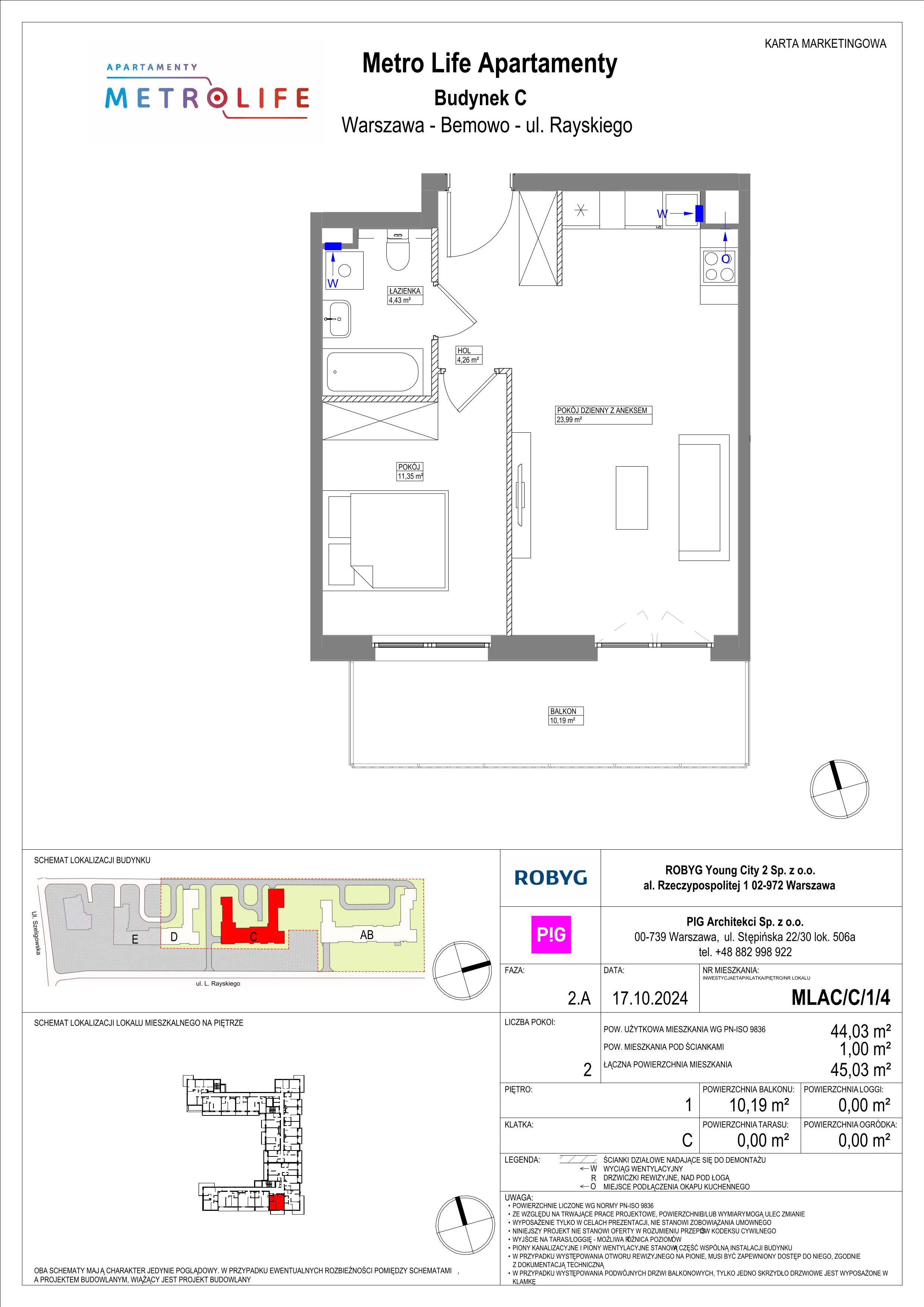
Mieszkanie 2 pokojowe o metrażu 44,03 m² zaprojektowane na 1 piętrze w budynku 1-piętrowym. Do mieszkania będzie przynależeć loggia, ogródek oraz balkon o metrażu 10,19 m².
Inwestycja mieszkaniowa Metro Life Apartamenty budowana przez firmę Grupa ROBYG pod adresem Rayskiego w Warszawie na Bemowie.
W budynku zaplanowano takie udogodnienia jak: panele fotowoltaiczne, usługi, wideofon, winda oraz komórka lokatorska. Na terenie osiedla: plac zabaw, miejsca parkingowe, monitoring, siłownia plenerowa.
W niedalekiej odległości od inwestycji dostępna jest dla przyszłych mieszkańców pełna infrastruktura: szkoły (Szkoła Podstawowa nr 350 im. Armii Krajowej - 950 m, Szkoła Podstawowa nr 363 im. prof. Witolda Doroszewskiego. - 900 m, Szkoła językowa Kids - 850 m, Niepubliczna Szkoła Podstawowa Gaudeamus Bemowo - 400 m), przedszkola (Niepubliczne Przedszkole i Żłobek Concept Kids - 900 m, Przedszkole Niepubliczne i Klub Dziecięcy Dzwoneczek - 450 m, Koliber - przedszkole terapeutyczne. - 800 m, Przedszkole nr 215 - 950 m, Przedszkole Publiczne Edulica 2 - 300 m, Terapeutyczne Przedszkole Little Blue Bemowo - 50 m, Pluszowa Akademia. Niepubliczne, integracyjne przedszkole dwujęzyczne i żłobek - 750 m, Przedszkole nr 222 - 700 m, Żłobek i Przedszkole Zielona Polana - 950 m, Dwujęzyczne Przedszkole Pomarańczowa Ciuchcia Bemowo I - 400 m) oraz obiekty rekreacyjne (Park - 150 m, Park osiedlowy - 250 m, Skwer aktywności ruchowej im. Stanisława Lewarskiego - 950 m).